Heritage Estates says ..
Additional Reception Room Contemporary Ground Floor Bath/Shower Room Convenient First Floor WC Ample Off-Road Parking Low Maintenance Garden with Large Outbuilding/Entertainment Room or Home Office Popular Location with Excellent Transport Links and Great Access to Local Schoo (cont.)
Property Oracle says ..
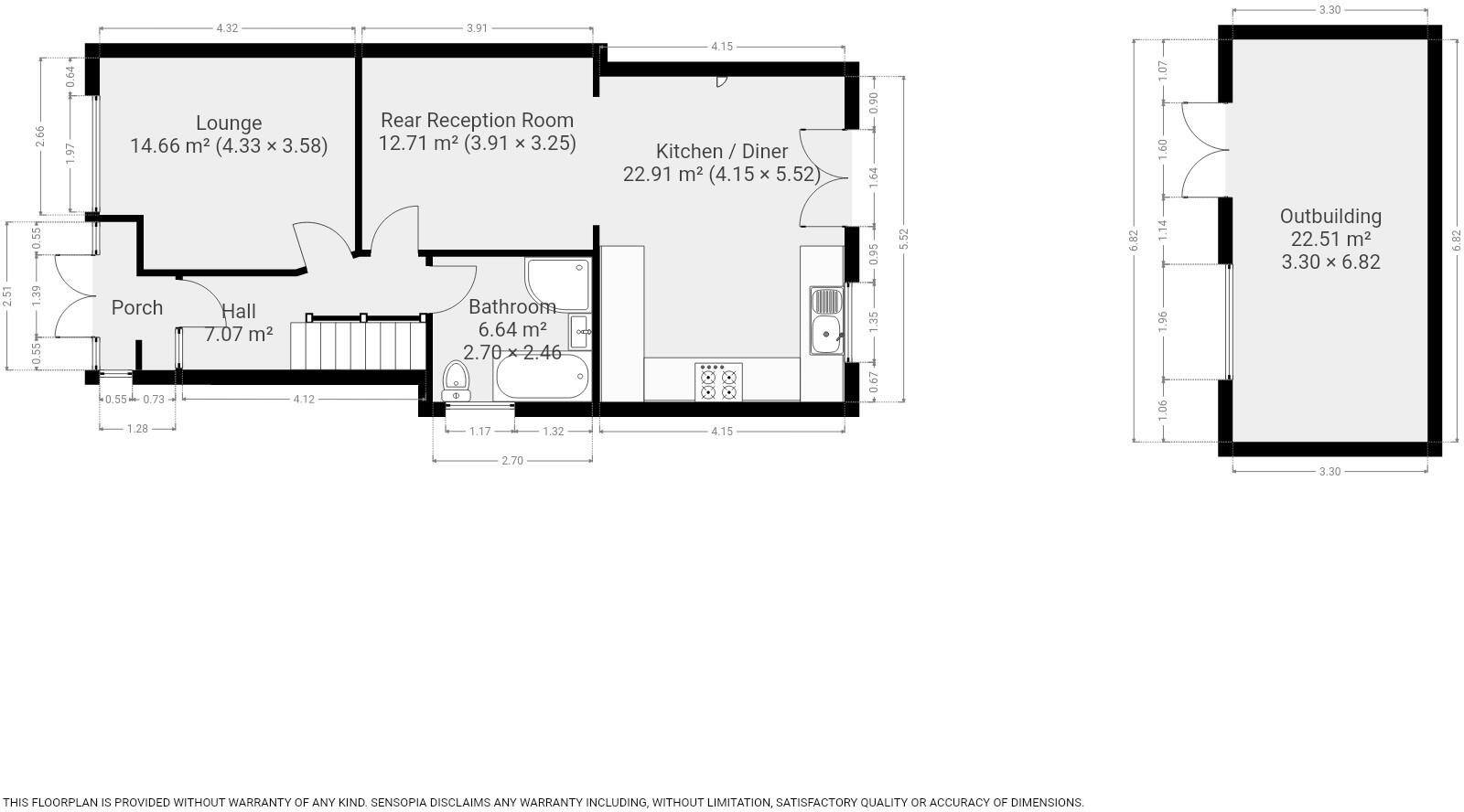
This property is a 4-bedroom, 2-bathroom semi-detached house located in Gravesend, Kent. The house benefits from a modern extension to the rear, which includes a large kitchen and dining area. The property is well presented and appears to be in good condition, with a recently updated kitchen and bathroom. There is also a large garden with a substantial outbuilding/workshop. Gravesend offers good transport links to London and other parts of Kent. The property is within walking distance of several schools, including Gravesend Grammar School which is rated outstanding by Ofsted. The asking price of £475,000 is slightly above the average price for the area, but considering the size, condition, and additional features of the property, it could be considered reasonable. The lack of plot size information in the listing is a slight concern.
Therefore, we give this property 7 / 10. *Disclaimer: This is our option and does constitute a recommendation or financial advice. Do your own research. *
- Price
- 7
- Condition
- 8
- Location
- 8
- Land
- 7
- Bedrooms
- 4
- Bathrooms
- 2
- Sqft (est)
- 931.08
The heatmap indicates the level of crime in the area. The color of the heatmap indicates the crime severity and recency.
Metrics Year-on-Year
- Average area value
- 437,500.00 £Increased by 15.36 %
- Est sale value
- 329,602.32 £Increased by 50.64 %
- Average area rental value
- 900.00 £/moDecreased by 57.14 %
- Est letting value
- 0.00 £/moDecreased by 100.00 %
- Est rental Yield
- 2.47 %Decreased by 62.80 %
- Crime Rate
- 2.00 %Unchanged by 0.00 %
Agent Activity
Heritage Estates created the listing.
Nearby Schools
| Name | Type | Ofsted | Distance |
|---|---|---|---|
| St John'S Catholic Comprehensive | Voluntary Aided School | Good | 0.35 KM |
| St John'S Catholic Primary School, Gravesend | Academy Converter | Good | 0.54 KM |
| Westcourt Primary School | Academy Converter | Good | 0.67 KM |
| Riverside Children'S Centre (Gravesend) | Children's Centre | 0.67 KM | |
| Gravesend Grammar School | Academy Converter | Outstanding | 0.68 KM |
Images
Nearby Streets
| Name | Average Price | Average Sqft | Distance |
|---|---|---|---|
| The Parade | £ 0 | 0 | 0.00 KM |
| Hillside Avenue | £ 350,000 | 0 | 0.00 KM |
| Silver Road | £ 0 | 0 | 0.00 KM |
| Saint Dunstan's Drive | £ 375,000 | 0 | 0.00 KM |
| St. Chad's Drive | £ 299,500 | 0 | 0.00 KM |
Nearby Transport
| Name | NLC | TLC | Distance |
|---|---|---|---|
| Gravesend | 5172 | GRV | 2.48 KM |
| Tilbury Town | 7462 | TIL | 4.98 KM |
| Sole Street | 5126 | SOR | 5.49 KM |
| Meopham | 5116 | MEP | 6.03 KM |
| East Tilbury | 7471 | ETL | 6.58 KM |
Nearby Listings
| Address | Price | Type | Score | Distance |
|---|---|---|---|---|
| Valley Drive, Gravesend | £ 475,000 | BUY | 7 / 10 | 0.00 KM |
| Lorton Close, Gravesend, DA12 | £ 325,000 | BUY | 7 / 10 | 0.14 KM |
| Valley Drive, Gravesend, Kent, DA12 | £ 375,000 | BUY | 7 / 10 | 0.14 KM |
| Old Road East, Gravesend, DA12 | £ 300,000 | BUY | Unknown | 0.19 KM |
| Old Road East, Gravesend, DA12 | £ 375,000 | BUY | 6 / 10 | 0.19 KM |
Nearby Properties
| Address | Price | Distance |
|---|---|---|
| 78d Valley Drive | £ 160,000 | 0.15 KM |
| 50 Valley Drive | £ 385,000 | 0.15 KM |
| 34 Valley Drive | £ 270,000 | 0.15 KM |
| 4 Valley Drive | £ 195,000 | 0.15 KM |
| 6 Valley Drive | £ 86,000 | 0.15 KM |