The Old Wainhouse, Wentnor, Bishops Castle
HA

The Old Wainhouse, Wentnor, Bishops Castle

By Halls Estate Agents

£ 445,000

Reviews

3 out of 5 stars

Halls Estate Agents says ..

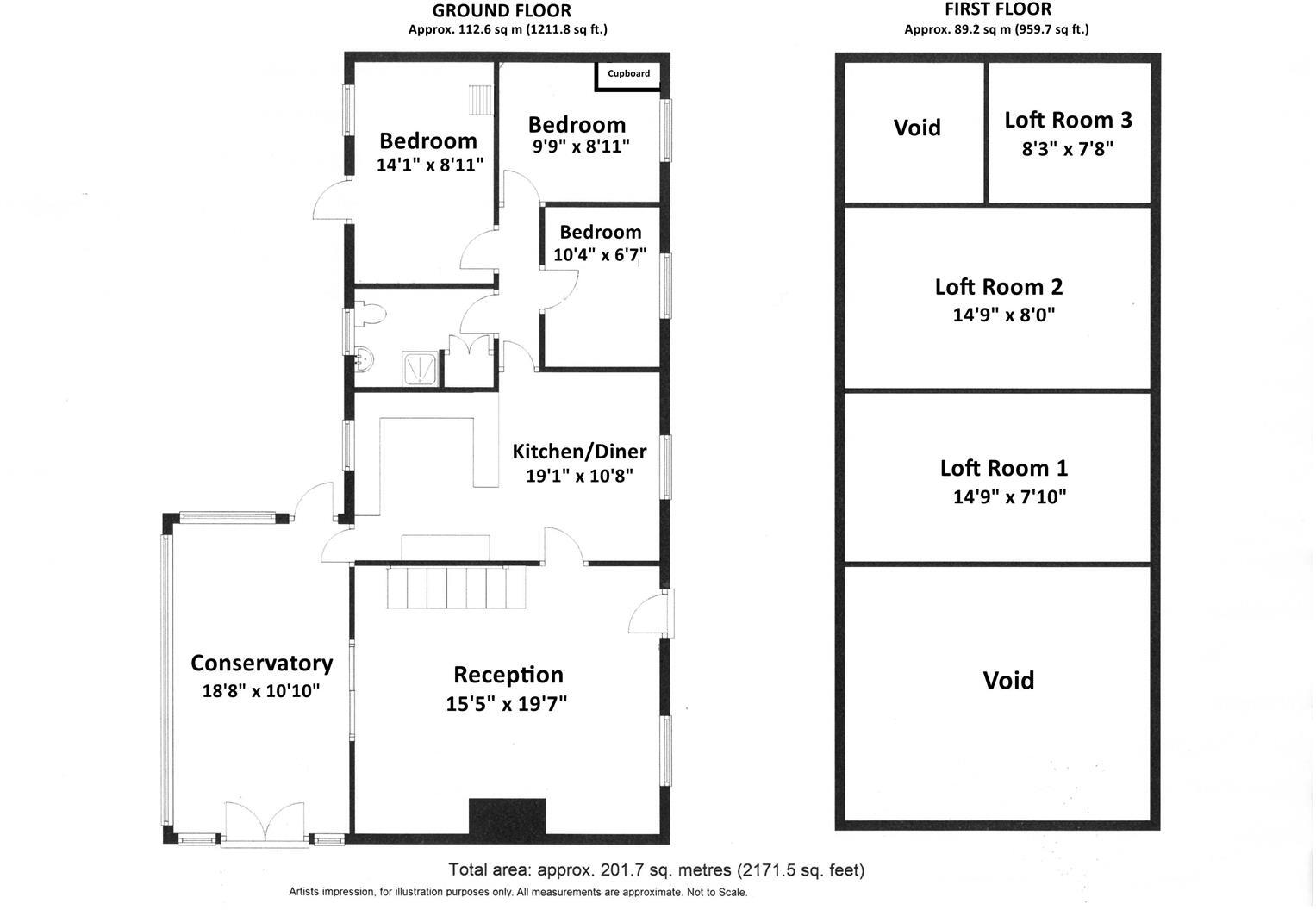
A detached stone barn converted with characterful 3 bedrooms, living room, kitchen/dining room, conservatory and shower room. With 7.46 acres of land in total, horse stables, gardens and paddock of 1.84 acres plus 5.62 acre paddock 1/2 a mile away.

Property Oracle says ..

The property is a 3 bedroom house located in Wentnor, Shropshire. It is listed at £445,000 and has 1284.58 sqft of living space and a 2171.50 sqft plot. The average price for a property in the area is £231,277 with an average size of 1021 sqft. This results in an average price per sqft of £226.

The property benefits from a large garden, which is a desirable feature in the UK housing market. The photos show that the property is in relatively good condition, although some modernisation may be needed. The location is in a rural setting, which may appeal to buyers seeking peace and quiet. However, the proximity to nearby schools (Norbury Primary School, Stiperstones Cofe Primary School, and Lydbury North Cofe (A) Primary School) could be a significant advantage for families. The average price of properties on Rock Close is significantly higher than the average for the area, suggesting that the location is desirable. However, the property is smaller than the average property in the area, and the list price is considerably higher than the average price. Considering the condition, land, and location, the list price may be considered high, but not unreasonable given the premium commanded by properties in Rock Close.

Therefore, we give this property 7 / 10. *Disclaimer: This is our option and does constitute a recommendation or financial advice. Do your own research. *

Price
6
Condition
7
Location
7
Land
8
Bedrooms
3
Bathrooms
1
Sqft (est)
1,284.58
Lot (est)
2,171.50

The heatmap indicates the level of crime in the area. The color of the heatmap indicates the crime severity and recency.

Metrics Year-on-Year

Average area value
243,278.00 £
Decreased by 3.15 %
from 251,196.00 £
Est sale value
402,073.54 £
Increased by 28.81 %
from 312,152.94 £
Average area rental value
1,186.00 £/mo
Increased by 12.42 %
from 1,055.00 £/mo
Est letting value
1,284.58 £/mo
Unchanged by 0.00 %
from 1,284.58 £/mo
Est rental Yield
5.85 %
Increased by 16.07 %
from 5.04 %
Crime Rate
0.00 %
from 0.00 %

Agent Activity

  • Halls Estate Agents created the listing.

Nearby Schools

NameTypeOfstedDistance
Norbury Primary School And NurseryFoundation SchoolOutstanding2.29 KM
Stiperstones Cofe Primary SchoolVoluntary Controlled SchoolGood8.43 KM
Lydbury North Cofe (A) Primary SchoolVoluntary Aided SchoolGood8.58 KM

Images

DJI_0134.jpg DJI_0127.jpg DSC_7232.jpg DJI_0149.jpg DJI_0139.jpg DSC_7276.jpg DSC_7242.jpg DSC_7248.jpg DSC_7254.jpg DSC_7236.jpg DSC_7260.jpg DSC_7267.jpg DSC_7257.jpg DSC_7261.jpg DSC_7264.jpg DSC_7273.jpg DSC_7228.jpg DSC_7229.jpg DSC_7221.jpg DSC_7230.jpg DSC_7212.jpg DSC_7225.jpg DSC_7227.jpg DJI_0137.jpg DJI_0141.jpg DJI_0135.jpg

Nearby Streets

NameAverage PriceAverage SqftDistance
Rock Close £ 762,50000.00 KM
Robury Ring £ 000.00 KM

Nearby Listings

AddressPriceTypeScoreDistance
The Old Wainhouse, Wentnor, Bishops Castle £ 445,000BUY7 / 100.00 KM
Bank House, Wentnor SY9 5EE £ 275,000BUY4 / 100.11 KM
Static At The Green Caravan Park, Wentnor, Bishops Castle, Shropshire £ 45,000BUY6 / 100.68 KM
The Walkmill, Norbury, Bishops Castle £ 575,000BUY7 / 100.77 KM
Walkmill, Norbury, Bishops Castle, Shropshire £ 485,000BUY7 / 100.79 KM