JP Harll says ..
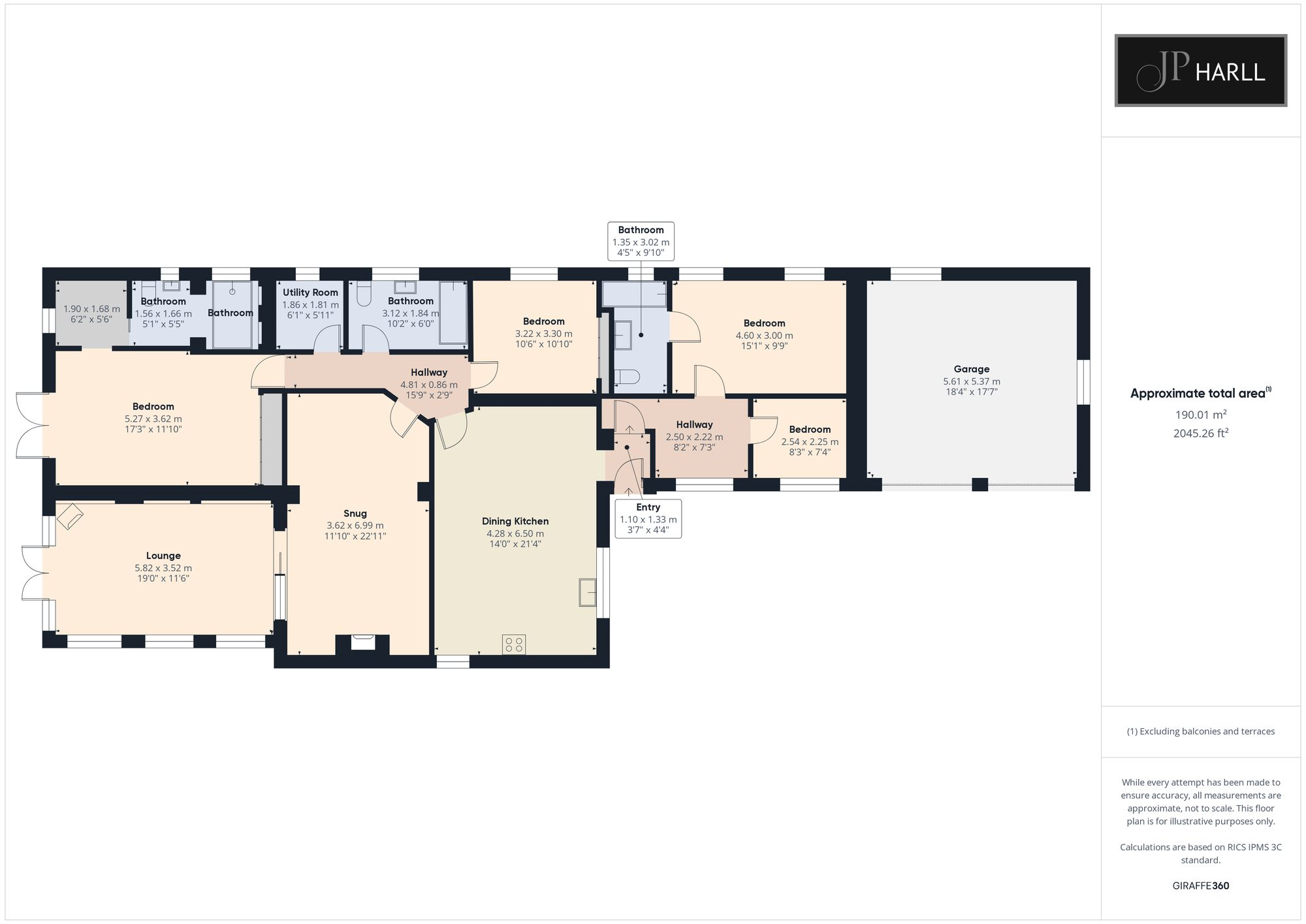
Enjoy a lifestyle of comfort and luxury at this four bedroomed, detached bungalow with snug, dining kitchen and utility. Double Garage and generous gardens with open views.
Property Oracle says ..
Therefore, we give this property 6 / 10. *Disclaimer: This is our option and does constitute a recommendation or financial advice. Do your own research. *
- Price
- 5
- Condition
- 8
- Location
- 6
- Land
- 7
- Bedrooms
- 4
- Bathrooms
- 3
The heatmap indicates the level of crime in the area. The color of the heatmap indicates the crime severity and recency.
Metrics Year-on-Year
- Average area value
- 312,014.00 £Increased by 7.46 %
- Average area rental value
- 1,599.00 £/moDecreased by 0.87 %
- Est rental Yield
- 6.15 %Decreased by 7.80 %
- Crime Rate
- 14.00 %Unchanged by 0.00 %
from 290,359.00 £
from 1,613.00 £/mo
from 6.67 %
from 14.00 %
Agent Activity
JP Harll created the listing.
Nearby Schools
| Name | Type | Ofsted | Distance |
|---|---|---|---|
| Whitley And Eggborough Community Primary School | Community School | Good | 1.32 KM |
| Hensall Community Primary School | Community School | Good | 3.83 KM |
| Kellington Primary School | Academy Converter | 4.23 KM | |
| Chapel Haddlesey Church Of England Voluntary Controlled Primary School | Voluntary Controlled School | Good | 6.07 KM |
| Norton Infant School | Academy Converter | 6.55 KM |
Images
Nearby Streets
| Name | Average Price | Average Sqft | Distance |
|---|---|---|---|
| Copper Beech Drive | £ 325,000 | 0 | 0.00 KM |
| Whitefield Bungalows | £ 110,000 | 0 | 0.00 KM |
| Holly Close | £ 0 | 0 | 0.00 KM |
Nearby Transport
| Name | NLC | TLC | Distance |
|---|---|---|---|
| Whitley Bridge | 8130 | WBD | 2.06 KM |
| Hensall | 8129 | HEL | 4.38 KM |
Nearby Listings
| Address | Price | Type | Score | Distance |
|---|---|---|---|---|
| Doncaster Road, Whitley, DN14 | £ 495,000 | BUY | 6 / 10 | 0.00 KM |
| Larth Close, Whitley | £ 560,000 | BUY | 7 / 10 | 0.04 KM |
| Larth Close, Whitley | £ 560,000 | BUY | Unknown | 0.05 KM |
| Olive Tree Close, Whitley, Goole, North Yorkshire, DN14 | £ 120,000 | BUY | Unknown | 0.06 KM |
| Doncaster Road, Whitley, DN14 | £ 385,000 | BUY | 7 / 10 | 0.09 KM |
Nearby Properties
| Address | Price | Distance |
|---|---|---|
| Parknook | £ 385,000 | 0.16 KM |
| Larth House | £ 230,000 | 0.16 KM |
| White Oaks | £ 500,000 | 0.16 KM |
| Orchard House | £ 60,000 | 0.16 KM |
| 2 College Farm Close | £ 272,500 | 0.21 KM |