Lye Valley, Oxford, OX3
CH

Lye Valley, Oxford, OX3

By Chancellors

£ 450,000

Reviews

3 out of 5 stars

Chancellors says ..

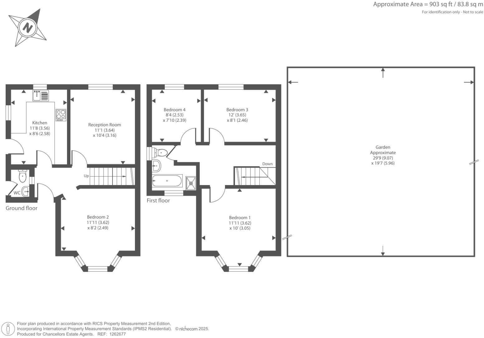
Sold with no onward chain and situated on a popular Headington side road is this three bedroom home. The property is HMO ready for four persons, with versatile living options, two reception rooms/extra bedroom with attractive bay window, WC, fitted kitchen, driveway parking and private garden.

Property Oracle says ..

This property is a 3-bedroom semi-detached house located in Lye Valley, Oxford. The location benefits from being relatively close to several primary and secondary schools, with options such as Wood Farm Primary School (0.74km) and Tyndale Community School (0.85km) nearby. Transport links are also within reasonable distance, with Oxford train station approximately 7.3km away. The property itself is in need of some modernisation, as seen in the images provided. While it has a garden, it appears to be somewhat overgrown. The list price of £450,000 is slightly higher than the average price of £410,714 for the area, however, it is important to note that the average sqft in the area is 916 sqft and this property is 629 sqft. The property is in need of some modernisation and this is reflected in the pricing. Considering the condition, location, and land size, the price may be slightly on the higher side but not unreasonable given the Oxford market.

Therefore, we give this property 6 / 10. *Disclaimer: This is our option and does constitute a recommendation or financial advice. Do your own research. *

Price
6
Condition
6
Location
7
Land
6
Bedrooms
3
Bathrooms
1
Sqft (est)
629.00
Lot (est)
903.00

The heatmap indicates the level of crime in the area. The color of the heatmap indicates the crime severity and recency.

Metrics Year-on-Year

Average area value
473,750.00 £
Increased by 2.87 %
from 460,545.00 £
Est sale value
330,225.00 £
Increased by 6.71 %
from 309,468.00 £
Average area rental value
1,237.00 £/mo
Decreased by 12.02 %
from 1,406.00 £/mo
Est letting value
629.00 £/mo
Unchanged by 0.00 %
from 629.00 £/mo
Est rental Yield
3.13 %
Decreased by 14.48 %
from 3.66 %
Crime Rate
8.00 %
Unchanged by 0.00 %
from 8.00 %

Agent Activity

  • Chancellors created the listing.

Nearby Schools

NameTypeOfstedDistance
Wood Farm Primary SchoolCommunity SchoolGood0.74 KM
Tyndale Community SchoolFree SchoolsGood0.85 KM
Slade Nursery SchoolLocal Authority Nursery SchoolOutstanding0.85 KM
St Francis Church Of England Primary SchoolVoluntary Controlled SchoolGood1.00 KM
Kings Education (Oxford)Other Independent SchoolGood1.18 KM

Images

External Front Reception Room Reception Room Reception Room Reception Room Reception Room Kitchen Kitchen Bedroom Bedroom Bedroom Bedroom Bedroom Bedroom Bedroom Bedroom Bathroom Bathroom External Grounds External Grounds External Front Reception Room Reception Room Bathroom Bedroom Bathroom Bedroom Bedroom Bedroom External View Reception Room Reception Room Bathroom Bedroom Kitchen Reception Room Kitchen Bedroom Garden Garden External View External View Reception Room

Nearby Streets

NameAverage PriceAverage SqftDistance
Cinnaminta Road £ 000.00 KM
Three Fields Road £ 280,00000.00 KM
St Francis Court £ 000.00 KM
Slade House £ 000.00 KM
William Morris Close £ 372,50000.00 KM

Nearby Transport

NameNLCTLCDistance
Oxford3115OXF7.30 KM
Radley3118RAD7.71 KM
Islip3110ISP9.66 KM

Nearby Listings

AddressPriceTypeScoreDistance
Lye Valley, Oxford, OX3 £ 450,000BUY6 / 100.00 KM
Coverley Road, Headington, OX3 £ 570,000BUYUnknown0.05 KM
Headington, Oxford, OX3 £ 500,000BUY5 / 100.06 KM
Bulan Road, Headington, Oxford £ 515,000BUY7 / 100.12 KM
Bulan Road, Headington, OX3 £ 425,000BUY6 / 100.13 KM

Nearby Properties

AddressPriceDistance
27a Coverley Road £ 155,0000.10 KM
27b Coverley Road £ 180,0000.10 KM
27 Coverley Road £ 430,0000.10 KM
22 Coverley Road £ 235,0000.10 KM
17 Coverley Road £ 410,0000.10 KM