Newton Road, Tankerton, Whitstable
CH

Newton Road, Tankerton, Whitstable

By Christopher Hodgson

£ 600,000

Reviews

3 out of 5 stars

Christopher Hodgson says ..

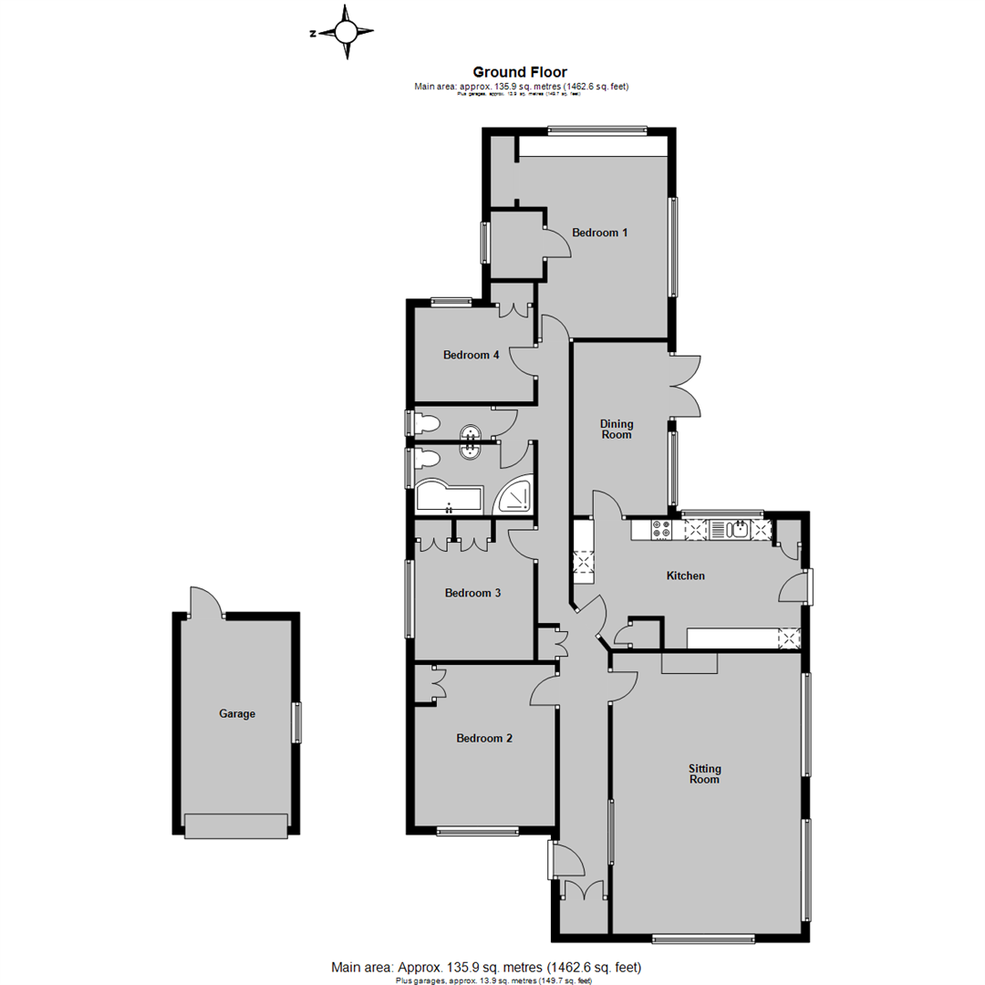
A unique and exciting opportunity to acquire a substantial detached bungalow occupying an exceptionally generous corner plot in a prime location. The property has a wide frontage of approximately 83ft (25.5m) to Newton Road and an overall depth in the region of 124ft (37.9m). The bright ...

Property Oracle says ..

This is a detached bungalow in Tankerton, Whitstable, offered by Christopher Hodgson. The property features four bedrooms and one bathroom. While the square footage isn’t listed, the property includes a front and rear garden, a garage, and off-street parking. The interior is dated and requires modernisation, particularly the kitchen and bathroom. The property is located within a reasonable distance of local schools and transportation links. The asking price of £600,000 seems fair, but may need to be adjusted based on the level of renovation required.

Therefore, we give this property 6 / 10. *Disclaimer: This is our option and does constitute a recommendation or financial advice. Do your own research. *

Price
6
Condition
5
Location
7
Land
7
Bedrooms
4
Bathrooms
1

The heatmap indicates the level of crime in the area. The color of the heatmap indicates the crime severity and recency.

Metrics Year-on-Year

Average area value
277,995.00 £
Increased by 12.95 %
from 246,113.00 £
Average area rental value
1,080.00 £/mo
Decreased by 3.91 %
from 1,124.00 £/mo
Est rental Yield
4.66 %
Decreased by 14.96 %
from 5.48 %
Crime Rate
1.00 %
Unchanged by 0.00 %
from 1.00 %

Agent Activity

  • Christopher Hodgson created the listing.

Nearby Schools

NameTypeOfstedDistance
Swalecliffe Community Primary SchoolFoundation SchoolGood0.59 KM
Swalecliffe Children'S CentreChildren's Centre Linked Site0.67 KM
St Mary'S Catholic Primary School, WhitstableAcademy ConverterGood1.67 KM
The Whitstable SchoolAcademy Converter1.94 KM
Westmeads Community Infant SchoolCommunity SchoolOutstanding2.63 KM

Images

Newton Road, Tankerton, Whitstable Newton Road, Tankerton, Whitstable Newton Road, Tankerton, Whitstable Newton Road, Tankerton, Whitstable Newton Road, Tankerton, Whitstable Newton Road, Tankerton, Whitstable Newton Road, Tankerton, Whitstable Newton Road, Tankerton, Whitstable Newton Road, Tankerton, Whitstable Newton Road, Tankerton, Whitstable Newton Road, Tankerton, Whitstable Newton Road, Tankerton, Whitstable Newton Road, Tankerton, Whitstable Newton Road, Tankerton, Whitstable Newton Road, Tankerton, Whitstable Newton Road, Tankerton, Whitstable Newton Road, Tankerton, Whitstable Newton Road, Tankerton, Whitstable

Nearby Streets

NameAverage PriceAverage SqftDistance
Palace Close £ 000.00 KM
Harvey Drive £ 450,00000.00 KM
Newton Road £ 499,95000.00 KM
Darnel Avenue £ 000.00 KM
Nasella Gardens £ 000.00 KM

Nearby Transport

NameNLCTLCDistance
Chestfield And Swalecliffe5200CSW1.50 KM
Whitstable5196WHI2.23 KM
Herne Bay5174HNB7.14 KM
Canterbury West5007CBW8.76 KM
Canterbury East5164CBE9.85 KM

Nearby Listings

AddressPriceTypeScoreDistance
Newton Road, Tankerton, Whitstable £ 600,000BUY6 / 100.00 KM
Newton Road, Whitstable, Kent £ 429,500BUYUnknown0.04 KM
Newton Road, Whitstable, Kent £ 650,000BUYUnknown0.04 KM
Swalecliffe Road, Tankerton, Whitstable £ 425,000BUY7 / 100.17 KM
Highgate Road, Whitstable, Kent, CT5 £ 360,000BUY7 / 100.24 KM

Nearby Properties

AddressPriceDistance
52 Newton Road £ 350,0000.04 KM
61 Newton Road £ 345,0000.04 KM
48 Newton Road £ 153,6000.04 KM
46 Newton Road £ 585,0000.04 KM
59 Newton Road £ 390,0000.04 KM