Gloucester Road, Bagshot, Surrey, GU19 5LT
By Avocado Property
£ 425,000
Reviews
3 out of 5 stars
Avocado Property says ..
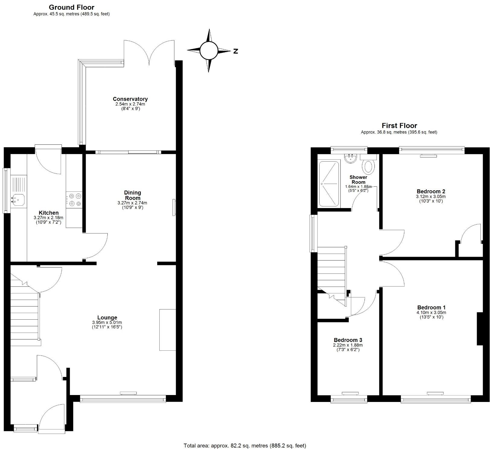
A lovely three bedroom semi-detached home in a popular spot being a short walk from the village centre and train station. There are three reception areas including a living room, dining room and conservatory, as well as a refitted shower room, stunning rear garden, garage and driveway.
Property Oracle says ..
Therefore, we give this property 7 / 10. *Disclaimer: This is our option and does constitute a recommendation or financial advice. Do your own research. *
- Price
- 9
- Condition
- 6
- Location
- 8
- Land
- 7
- Bedrooms
- 3
- Bathrooms
- 1
- Sqft (est)
- 776.29
The heatmap indicates the level of crime in the area. The color of the heatmap indicates the crime severity and recency.
Metrics Year-on-Year
- Average area value
- 1,043,333.00 £Increased by 83.77 %
- Est sale value
- 1,024,702.80 £Increased by 225.12 %
- Average area rental value
- 6,842.00 £/moIncreased by 222.89 %
- Est letting value
- 6,210.32 £/moIncreased by 700.00 %
- Est rental Yield
- 7.87 %Increased by 75.67 %
- Crime Rate
- 30.00 %Unchanged by 0.00 %
from 567,724.00 £
from 315,173.74 £
from 2,119.00 £/mo
from 776.29 £/mo
from 4.48 %
from 30.00 %
Agent Activity
Avocado Property created the listing.
Nearby Schools
| Name | Type | Ofsted | Distance |
|---|---|---|---|
| Connaught Junior School | Academy Converter | Good | 0.79 KM |
| Bagshot Infant School & Sure Start Children'S Centre | Children's Centre | 0.91 KM | |
| Bagshot Infant School | Community School | Good | 0.91 KM |
| Hall Grove School | Other Independent School | 1.20 KM | |
| Hammond School | Academy Converter | Good | 1.76 KM |
Images
Nearby Streets
| Name | Average Price | Average Sqft | Distance |
|---|---|---|---|
| Bagshot Station Footbridge | £ 0 | 0 | 0.00 KM |
| Station Road | £ 566,667 | 0 | 0.00 KM |
| Wardle Close | £ 463,333 | 0 | 0.00 KM |
| Hamilton Close | £ 0 | 0 | 0.00 KM |
| Jacks | £ 299,000 | 0 | 0.00 KM |
Nearby Transport
| Name | NLC | TLC | Distance |
|---|---|---|---|
| Bagshot | 5681 | BAG | 0.07 KM |
| Ascot (Berks) | 5666 | ACT | 4.91 KM |
| Martins Heron | 5692 | MAO | 6.28 KM |
| Sunningdale | 5671 | SNG | 6.86 KM |
| Camberley | 5682 | CAM | 6.91 KM |
Nearby Listings
| Address | Price | Type | Score | Distance |
|---|---|---|---|---|
| Gloucester Road, Bagshot, Surrey, GU19 5LT | £ 425,000 | BUY | 7 / 10 | 0.00 KM |
| Gloucester Road, Bagshot | £ 475,000 | BUY | 7 / 10 | 0.06 KM |
| Gloucester Road, Bagshot, Surrey, GU19 | £ 375,000 | BUY | 6 / 10 | 0.06 KM |
| Gloucester Road, Bagshot, Surrey, GU19 | £ 435,000 | BUY | 7 / 10 | 0.07 KM |
| Talbot Place, BAGSHOT, GU19 | £ 500,000 | BUY | 7 / 10 | 0.08 KM |
Nearby Properties
| Address | Price | Distance |
|---|---|---|
| 72 Gloucester Road | £ 318,000 | 0.07 KM |
| 68 Gloucester Road | £ 263,000 | 0.07 KM |
| 53 Gloucester Road | £ 350,000 | 0.07 KM |
| 43 Gloucester Road | £ 320,000 | 0.07 KM |
| 35 Gloucester Road | £ 189,950 | 0.07 KM |