Fenn Wright says ..
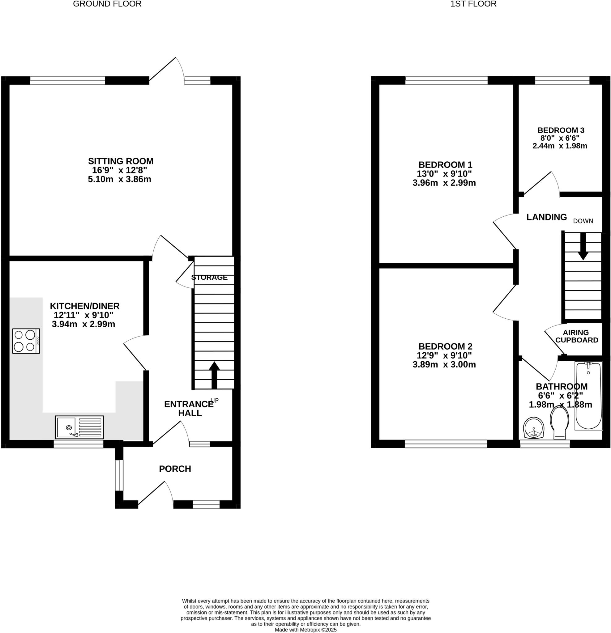
Located in a sought after cul-de-sac just a short distance from Sudbury town centre, this three bedroom home boasts a garage and a prime location near local amenities. Selling with no onward chain this is the ideal purchase for first time buyers or downsizers seeking a well connected yet peacefu...
Property Oracle says ..
Therefore, we give this property 5 / 10. *Disclaimer: This is our option and does constitute a recommendation or financial advice. Do your own research. *
- Price
- 4
- Condition
- 6
- Location
- 7
- Land
- 6
- Bedrooms
- 3
- Bathrooms
- 1
- Sqft (est)
- 684.48
The heatmap indicates the level of crime in the area. The color of the heatmap indicates the crime severity and recency.
Metrics Year-on-Year
- Average area value
- 269,990.00 £Increased by 14.67 %
- Est sale value
- 184,125.12 £Increased by 35.18 %
- Average area rental value
- 888.00 £/moDecreased by 3.06 %
- Est letting value
- 0.00 £/mo
- Est rental Yield
- 3.95 %Decreased by 15.42 %
- Crime Rate
- 2.00 %Unchanged by 0.00 %
from 235,441.00 £
from 136,211.52 £
from 916.00 £/mo
from 0.00 £/mo
from 4.67 %
from 2.00 %
Agent Activity
Fenn Wright created the listing.
Nearby Schools
| Name | Type | Ofsted | Distance |
|---|---|---|---|
| Chalk Hill | Academy Alternative Provision Sponsor Led | 0.55 KM | |
| Pot Kiln Primary School | Community School | Good | 0.78 KM |
| Tudor Church Of England Primary School, Sudbury | Academy Sponsor Led | Good | 1.24 KM |
| Ormiston Sudbury Academy | Academy Sponsor Led | Good | 1.30 KM |
| Woodlands Children'S Centre | Children's Centre | 1.31 KM |
Images
Nearby Streets
| Name | Average Price | Average Sqft | Distance |
|---|---|---|---|
| Ingram's Well Road | £ 0 | 0 | 0.00 KM |
| Hazell Court | £ 0 | 0 | 0.00 KM |
| Magistrates Courtyard | £ 0 | 0 | 0.00 KM |
| King Street | £ 845,000 | 0 | 0.00 KM |
| Bullocks Lane | £ 0 | 0 | 0.00 KM |
Nearby Transport
| Name | NLC | TLC | Distance |
|---|---|---|---|
| Sudbury (Suffolk) | 7098 | SUY | 0.65 KM |
| Bures | 7085 | BUE | 8.08 KM |
Nearby Listings
| Address | Price | Type | Score | Distance |
|---|---|---|---|---|
| Newton Croft, Sudbury, CO10 | £ 240,000 | BUY | 5 / 10 | 0.00 KM |
| Newton Croft, Sudbury | £ 250,000 | BUY | 6 / 10 | 0.06 KM |
| Newton Croft, Sudbury, Suffolk | £ 240,000 | BUY | 7 / 10 | 0.09 KM |
| Newton Croft, Sudbury, CO10 | £ 270,000 | BUY | Unknown | 0.10 KM |
| Sudbury, Suffolk | £ 600,000 | BUY | Unknown | 0.12 KM |
Nearby Properties
| Address | Price | Distance |
|---|---|---|
| 17 Newton Croft | £ 197,000 | 0.08 KM |
| 7 Newton Croft | £ 205,000 | 0.08 KM |
| 21 Newton Croft | £ 185,000 | 0.08 KM |
| 10 Newton Croft | £ 260,000 | 0.08 KM |
| 31 Newton Croft | £ 145,000 | 0.08 KM |