CL
Hambledon Road, Hydestile, Godalming
By Clarke Gammon
£ 2,750,000
Reviews
3 out of 5 stars
Clarke Gammon says ..
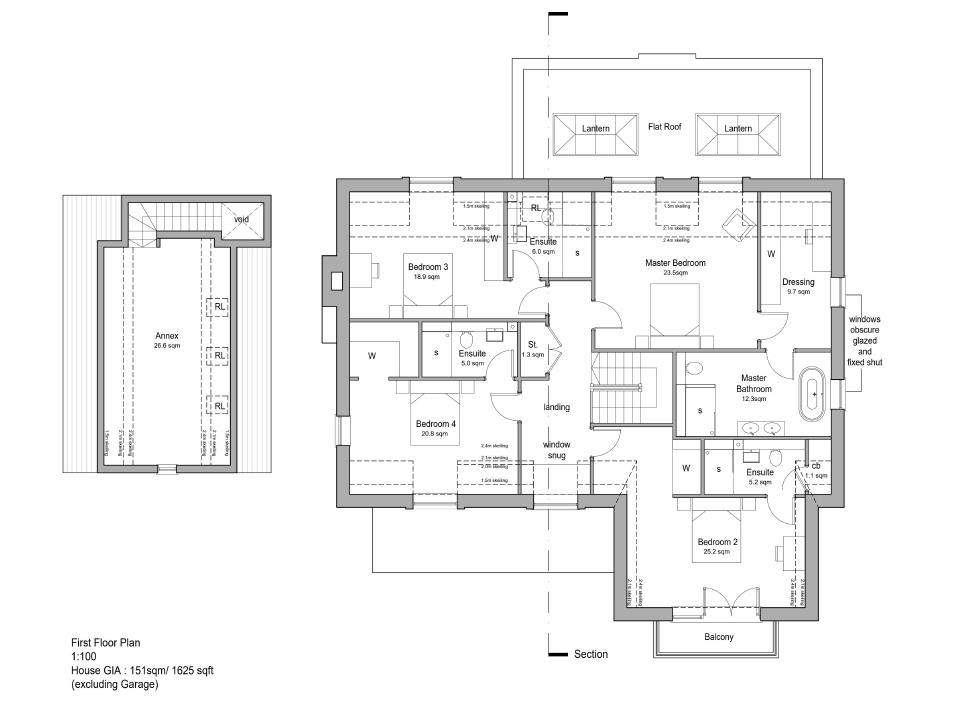
A truly unusual planning permission located in one of the premier locations in South West Surrey. Close to West Surrey Golf Club, having 3.5 acres of garden, paddocks, and less formal grounds, this plot has been consented for a significant detached family home of 3,748 sq. ft. plus double garage,...
Property Oracle says ..
Therefore, we give this property 7 / 10. *Disclaimer: This is our option and does constitute a recommendation or financial advice. Do your own research. *
- Price
- 5
- Condition
- 9
- Location
- 7
- Land
- 9
- Bedrooms
- 4
- Bathrooms
- 4
The heatmap indicates the level of crime in the area. The color of the heatmap indicates the crime severity and recency.
Metrics Year-on-Year
- Average area value
- 272,143.00 £Decreased by 0.84 %
- Average area rental value
- 950.00 £/moDecreased by 12.68 %
- Est rental Yield
- 4.19 %Decreased by 11.97 %
- Crime Rate
- 0.00 %
from 274,456.00 £
from 1,088.00 £/mo
from 4.76 %
from 0.00 %
Agent Activity
Clarke Gammon created the listing.
Nearby Schools
| Name | Type | Ofsted | Distance |
|---|---|---|---|
| St Dominic'S School | Academy Special Converter | 1.93 KM | |
| Godalming College | Academy 16-19 Converter | Outstanding | 2.76 KM |
| Busbridge Infant School | Foundation School | Serious Weaknesses | 3.21 KM |
| Witley Cofe Controlled Infant School | Voluntary Controlled School | Good | 3.25 KM |
| St Edmund'S Catholic Primary School | Academy Converter | 3.27 KM |
Images
Nearby Streets
| Name | Average Price | Average Sqft | Distance |
|---|---|---|---|
| New Road | £ 0 | 0 | 0.00 KM |
Nearby Transport
| Name | NLC | TLC | Distance |
|---|---|---|---|
| Milford (Surrey) | 5644 | MLF | 2.36 KM |
| Witley | 5640 | WTY | 3.65 KM |
| Godalming | 5629 | GOD | 3.83 KM |
| Farncombe | 5643 | FNC | 5.25 KM |
| Shalford (Surrey) | 5638 | SFR | 9.00 KM |
Nearby Listings
| Address | Price | Type | Score | Distance |
|---|---|---|---|---|
| Hambledon Road, Hydestile, Godalming | £ 2,750,000 | BUY | 7 / 10 | 0.00 KM |
| Hambledon Road, Hydestile, Godalming | £ 1,000,000 | BUY | 8 / 10 | 0.02 KM |
| Salt Lane, Hydestile, Godalming, GU8 | £ 895,000 | BUY | Unknown | 0.76 KM |
| Salt Lane, Hydestile, Godalming, Surrey, GU8 | £ 1,250,000 | BUY | 7 / 10 | 1.17 KM |
| Church Lane, Hambledon, Godalming, Surrey, GU8 | £ 900,000 | BUY | 6 / 10 | 1.21 KM |
Nearby Properties
| Address | Price | Distance |
|---|---|---|
| Graydene | £ 90,015 | 0.74 KM |
| Hunt Cottage | £ 478,500 | 0.76 KM |
| 8 Salt Lane | £ 500,000 | 0.76 KM |
| 3 Salt Lane | £ 135,000 | 0.76 KM |
| The Garden House | £ 975,000 | 0.87 KM |