Castlegate, Cockermouth
GR

Castlegate, Cockermouth

By Grisdales Estates Agents

£ 285,000

Reviews

3 out of 5 stars

Grisdales Estates Agents says ..

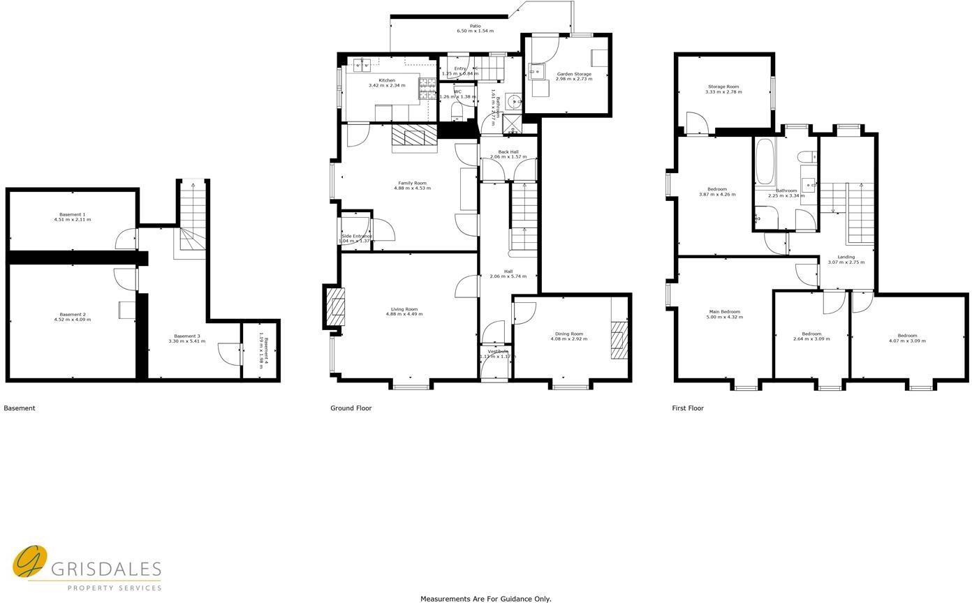
This Grade II Listed Georgian end terrace residence on Castlegate offers a unique opportunity for those seeking a blend of historical elegance and modern potential. With its striking architectural features, this property boasts three spacious reception rooms, perfect for entertaining or relaxing ...

Property Oracle says ..

Therefore, we give this property 7 / 10. *Disclaimer: This is our option and does constitute a recommendation or financial advice. Do your own research. *

Price
9
Condition
6
Location
7
Land
7
Bedrooms
4
Bathrooms
2
Sqft (est)
1,997.14

The heatmap indicates the level of crime in the area. The color of the heatmap indicates the crime severity and recency.

Metrics Year-on-Year

Average area value
370,825.00 £
Increased by 3.92 %
from 356,852.00 £
Est sale value
990,581.44 £
Increased by 49.40 %
from 663,050.48 £
Average area rental value
1,140.00 £/mo
Decreased by 24.35 %
from 1,507.00 £/mo
Est letting value
1,997.14 £/mo
Unchanged by 0.00 %
from 1,997.14 £/mo
Est rental Yield
3.69 %
Decreased by 27.22 %
from 5.07 %
Crime Rate
28.00 %
Unchanged by 0.00 %
from 28.00 %

Agent Activity

  • Grisdales Estates Agents created the listing.

Nearby Schools

NameTypeOfstedDistance
Fairfield Primary SchoolAcademy ConverterGood0.73 KM
St Joseph'S Catholic Primary SchoolVoluntary Aided SchoolRequires improvement0.95 KM
All Saints' Cofe SchoolVoluntary Controlled SchoolGood1.12 KM
Cockermouth SchoolAcademy ConverterGood1.12 KM
Eaglesfield Paddle Cofe Primary AcademyAcademy Converter3.80 KM

Images

DSC_9695.jpg DSC_9711.jpg DSC_9698.jpg ENTRANCE HALL SITTING ROOM DINING ROOM DINING ROOM SITTING ROOM 2 SITTING ROOM 2 KITCHEN KITCHEN KITCHEN STAIRCASE AND LANDING STAIRCASE AND LANDING BEDROOM ONE BEDROOM ONE BEDROOM TWO BEDROOM TWO BEDROOM THREE BEDROOM THREE BEDROOM FOUR BEDROOM FOUR FAMILY BATHROOM FAMILY BATHROOM GARDEN GARDEN GARDEN OUTHOUSE DJI_20250711164109_0147_D.jpg DJI_20250711164144_0148_D.jpg DJI_20250711164229_0150_D.jpg DJI_20250711164016_0145_D.jpg DIRECTIONS DSC_9697.jpg DSC_9694.jpg

Nearby Streets

NameAverage PriceAverage SqftDistance
Church Went £ 215,00000.00 KM
The Croft £ 160,00000.00 KM
Saint Helen's Street £ 203,31700.00 KM
Smailes Court £ 000.00 KM
Cherry Lane £ 000.00 KM

Nearby Listings

AddressPriceTypeScoreDistance
Castlegate, Cockermouth £ 285,000BUY7 / 100.00 KM
Castlegate, Cockermouth, CA13 £ 185,000BUY6 / 100.04 KM
Market Street, Cockermouth, CA13 9NJ £ 240,000BUY5 / 100.14 KM
Market Street, Cockermouth £ 199,950BUYUnknown0.14 KM
Market Street, Cockermouth, CA13 £ 215,000BUYUnknown0.15 KM

Nearby Properties

AddressPriceDistance
4 Castlegate £ 165,0000.05 KM
8 Castlegate £ 215,0000.07 KM
39a Market Place £ 60,0000.12 KM
6 Market Street £ 190,0000.14 KM
10 Market Street £ 195,0000.14 KM