David Andrew says ..
Welcome to Playford Road, we are delighted to present this charming four-bedroom freehold house, lovingly maintained and improved by the current owners for over 30 years - perfectly blending classic features with modern upgrades.Ornate boundary walls and a neatly kept front garden greet you upon ...
Property Oracle says ..
Playford Road, London, N4 is located in Finsbury Park, Islington. This area benefits from excellent transport links, with Finsbury Park station providing access to the Great Northern and Victoria lines. The property is also within proximity to several highly-rated primary schools, including Pooles Park Primary School and Christ The King Catholic Primary School, making it attractive to families. The local area also includes shops and amenities.
Based on the images provided, the property appears to be in good condition and has undergone recent renovations or modernisation. The kitchen and bathroom have been updated to a modern standard. The extension to the rear of the property significantly increases the living space and opens up the property to the garden.
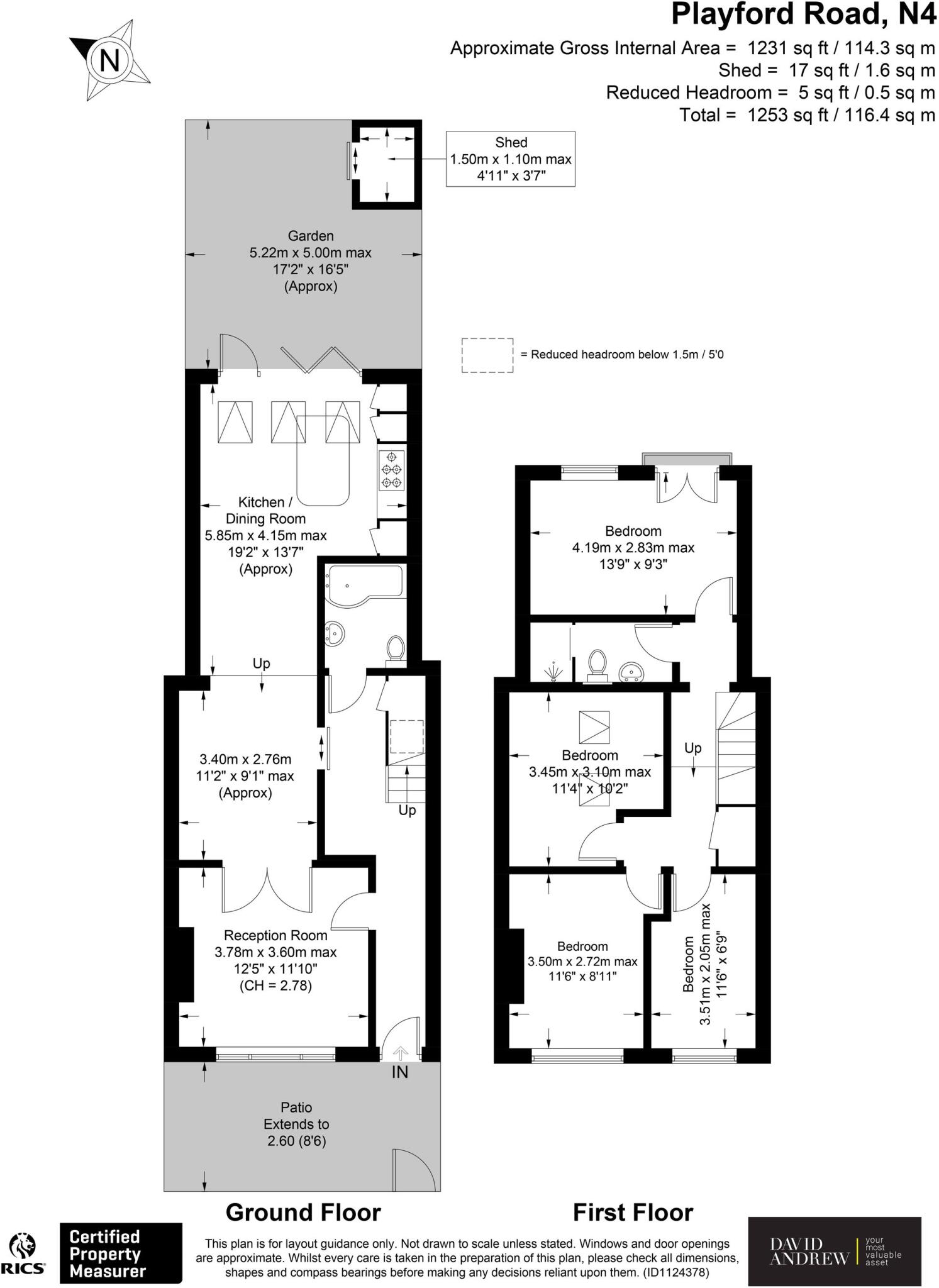
The property includes a garden, which is a desirable feature in London. The size of the garden is relatively small at 116.40 sqft, but it is well-maintained and provides a private outdoor space.
The list price of £1,000,000 is higher than the average price for the area (£676,595). However, considering the property’s size, updated condition, and desirable location, the price may be considered reasonable, especially in comparison to similar properties on Playford Road. The lack of square footage information for the subject property and comparable properties makes a definitive price per square foot comparison challenging. Further investigation into the actual size of the property would be needed to fully assess the value.
Therefore, we give this property 7 / 10. *Disclaimer: This is our option and does constitute a recommendation or financial advice. Do your own research. *
- Price
- 7
- Condition
- 9
- Location
- 9
- Land
- 6
- Bedrooms
- 4
- Bathrooms
- 2
- Lot (est)
- 116.40
The heatmap indicates the level of crime in the area. The color of the heatmap indicates the crime severity and recency.
Metrics Year-on-Year
- Average area value
- 493,333.00 £Decreased by 29.75 %
- Average area rental value
- 2,514.00 £/moIncreased by 5.59 %
- Est rental Yield
- 6.12 %Increased by 50.37 %
- Crime Rate
- 5.00 %Unchanged by 0.00 %
Agent Activity
David Andrew created the listing.
Nearby Schools
| Name | Type | Ofsted | Distance |
|---|---|---|---|
| Pooles Park Primary School | Community School | Good | 0.12 KM |
| North Islington Nursery School | Local Authority Nursery School | Good | 0.20 KM |
| North Islington Nursery School And Children'S Centre | Children's Centre | 0.23 KM | |
| Christ The King Catholic Primary School | Voluntary Aided School | Good | 0.37 KM |
| Arts And Media School Islington | Foundation School | Good | 0.48 KM |
Images
Nearby Streets
| Name | Average Price | Average Sqft | Distance |
|---|---|---|---|
| Dulas Street | £ 0 | 0 | 0.00 KM |
| Cornwallis Square | £ 250,000 | 0 | 0.00 KM |
| Osborne Road | £ 0 | 0 | 0.00 KM |
| Franchise Place | £ 0 | 0 | 0.00 KM |
| Tollington Mews | £ 0 | 0 | 0.00 KM |
Nearby Transport
| Name | NLC | TLC | Distance |
|---|---|---|---|
| Finsbury Park | 6119 | FPK | 0.63 KM |
| Crouch Hill | 7406 | CRH | 0.85 KM |
| Harringay | 6012 | HGY | 1.48 KM |
| Drayton Park | 6000 | DYP | 1.61 KM |
| Harringay Green Lanes | 7401 | HRY | 1.97 KM |
Nearby Listings
| Address | Price | Type | Score | Distance |
|---|---|---|---|---|
| Playford Road, London, N4 | £ 1,000,000 | BUY | 7 / 10 | 0.00 KM |
| Moray Road, Finsbury Park | £ 850,000 | BUY | 7 / 10 | 0.05 KM |
| Moray Road, Finsbury Park | £ 850,000 | BUY | 7 / 10 | 0.05 KM |
| Moray Road N4 3LG | £ 385,000 | BUY | 7 / 10 | 0.05 KM |
| Fonthill Road, Finsbury Park | £ 325,000 | BUY | 6 / 10 | 0.07 KM |
Nearby Properties
| Address | Price | Distance |
|---|---|---|
| 116 Playford Road | £ 85,588 | 0.04 KM |
| 100a Playford Road | £ 298,000 | 0.04 KM |
| 122 Playford Road | £ 925,000 | 0.04 KM |
| 100b Playford Road | £ 568,000 | 0.04 KM |
| 114 Playford Road | £ 800,000 | 0.04 KM |