Sun Star Cottage, Reigate Road, Hookwood, RH6
By Mayhew Estates
£ 450,000
Reviews
3 out of 5 stars
Mayhew Estates says ..
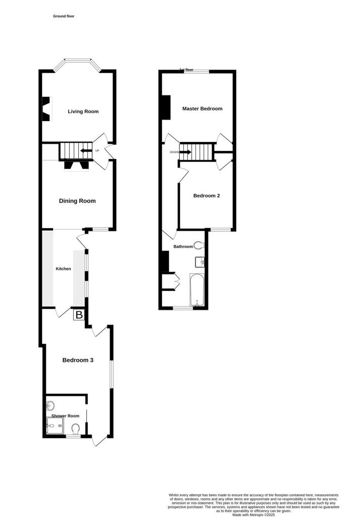
OFFERED TO THE MARKET ON A PRICE GUIDE OF £450,000 - £475,000. A well presented three bedroom, semi-detached family home situated in a popular road with a landscaped rear garden.
Property Oracle says ..
The property is located in Hookwood, Surrey, with good access to transportation and schools. The interior appears to be in good condition with a modern kitchen and well-maintained living spaces. The property includes a garden with a patio area and a shed. Considering the condition and features, the price seems reasonable in comparison to nearby listings.
Therefore, we give this property 7 / 10. *Disclaimer: This is our option and does constitute a recommendation or financial advice. Do your own research. *
- Price
- 6
- Condition
- 8
- Location
- 7
- Land
- 7
- Bedrooms
- 3
- Bathrooms
- 2
- Sqft (est)
- 890.00
The heatmap indicates the level of crime in the area. The color of the heatmap indicates the crime severity and recency.
Metrics Year-on-Year
- Average area value
- 991,818.00 £Increased by 31.85 %
- Est sale value
- 251,870.00 £Increased by 16.94 %
- Average area rental value
- 2,500.00 £/moIncreased by 13.64 %
- Est letting value
- 0.00 £/mo
- Est rental Yield
- 3.02 %Decreased by 13.96 %
- Crime Rate
- 18.00 %Unchanged by 0.00 %
Agent Activity
Mayhew Estates created the listing.
Nearby Schools
| Name | Type | Ofsted | Distance |
|---|---|---|---|
| Manorfield Primary And Nursery School | Community School | Good | 1.54 KM |
| Westvale Park Primary Academy | Free Schools | 2.06 KM | |
| Meath Green Junior School | Community School | Good | 2.12 KM |
| Horley Community Sure Start Children'S Centre | Children's Centre | 2.56 KM | |
| Meath Green Infant School | Community School | Outstanding | 2.57 KM |
Images
Nearby Streets
| Name | Average Price | Average Sqft | Distance |
|---|---|---|---|
| London Road | £ 0 | 0 | 0.00 KM |
| Maple Close | £ 0 | 0 | 0.00 KM |
| Farmfield Drive | £ 0 | 0 | 0.00 KM |
| Church View Close | £ 691,833 | 0 | 0.00 KM |
| Gratton Road | £ 0 | 0 | 0.00 KM |
Nearby Transport
| Name | NLC | TLC | Distance |
|---|---|---|---|
| Horley | 5365 | HOR | 2.95 KM |
| Gatwick Airport | 5416 | GTW | 3.22 KM |
| Salfords (Surrey) | 5380 | SAF | 4.68 KM |
| Crawley | 5484 | CRW | 6.21 KM |
| Three Bridges | 5491 | TBD | 6.40 KM |
Nearby Listings
| Address | Price | Type | Score | Distance |
|---|---|---|---|---|
| Sun Star Cottage, Reigate Road, Hookwood, RH6 | £ 450,000 | BUY | 7 / 10 | 0.00 KM |
| Reigate Road, Horley, RH6 | £ 450,000 | BUY | 7 / 10 | 0.01 KM |
| Reigate Road, Horley, RH6 | £ 430,000 | BUY | 7 / 10 | 0.08 KM |
| Reigate Road, Hookwood, Horley, Surrey | £ 1,250,000 | BUY | 7 / 10 | 0.11 KM |
| Reigate Road, Hookwood, RH6 | £ 400,000 | BUY | 6 / 10 | 0.11 KM |
Nearby Properties
| Address | Price | Distance |
|---|---|---|
| Westcroft | £ 420,000 | 0.00 KM |
| Sunnyside | £ 415,000 | 0.11 KM |
| Povey Cross House | £ 1,375,000 | 0.11 KM |
| Settlefield | £ 350,000 | 0.11 KM |
| Lyndhurst | £ 825,000 | 0.11 KM |