Lime Grove (New), Sheringham
AR

Lime Grove (New), Sheringham

By Arnolds Keys

£ 430,000

Reviews

3 out of 5 stars

Arnolds Keys says ..

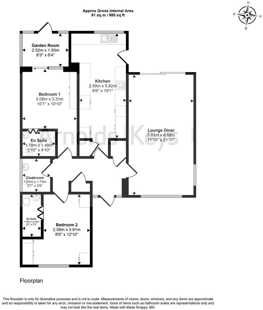
A highly individual detached bungalow offering extended accommodation with two bedrooms, two bathrooms and a garden room. Enjoying a cul-de-sac location on this popular residential development itself located towards the southern outskirts of the Town, adjacent to woodland at Pretty Corner.

Property Oracle says ..

This property is a detached bungalow located in Sheringham, North Norfolk. It benefits from being close to good schools such as Sheringham Community Primary School (Good Ofsted rating) and Sheringham High School (Good Ofsted rating), both within approximately 1km. Sheringham train station is also conveniently located approximately 1.13km away. The property itself is presented in good condition, with a modern kitchen and updated bathrooms. The images show a well-maintained garden with a patio area, shed, and other landscaping features. The list price of £430,000 is slightly above the average price of £424,446 for the area, but considering the property’s condition, location, and the inclusion of a garden, it appears to be reasonably priced. Nearby comparable properties support this assessment, although the lack of sqft data for those properties makes a precise comparison difficult.

Therefore, we give this property 7 / 10. *Disclaimer: This is our option and does constitute a recommendation or financial advice. Do your own research. *

Price
7
Condition
8
Location
9
Land
7
Bedrooms
2
Bathrooms
3
Sqft (est)
979.52

The heatmap indicates the level of crime in the area. The color of the heatmap indicates the crime severity and recency.

Metrics Year-on-Year

Average area value
337,772.00 £
Decreased by 14.97 %
from 397,237.00 £
Est sale value
265,449.92 £
Decreased by 19.35 %
from 329,118.72 £
Average area rental value
950.00 £/mo
Increased by 2.70 %
from 925.00 £/mo
Est letting value
0.00 £/mo
from 0.00 £/mo
Est rental Yield
3.38 %
Increased by 21.15 %
from 2.79 %
Crime Rate
11.00 %
Unchanged by 0.00 %
from 11.00 %

Agent Activity

  • Arnolds Keys created the listing.

Nearby Schools

NameTypeOfstedDistance
Sheringham Community Primary SchoolCommunity SchoolGood0.77 KM
Sheringham Woodfields SchoolFoundation Special SchoolOutstanding0.96 KM
Sheringham High SchoolAcademy ConverterGood1.10 KM
St Andrew'S SchoolOther Independent Special SchoolGood2.51 KM
Beeston Hall SchoolOther Independent School3.04 KM

Images

DSC_0001.jpg DSC_0023.jpg DSC_0022.jpg DSC_0021.jpg DSC_0017.jpg DSC_0018.jpg DSC_0020.jpg DSC_0019.jpg DSC_0009.jpg DSC_0010.jpg DSC_0011.jpg DSC_0012.jpg DSC_0013.jpg DSC_0014.jpg DSC_0015.jpg DSC_0016.jpg DSC_0006.jpg DSC_0007.jpg DSC_0008.jpg DSC_0003.jpg DSC_0002.jpg DSC_0004.jpg DSC_0005.jpg DSC_0001(1).jpg DJI_0220.jpg DSC_0002(1).jpg DSC_0003(1).jpg DSC_0004(1).jpg DSC_0005(1).jpg DSC_0006.jpg DSC_0007(1).jpg DJI_0217.jpg DJI_0214.jpg DJI_0211.jpg DJI_0223.jpg DJI_0226.jpg

Nearby Streets

NameAverage PriceAverage SqftDistance
Linden Grove £ 000.00 KM
Birch Grove £ 000.00 KM
Chestnut Grove £ 390,00000.00 KM
Poplar Grove £ 000.00 KM
Garden Road £ 000.00 KM

Nearby Transport

NameNLCTLCDistance
Sheringham7319SHM1.13 KM
West Runton7329WRN4.27 KM
Cromer7295CMR9.49 KM

Nearby Listings

AddressPriceTypeScoreDistance
Lime Grove (New), Sheringham £ 430,000BUY7 / 100.00 KM
Sheringham £ 325,000BUYUnknown0.06 KM
Beech Avenue new, Sheringham £ 325,000BUY7 / 100.08 KM
Sheringham £ 320,000BUY7 / 100.11 KM
Linden Grove, Sheringham £ 450,000BUY7 / 100.12 KM

Nearby Properties

AddressPriceDistance
1 Lime Grove £ 185,0000.01 KM
3 Lime Grove £ 249,0000.01 KM
4 Lime Grove £ 175,0000.01 KM
2 Lime Grove £ 170,0000.01 KM
6 Lime Grove £ 247,5000.01 KM