Yopa says ..
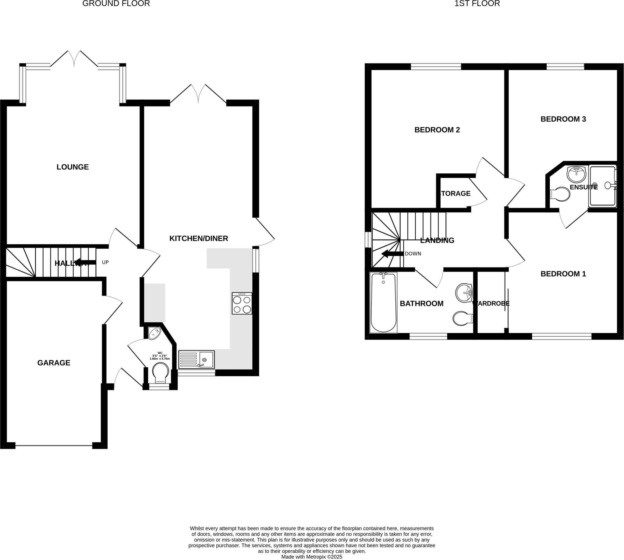
NEW TO THE MARKET AND IN EXCELLENT CONDITION THROUGHOUT is this three double bedroomed family home enjoying open countryside views and located in the heart of Crich village with all local amenities within easy walking distance. Bus routes and good road networks including the A6, A38 and M1 nearby.
Property Oracle says ..
Therefore, we give this property 7 / 10. *Disclaimer: This is our option and does constitute a recommendation or financial advice. Do your own research. *
- Price
- 8
- Condition
- 9
- Location
- 7
- Land
- 7
- Bedrooms
- 3
- Bathrooms
- 2
The heatmap indicates the level of crime in the area. The color of the heatmap indicates the crime severity and recency.
Metrics Year-on-Year
- Average area value
- 178,750.00 £Decreased by 27.19 %
- Average area rental value
- 583.00 £/moDecreased by 41.05 %
- Est rental Yield
- 3.91 %Decreased by 19.05 %
- Crime Rate
- 34.00 %Unchanged by 0.00 %
from 245,507.00 £
from 989.00 £/mo
from 4.83 %
from 34.00 %
Agent Activity
Yopa created the listing.
Nearby Schools
| Name | Type | Ofsted | Distance |
|---|---|---|---|
| Crich Junior School | Community School | Outstanding | 0.80 KM |
| Crich Church Of England Infant School | Voluntary Controlled School | Good | 1.00 KM |
| Fritchley Cofe (Aided) Primary & Nursery School | Voluntary Aided School | Good | 1.11 KM |
| Ambergate Primary School | Community School | Good | 2.18 KM |
| Crich Carr Cofe Primary School | Voluntary Controlled School | Good | 2.82 KM |
Images
Nearby Streets
| Name | Average Price | Average Sqft | Distance |
|---|---|---|---|
| Woodside | £ 352,088 | 0 | 0.00 KM |
| New Road | £ 240,000 | 0 | 0.00 KM |
| Fairview Rise | £ 0 | 0 | 0.00 KM |
| Chadwick Nick Lane | £ 697,500 | 0 | 0.00 KM |
| Market Place | £ 0 | 0 | 0.00 KM |
Nearby Transport
| Name | NLC | TLC | Distance |
|---|---|---|---|
| Ambergate | 1678 | AMB | 1.83 KM |
| Whatstandwell | 1585 | WTS | 2.94 KM |
| Belper | 1679 | BLP | 5.92 KM |
| Cromford | 1822 | CMF | 8.80 KM |
| Duffield | 1691 | DFI | 9.87 KM |
Nearby Listings
| Address | Price | Type | Score | Distance |
|---|---|---|---|---|
| Woodside, Crich, DE4 | £ 395,000 | BUY | 7 / 10 | 0.00 KM |
| The Common, Crich, Derbyshire, DE4 5FX | £ 399,950 | BUY | 6 / 10 | 0.05 KM |
| The Common, Crich, Derbyshire, DE4 5FX | £ 496,950 | BUY | 6 / 10 | 0.05 KM |
| The Common, Crich, Derbyshire, DE4 5FX | £ 399,950 | BUY | 7 / 10 | 0.05 KM |
| The Common, Crich, Derbyshire, DE4 5FX | £ 539,950 | BUY | 8 / 10 | 0.05 KM |
Nearby Properties
| Address | Price | Distance |
|---|---|---|
| 15 Woodside | £ 339,950 | 0.02 KM |
| 16 Woodside | £ 414,950 | 0.02 KM |
| 124 The Common | £ 315,000 | 0.17 KM |
| 144 The Common | £ 285,000 | 0.17 KM |
| 122b The Common | £ 230,000 | 0.17 KM |