Northview Road, Budleigh Salterton, EX9
By Fine and Country Exeter
£ 2,350,000
Reviews
4 out of 5 stars
Fine and Country Exeter says ..
Commanding an elevated and private position along one of Budleigh Salterton’s most prestigious addresses, Highcliffe House is a distinguished, detached family home of rare calibre
Property Oracle says ..
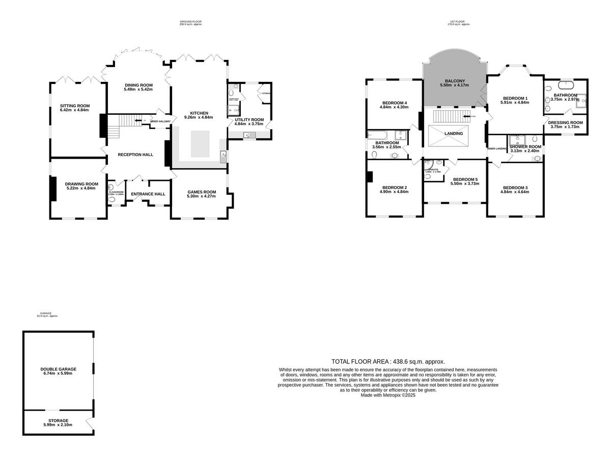
This is a substantial detached property located in a sought-after area of Budleigh Salterton. The house offers five bedrooms, five bathrooms, and extensive living space, totaling 4,721.05 sqft. The property is in excellent condition, featuring modern amenities and high-quality finishes. The landscaped gardens include a swimming pool, outdoor seating, and a large driveway. While the asking price is high, the size, condition, and location of the property make it a desirable family home.
Therefore, we give this property 8 / 10. *Disclaimer: This is our option and does constitute a recommendation or financial advice. Do your own research. *
- Price
- 6
- Condition
- 9
- Location
- 8
- Land
- 9
- Bedrooms
- 5
- Bathrooms
- 5
- Sqft (est)
- 4,721.05
The heatmap indicates the level of crime in the area. The color of the heatmap indicates the crime severity and recency.
Metrics Year-on-Year
- Average area value
- 604,931.00 £Decreased by 0.31 %
- Est sale value
- 2,233,056.65 £Decreased by 1.05 %
- Average area rental value
- 2,475.00 £/moIncreased by 98.64 %
- Est letting value
- 4,721.05 £/mo
- Est rental Yield
- 4.91 %Increased by 99.59 %
- Crime Rate
- 3.00 %Unchanged by 0.00 %
Agent Activity
Fine and Country Exeter created the listing.
Nearby Schools
| Name | Type | Ofsted | Distance |
|---|---|---|---|
| St Peter'S Church Of England Primary School | Voluntary Aided School | Good | 0.98 KM |
| Drake'S Church Of England Primary School | Academy Converter | 3.19 KM | |
| Littleham Church Of England Primary School | Voluntary Controlled School | Requires improvement | 4.86 KM |
| Otterton Church Of England Primary School | Academy Converter | 4.90 KM | |
| Mill Water School | Foundation Special School | Good | 5.30 KM |
Images
Nearby Streets
| Name | Average Price | Average Sqft | Distance |
|---|---|---|---|
| Park Lane | £ 1,061,125 | 0 | 0.00 KM |
| Ragg Lane | £ 0 | 0 | 0.00 KM |
| Steamer Steps | £ 0 | 0 | 0.00 KM |
| Westfield Close | £ 1,250,000 | 0 | 0.00 KM |
| Park's Lane | £ 0 | 0 | 0.00 KM |
Nearby Transport
| Name | NLC | TLC | Distance |
|---|---|---|---|
| Exmouth | 5756 | EXM | 9.09 KM |
Nearby Listings
| Address | Price | Type | Score | Distance |
|---|---|---|---|---|
| Northview Road, Budleigh Salterton, EX9 | £ 2,350,000 | BUY | 8 / 10 | 0.00 KM |
| Northview Road, Budleigh Salterton, EX9 | £ 1,100,000 | BUY | 6 / 10 | 0.07 KM |
| Northview Road, Budleigh Salterton, EX9 | £ 330,000 | BUY | 6 / 10 | 0.25 KM |
| Northview Road, Budleigh Salterton, EX9 | £ 290,000 | BUY | 7 / 10 | 0.25 KM |
| Northview Road, Budleigh Salterton, EX9 | £ 395,000 | BUY | 6 / 10 | 0.26 KM |
Nearby Properties
| Address | Price | Distance |
|---|---|---|
| 11 Northview Road | £ 1,130,000 | 0.14 KM |
| 9 Northview Road | £ 1,900,000 | 0.14 KM |
| 5 Fountain Hill | £ 1,450,000 | 0.19 KM |
| 6 Fountain Hill | £ 945,000 | 0.19 KM |
| 12 Fountain Hill | £ 750,000 | 0.19 KM |