CL
7 Percy Street, Flat 1/3, Cessnock, Glasgow, G51 1NZ
By Clyde Property
£ 119,000
Reviews
3 out of 5 stars
Clyde Property says ..
This super-stylish and comprehensively upgraded one-bedroom period apartment occupies a prime position on the preferred first floor of a handsome red sandstone tenement, perfectly located to enjoy the vibrant local amenities on offer.
Property Oracle says ..
Therefore, we give this property 6 / 10. *Disclaimer: This is our option and does constitute a recommendation or financial advice. Do your own research. *
- Price
- 6
- Condition
- 8
- Location
- 7
- Land
- 5
- Bedrooms
- 1
- Bathrooms
- 1
- Sqft (est)
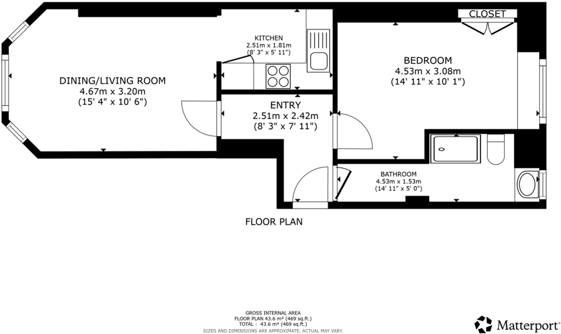
- 499.77
The heatmap indicates the level of crime in the area. The color of the heatmap indicates the crime severity and recency.
Metrics Year-on-Year
- Average area value
- 142,423.00 £Decreased by 11.64 %
- Est sale value
- 104,451.93 £Increased by 1.46 %
- Average area rental value
- 1,376.00 £/moIncreased by 33.59 %
- Est letting value
- 999.54 £/moIncreased by 100.00 %
- Est rental Yield
- 11.59 %Increased by 51.11 %
- Crime Rate
- 0.00 %
from 161,184.00 £
from 102,952.62 £
from 1,030.00 £/mo
from 499.77 £/mo
from 7.67 %
from 0.00 %
Agent Activity
Clyde Property created the listing.
Images
Nearby Streets
| Name | Average Price | Average Sqft | Distance |
|---|---|---|---|
| Lendel Place | £ 0 | 0 | 0.00 KM |
| Langshot Street | £ 0 | 0 | 0.00 KM |
| Festival Court | £ 349,405 | 0 | 0.00 KM |
| Festival Gate | £ 240,000 | 0 | 0.00 KM |
| M8 | £ 175,000 | 0 | 0.00 KM |
Nearby Transport
| Name | NLC | TLC | Distance |
|---|---|---|---|
| Dumbreck | 9622 | DUM | 1.15 KM |
| Exhibition Centre (Glasgow) | 9914 | EXG | 1.56 KM |
| Maxwell Park | 9802 | MAX | 1.63 KM |
| Crossmyloof | 9796 | CMY | 2.20 KM |
| Shawlands | 9823 | SHL | 2.48 KM |
Nearby Listings
| Address | Price | Type | Score | Distance |
|---|---|---|---|---|
| 7 Percy Street, Flat 1/3, Cessnock, Glasgow, G51 1NZ | £ 119,000 | BUY | 6 / 10 | 0.00 KM |
| Percy Street, Glasgow | £ 110,000 | BUY | 5 / 10 | 0.02 KM |
| Percy Street, Glasgow, G51 | £ 105,000 | BUY | 4 / 10 | 0.02 KM |
| 2/2, 12 Percy Street, Glasgow, Glasgow City, G51 | £ 140,000 | BUY | 5 / 10 | 0.03 KM |
| Paisley Road West, Cessnock, Glasgow | £ 130,000 | BUY | 5 / 10 | 0.04 KM |