Carter & Willow says ..
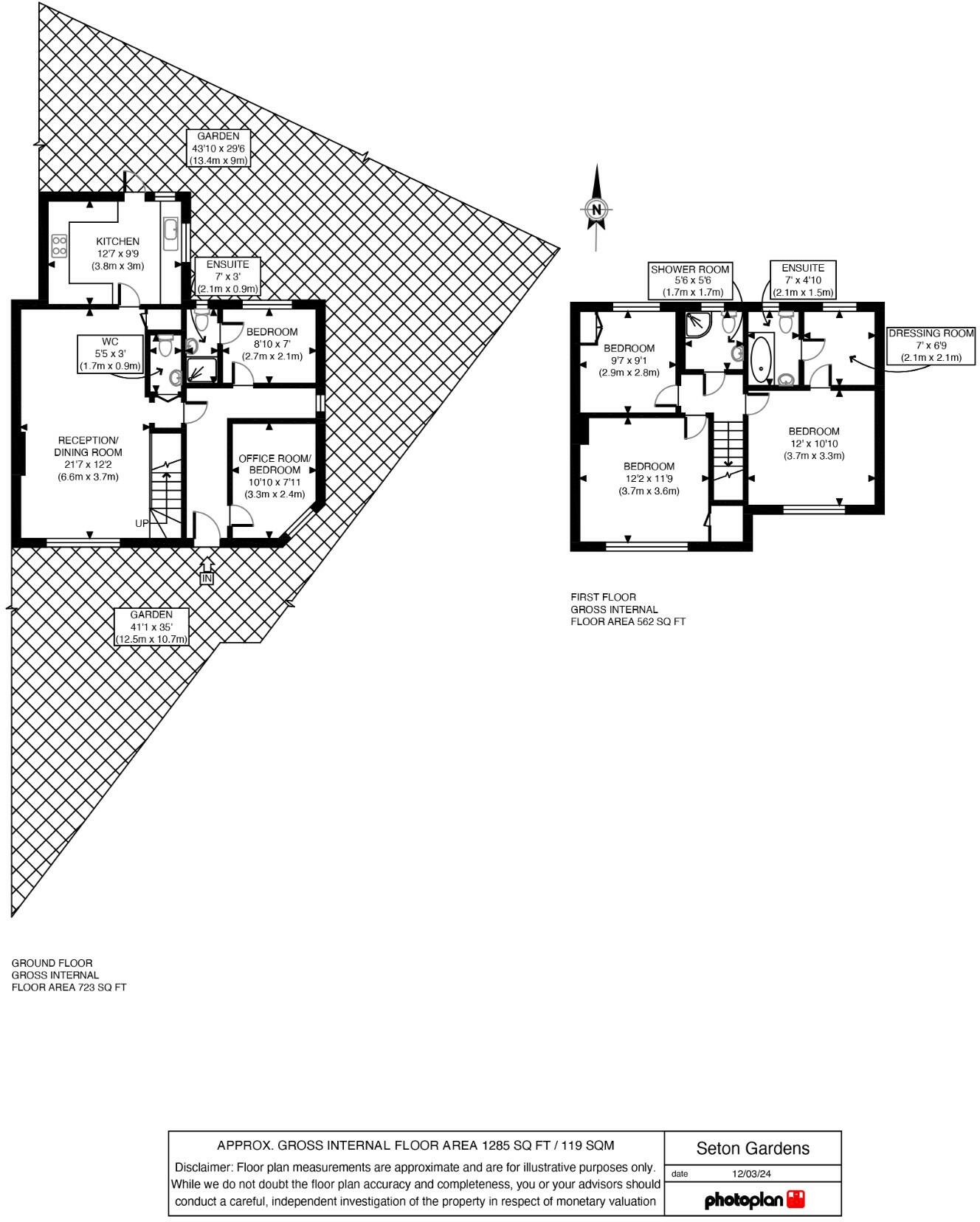
GUIDE PRICE: £425,000 - £450,000. Carter & Willow offer for sale this circa 1285 sq ft 5/3 bedroom end of terrace property with 1/3 reception rooms which has received a double-storey extension to the rear and a single-storey extension to the side.
Property Oracle says ..
The property is located in Seton Gardens, Dagenham, a residential area in the London Borough of Barking and Dagenham. The area benefits from relatively close proximity to several schools, including The James Cambell Primary School, Jo Richardson Community School, and Mayesbrook Park School, all within approximately 1km. Transport links include several TfL Rail and c2c stations within a radius of roughly 3-5km. The property itself is a 5-bedroom house with 3 bathrooms, offering a substantial amount of living space (1280.91 sqft). However, based on the provided images, the property appears to be in need of significant modernisation and cleaning. The garden, while present, also seems to require considerable attention and tidying. The list price of £425,000 is difficult to assess fully without precise square footage data for comparable properties, and the provided nearby listings lack this information. However, considering the property’s condition and the need for renovations, the price might be on the higher side compared to other similar properties in the area, even accounting for the number of bedrooms and bathrooms. Further investigation into comparable properties with sqft data would be beneficial to determine a more precise valuation.
Therefore, we give this property 5 / 10. *Disclaimer: This is our option and does constitute a recommendation or financial advice. Do your own research. *
- Price
- 5
- Condition
- 4
- Location
- 7
- Land
- 6
- Bedrooms
- 5
- Bathrooms
- 3
- Sqft (est)
- 1,280.91
The heatmap indicates the level of crime in the area. The color of the heatmap indicates the crime severity and recency.
Metrics Year-on-Year
- Average area value
- 362,000.00 £Increased by 7.30 %
- Est sale value
- 636,612.27 £Increased by 21.52 %
- Average area rental value
- 1,700.00 £/moDecreased by 7.81 %
- Est letting value
- 2,561.82 £/moUnchanged by 0.00 %
- Est rental Yield
- 5.64 %Decreased by 14.02 %
- Crime Rate
- 3.00 %Unchanged by 0.00 %
Agent Activity
Carter & Willow created the listing.
Nearby Schools
| Name | Type | Ofsted | Distance |
|---|---|---|---|
| The James Cambell Primary School | Academy Sponsor Led | Requires improvement | 0.53 KM |
| Jo Richardson Community School | Community School | Good | 0.58 KM |
| Mayesbrook Park School | Pupil Referral Unit | Good | 0.67 KM |
| Monteagle Primary School | Community School | Good | 0.83 KM |
| Goresbrook School | Free Schools | Good | 0.96 KM |
Images
Nearby Streets
| Name | Average Price | Average Sqft | Distance |
|---|---|---|---|
| Greenfield Road | £ 425,000 | 0 | 0.00 KM |
| Billings Close | £ 229,000 | 0 | 0.00 KM |
| Stamford Road | £ 0 | 0 | 0.00 KM |
| Gale Street | £ 0 | 0 | 0.00 KM |
| Studley Road | £ 407,500 | 0 | 0.00 KM |
Nearby Transport
| Name | NLC | TLC | Distance |
|---|---|---|---|
| Dagenham Dock | 7440 | DDK | 2.81 KM |
| Goodmayes | 6878 | GMY | 3.41 KM |
| Chadwell Heath | 6874 | CTH | 3.44 KM |
| Seven Kings | 6893 | SVK | 4.14 KM |
| Barking | 7492 | BKG | 4.71 KM |
Nearby Listings
| Address | Price | Type | Score | Distance |
|---|---|---|---|---|
| Seton Gardens, Dagenham | £ 360,000 | BUY | 6 / 10 | 0.00 KM |
| Seton Gardens, Dagenham | £ 425,000 | BUY | 5 / 10 | 0.00 KM |
| Woodward Road, Dagenham | £ 425,000 | BUY | 7 / 10 | 0.11 KM |
| Flamstead Road, Dagenham | £ 450,000 | BUY | 6 / 10 | 0.13 KM |
| Flamstead Road, Dagenham, RM9 | £ 425,000 | BUY | 6 / 10 | 0.13 KM |
Nearby Properties
| Address | Price | Distance |
|---|---|---|
| 8 Seton Gardens | £ 355,000 | 0.00 KM |
| 22 Seton Gardens | £ 160,000 | 0.00 KM |
| 29 Seton Gardens | £ 128,500 | 0.00 KM |
| 26 Seton Gardens | £ 178,000 | 0.00 KM |
| 9 Seton Gardens | £ 260,000 | 0.00 KM |