Winkworth says ..
An important characterful double fronted detached period property boasting a fine brick façade located in one of West Putney’s premier roads. The house retains an abundance of attractive period features including substantial fireplaces and fine fitted cabinetry. An attract...
Property Oracle says ..
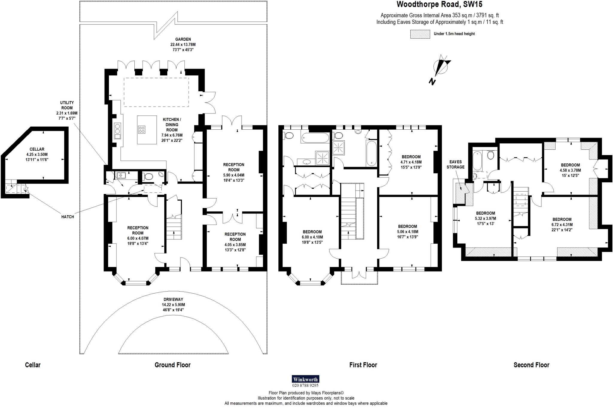
This property is a 6 bedroom, 3 bathroom house located on Woodthorpe Road in Putney, London. The property is a large detached house with a substantial garden. It appears to be in good condition and well-maintained, with traditional features and some modern updates. The location is desirable, being in a family-friendly area with good schools and transport links. The list price of £3,800,000 is high compared to the average price in the area, but may be justified by the size, condition, and location of the property. More information on the property’s square footage would be beneficial to fully assess the price per square foot.
Therefore, we give this property 8 / 10. *Disclaimer: This is our option and does constitute a recommendation or financial advice. Do your own research. *
- Price
- 7
- Condition
- 9
- Location
- 9
- Land
- 9
- Bedrooms
- 6
- Bathrooms
- 3
- Sqft (est)
- 4,326.45
- Lot (est)
- 3,791.00
The heatmap indicates the level of crime in the area. The color of the heatmap indicates the crime severity and recency.
Metrics Year-on-Year
- Average area value
- 721,658.00 £Decreased by 13.09 %
- Est sale value
- 4,490,855.10 £Increased by 82.43 %
- Average area rental value
- 2,654.00 £/moDecreased by 13.47 %
- Est letting value
- 12,979.35 £/moIncreased by 50.00 %
- Est rental Yield
- 4.41 %Decreased by 0.45 %
- Crime Rate
- 1.00 %Unchanged by 0.00 %
Agent Activity
Winkworth created the listing.
Nearby Schools
| Name | Type | Ofsted | Distance |
|---|---|---|---|
| Falcons School For Girls | Other Independent School | 0.12 KM | |
| Granard Primary School | Community School | Good | 0.59 KM |
| Granard Primary School And Children'S Centre | Children's Centre | 0.59 KM | |
| All Saints' Cofe Primary School, Putney | Voluntary Aided School | Outstanding | 0.92 KM |
| Oasis Academy Putney | Academy Sponsor Led | Good | 0.97 KM |
Images
Nearby Streets
| Name | Average Price | Average Sqft | Distance |
|---|---|---|---|
| Parkmead | £ 0 | 0 | 0.00 KM |
| Whitnell Road | £ 0 | 0 | 0.00 KM |
| Floss Street | £ 0 | 0 | 0.00 KM |
| Jordan Court | £ 0 | 0 | 0.00 KM |
| Ravenna Road | £ 0 | 0 | 0.00 KM |
Nearby Transport
| Name | NLC | TLC | Distance |
|---|---|---|---|
| Barnes | 5551 | BNS | 1.19 KM |
| Putney | 5603 | PUT | 1.83 KM |
| Barnes Bridge | 5580 | BNI | 2.47 KM |
| Mortlake | 5600 | MTL | 3.84 KM |
| Chiswick | 5583 | CHK | 4.43 KM |
Nearby Listings
| Address | Price | Type | Score | Distance |
|---|---|---|---|---|
| Woodthorpe Road, London, SW15 | £ 3,800,000 | BUY | 8 / 10 | 0.00 KM |
| Woodthorpe Road, LONDON, SW15 | £ 2,495,000 | BUY | Unknown | 0.04 KM |
| Woodthorpe Road, Putney, London, SW15 | £ 4,500,000 | BUY | 7 / 10 | 0.08 KM |
| Woodthorpe Road, Putney, London, SW15 | £ 5,250,000 | BUY | Unknown | 0.08 KM |
| Howards Lane, London, SW15 | £ 3,950,000 | BUY | 8 / 10 | 0.09 KM |
Nearby Properties
| Address | Price | Distance |
|---|---|---|
| 9 Woodthorpe Road | £ 3,230,000 | 0.02 KM |
| 70 Howards Lane | £ 4,450,000 | 0.07 KM |
| 68 Howards Lane | £ 3,700,000 | 0.07 KM |
| 22 Bramcote Road | £ 1,120,000 | 0.10 KM |
| 11a Bramcote Road | £ 176,000 | 0.10 KM |