Breakey & Co says ..
Stunning 4-bed semi-detached family home in Winstanley. Extended with dormer conversion, private drive, modern interior, and beautiful rear garden. Perfect blend of style and practicality.
Property Oracle says ..
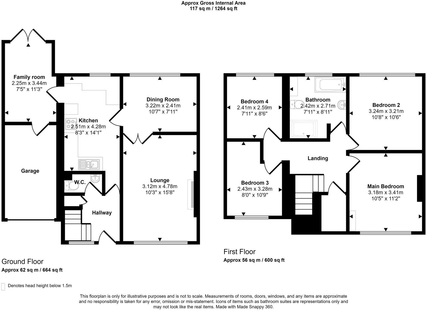
This property is a 4-bedroom semi-detached house located on Southery Avenue in Winstanley, Wigan. It boasts a sizeable plot of 1,264 sqft and a total area of 343 sqft. The property benefits from a modern kitchen and bathroom, and what appears to be recently updated exterior. There is also a good-sized garden.
The property is situated within easy reach of several highly-rated primary schools, including St Aidan’s Catholic Primary School and Winstanley Community Primary School, both of which have received ‘Outstanding’ Ofsted ratings. Several other good schools are also within a reasonable distance. Commuting is facilitated by its proximity to several train stations, including Pemberton and Wigan North Western, providing access to various transport links.
Based on the images provided, the property appears to be in excellent condition. There is no visible evidence of significant wear and tear or the need for renovation. The interior is presented well and the exterior looks modern and well-maintained. The garden is also well-kept.
Considering the average price per sqft in the area is £239, and this property is listed at £270,000, the price seems reasonable, particularly given its condition, the size of the plot, and its location near highly-rated schools and transport links. However, it is worth noting that the average house price in the area is £255,106, and this property is slightly above average. Further analysis of comparable properties would be needed to confirm this assessment.
Therefore, we give this property 8 / 10. *Disclaimer: This is our option and does constitute a recommendation or financial advice. Do your own research. *
- Price
- 8
- Condition
- 10
- Location
- 9
- Land
- 8
- Bedrooms
- 4
- Bathrooms
- 1
- Sqft (est)
- 343.00
- Lot (est)
- 1,264.00
The heatmap indicates the level of crime in the area. The color of the heatmap indicates the crime severity and recency.
Metrics Year-on-Year
- Average area value
- 337,778.00 £Increased by 31.31 %
- Est sale value
- 145,432.00 £Increased by 85.15 %
- Average area rental value
- 988.00 £/moDecreased by 23.47 %
- Est letting value
- 343.00 £/moUnchanged by 0.00 %
- Est rental Yield
- 3.51 %Decreased by 41.69 %
- Crime Rate
- 0.00 %
Agent Activity
Breakey & Co created the listing.
Nearby Schools
| Name | Type | Ofsted | Distance |
|---|---|---|---|
| St Aidan'S Catholic Primary School, Wigan | Voluntary Aided School | Outstanding | 0.36 KM |
| Highfield St Matthew'S Church Of England Primary School | Academy Converter | 0.56 KM | |
| Winstanley Community Primary School | Community School | Outstanding | 0.72 KM |
| Marus Bridge Primary School | Academy Converter | Good | 1.48 KM |
| Hope School | Community Special School | Outstanding | 1.51 KM |
Images
Nearby Streets
| Name | Average Price | Average Sqft | Distance |
|---|---|---|---|
| Cavendish Drive | £ 300,000 | 0 | 0.00 KM |
| Saltram Road | £ 0 | 0 | 0.00 KM |
| Grindlow Walk | £ 0 | 0 | 0.00 KM |
| Quantock Close | £ 0 | 0 | 0.00 KM |
| Webb Road | £ 348,500 | 0 | 0.00 KM |
Nearby Transport
| Name | NLC | TLC | Distance |
|---|---|---|---|
| Pemberton | 2403 | PEM | 0.57 KM |
| Bryn | 2222 | BYN | 3.79 KM |
| Garswood | 2335 | GSW | 4.10 KM |
| Orrell | 2259 | ORR | 4.32 KM |
| Wigan North Western | 2363 | WGN | 4.55 KM |
Nearby Listings
| Address | Price | Type | Score | Distance |
|---|---|---|---|---|
| Southery Avenue, Wigan, WN3 | £ 270,000 | BUY | 8 / 10 | 0.00 KM |
| Southery Avenue, Wigan, WN3 | £ 240,000 | BUY | 8 / 10 | 0.07 KM |
| Northwold Close, Wigan, WN3 | £ 240,000 | BUY | 8 / 10 | 0.19 KM |
| Calton Close, Wigan, Greater Manchester, WN3 | £ 240,000 | BUY | 6 / 10 | 0.21 KM |
| Crossford Close, Wigan, Greater Manchester, WN3 | £ 320,000 | BUY | 8 / 10 | 0.25 KM |
Nearby Properties
| Address | Price | Distance |
|---|---|---|
| 16 Lidgate Close | £ 140,500 | 0.05 KM |
| 8 Lidgate Close | £ 89,995 | 0.05 KM |
| 14 Lidgate Close | £ 135,000 | 0.05 KM |
| 15 Southery Avenue | £ 145,000 | 0.06 KM |
| 14 Southery Avenue | £ 133,500 | 0.06 KM |