Eastern Road, Willaston, Nantwich
By Lewis King
£ 310,000
Reviews
3 out of 5 stars
Lewis King says ..
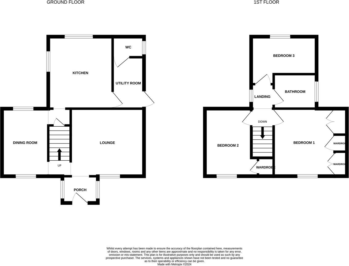
Beautifully presented and found in the charming village of Willaston, this quaint detached cottage offers spacious accommodation and has been well cared for by the current owner to ensure any new buyers can benefit from peace of mind moving into their new home! Enjoying a prominent posit...
Property Oracle says ..
This property is located on Eastern Road in Willaston, Nantwich. The area benefits from nearby primary and secondary schools, all rated good by Ofsted. Transportation links are also convenient, with Nantwich and Crewe train stations within reasonable proximity. The property itself appears to be well-maintained and recently updated, with a modern kitchen and bathroom. There is a small, manageable garden, ideal for those who prefer low-maintenance outdoor space. While the square footage is not provided, the asking price of £310,000 seems reasonable when compared to other similar properties in the area. The average price for properties in Willaston is £368,221, and while the average price per square foot is £234, more information on the property’s size is needed for a complete price comparison. However, based on the images provided, the property seems to be in good condition and well-presented, making it an attractive option for buyers.
Therefore, we give this property 7 / 10. *Disclaimer: This is our option and does constitute a recommendation or financial advice. Do your own research. *
- Price
- 7
- Condition
- 9
- Location
- 8
- Land
- 4
- Bedrooms
- 3
- Bathrooms
- 1
The heatmap indicates the level of crime in the area. The color of the heatmap indicates the crime severity and recency.
Metrics Year-on-Year
- Average area value
- 373,571.00 £Increased by 14.06 %
- Average area rental value
- 1,300.00 £/moDecreased by 16.13 %
- Est rental Yield
- 4.18 %Decreased by 26.41 %
- Crime Rate
- 33.00 %Unchanged by 0.00 %
Agent Activity
Lewis King created the listing.
Nearby Schools
| Name | Type | Ofsted | Distance |
|---|---|---|---|
| Willaston Primary Academy | Academy Converter | Good | 0.90 KM |
| Wistaston Church Lane Academy | Academy Converter | Good | 1.60 KM |
| Shavington Academy | Academy Converter | Good | 2.32 KM |
| The Berkeley Academy | Academy Converter | Good | 2.71 KM |
| St Mary'S Catholic Primary School, Crewe | Voluntary Aided School | Good | 2.96 KM |
Images
Nearby Streets
| Name | Average Price | Average Sqft | Distance |
|---|---|---|---|
| Meadow Grange | £ 0 | 0 | 0.00 KM |
| Balmoral Place | £ 0 | 0 | 0.00 KM |
| Coppice Close | £ 0 | 0 | 0.00 KM |
| Arden Close | £ 631,667 | 0 | 0.00 KM |
| The Paddock | £ 575,000 | 0 | 0.00 KM |
Nearby Transport
| Name | NLC | TLC | Distance |
|---|---|---|---|
| Nantwich | 1247 | NAN | 4.45 KM |
| Crewe | 1243 | CRE | 5.67 KM |
Nearby Listings
| Address | Price | Type | Score | Distance |
|---|---|---|---|---|
| Eastern Road, Willaston, Nantwich | £ 310,000 | BUY | 7 / 10 | 0.00 KM |
| Wybunbury Road, Willaston, Nantwich, CW5 7JF | £ 180,000 | BUY | 7 / 10 | 0.10 KM |
| Wybunbury Road, Willaston, Nantwich, Cheshire, CW5 | £ 185,000 | BUY | 7 / 10 | 0.11 KM |
| Eastern Road, Willaston, Nantwich | £ 295,000 | BUY | 7 / 10 | 0.11 KM |
| Eastern Road, Willaston, Nantwich | £ 275,000 | BUY | 5 / 10 | 0.13 KM |
Nearby Properties
| Address | Price | Distance |
|---|---|---|
| Station House | £ 227,000 | 0.03 KM |
| 4 Eastern Road | £ 122,000 | 0.05 KM |
| 2 Eastern Road | £ 68,500 | 0.05 KM |
| 6 Eastern Road | £ 142,000 | 0.05 KM |
| 2b Eastern Road | £ 114,500 | 0.05 KM |