ARQ HOMES says ..
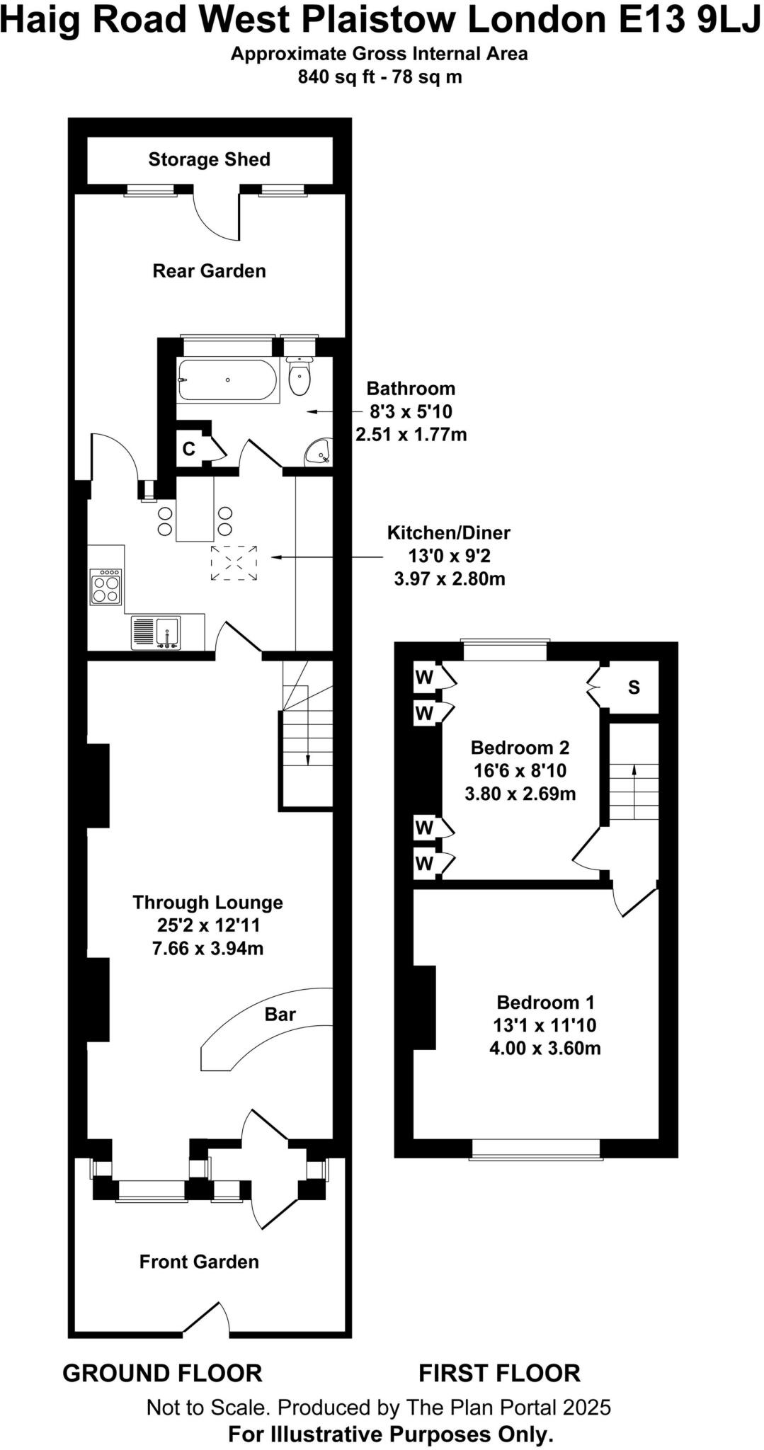
Charming Two-Bedroom Terraced House on Haig Road West, Plaistow - £390,000 Nestled on a quiet residential street in the heart of Plaistow, this charming two-bedroom mid-terraced house offers a fantastic opportunity for first-time buyers, small families, or investors. Priced at a guide of...
Property Oracle says ..
Therefore, we give this property 5 / 10. *Disclaimer: This is our option and does constitute a recommendation or financial advice. Do your own research. *
- Price
- 6
- Condition
- 4
- Location
- 7
- Land
- 6
- Bedrooms
- 2
- Bathrooms
- 1
- Sqft (est)
- 757.46
The heatmap indicates the level of crime in the area. The color of the heatmap indicates the crime severity and recency.
Metrics Year-on-Year
- Average area value
- 341,250.00 £Decreased by 16.70 %
- Est sale value
- 346,916.68 £Increased by 3.39 %
- Average area rental value
- 2,488.00 £/moIncreased by 15.03 %
- Est letting value
- 2,272.38 £/moIncreased by 50.00 %
- Est rental Yield
- 8.75 %Increased by 38.01 %
- Crime Rate
- 7.00 %Unchanged by 0.00 %
from 409,662.00 £
from 335,554.78 £
from 2,163.00 £/mo
from 1,514.92 £/mo
from 6.34 %
from 7.00 %
Agent Activity
ARQ HOMES created the listing.
Nearby Schools
| Name | Type | Ofsted | Distance |
|---|---|---|---|
| The Service For Deaf And Partially Hearing Children | Miscellaneous | 0.20 KM | |
| Tunmarsh School | Pupil Referral Unit | Good | 0.20 KM |
| Southern Road Primary School | Community School | Good | 0.58 KM |
| Newham Sixth Form College | Further Education | Good | 0.62 KM |
| New City Primary School | Academy Converter | 0.63 KM |
Images
Nearby Streets
| Name | Average Price | Average Sqft | Distance |
|---|---|---|---|
| Queen Matilda Mews | £ 365,000 | 0 | 0.00 KM |
| Hollybush Street | £ 0 | 0 | 0.00 KM |
| Nile Road | £ 525,000 | 0 | 0.00 KM |
| Surrey Street | £ 340,000 | 0 | 0.00 KM |
| Old Street | £ 510,000 | 0 | 0.00 KM |
Nearby Transport
| Name | NLC | TLC | Distance |
|---|---|---|---|
| Forest Gate | 6876 | FOG | 2.69 KM |
| Woodgrange Park | 7467 | WGR | 2.79 KM |
| Wanstead Park | 7408 | WNP | 2.86 KM |
| West Ham | 7474 | WEH | 3.05 KM |
| Manor Park | 6883 | MNP | 3.21 KM |
Nearby Listings
| Address | Price | Type | Score | Distance |
|---|---|---|---|---|
| Haig Road West, Plaistow, E13 | £ 390,000 | BUY | 5 / 10 | 0.00 KM |
| Haig Road West, London, E13 | £ 449,950 | BUY | 5 / 10 | 0.03 KM |
| Jedburgh Road, Plaistow, E13 9LG | £ 450,000 | BUY | 6 / 10 | 0.04 KM |
| Jedburgh Road, Plaistow, London, E13 | £ 475,000 | BUY | Unknown | 0.05 KM |
| Jedburgh Road, London, E13 | £ 449,950 | BUY | 6 / 10 | 0.05 KM |
Nearby Properties
| Address | Price | Distance |
|---|---|---|
| 55 Haig Road West | £ 330,000 | 0.01 KM |
| 7 Haig Road West | £ 380,000 | 0.01 KM |
| 67 Haig Road West | £ 223,000 | 0.01 KM |
| 47 Haig Road West | £ 250,000 | 0.01 KM |
| 45 Haig Road West | £ 333,000 | 0.01 KM |