OS
Coventry Road, Market Harborough
By Oscar James
£ 400,000
Reviews
3 out of 5 stars
Oscar James says ..
Have you ever wanted to live on one of the best known, and most prestigious roads in Market Harborough..? We here at Oscar James are excited to give you the opportunity, as we proudly bring to market this wonderful three bedroom semi detached property, situated just a short walk from the town cen...
Property Oracle says ..
Therefore, we give this property 6 / 10. *Disclaimer: This is our option and does constitute a recommendation or financial advice. Do your own research. *
- Price
- 5
- Condition
- 6
- Location
- 8
- Land
- 6
- Bedrooms
- 3
- Bathrooms
- 1
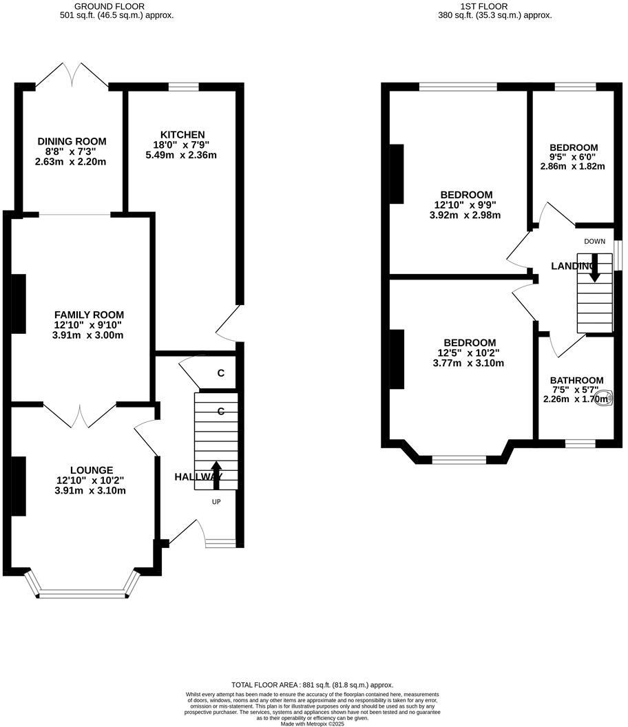
- Sqft (est)
- 881.00
The heatmap indicates the level of crime in the area. The color of the heatmap indicates the crime severity and recency.
Metrics Year-on-Year
- Average area value
- 593,306.00 £Increased by 37.78 %
- Est sale value
- 330,375.00 £Increased by 28.87 %
- Average area rental value
- 1,150.00 £/moDecreased by 17.56 %
- Est letting value
- 0.00 £/mo
- Est rental Yield
- 2.33 %Decreased by 40.10 %
- Crime Rate
- 1.00 %Unchanged by 0.00 %
from 430,626.00 £
from 256,371.00 £
from 1,395.00 £/mo
from 0.00 £/mo
from 3.89 %
from 1.00 %
Agent Activity
Oscar James created the listing.
Nearby Schools
| Name | Type | Ofsted | Distance |
|---|---|---|---|
| Market Harborough Church Of England Academy | Academy Converter | Good | 0.89 KM |
| St Joseph'S Catholic Voluntary Academy | Academy Converter | Good | 0.91 KM |
| Market Harborough Sure Start Children'S Centre | Children's Centre | 1.04 KM | |
| Welland Park Academy | Academy Converter | Good | 1.18 KM |
| Brooke House College | Other Independent School | 1.26 KM |
Images
Nearby Streets
| Name | Average Price | Average Sqft | Distance |
|---|---|---|---|
| Fleetwood Close | £ 0 | 0 | 0.00 KM |
| Forester Close | £ 0 | 0 | 0.00 KM |
| Hill Top Close | £ 385,000 | 0 | 0.00 KM |
| Harvest Road | £ 470,980 | 0 | 0.00 KM |
| Montrose Close | £ 320,000 | 0 | 0.00 KM |
Nearby Transport
| Name | NLC | TLC | Distance |
|---|---|---|---|
| Market Harborough | 1909 | MHR | 2.78 KM |
Nearby Listings
| Address | Price | Type | Score | Distance |
|---|---|---|---|---|
| Coventry Road, Market Harborough | £ 400,000 | BUY | 6 / 10 | 0.00 KM |
| Coventry Road, Market Harborough | £ 350,000 | BUY | 6 / 10 | 0.00 KM |
| Coventry Road, Market Harborough | £ 450,000 | BUY | 7 / 10 | 0.04 KM |
| Gardiner Street, Market Harborough | £ 725,000 | BUY | 5 / 10 | 0.10 KM |
| The Firs, Market Harborough | £ 565,000 | BUY | 7 / 10 | 0.18 KM |
Nearby Properties
| Address | Price | Distance |
|---|---|---|
| 8 Elm Drive | £ 335,000 | 0.15 KM |
| 14 Elm Drive | £ 307,000 | 0.15 KM |
| 2 Elm Drive | £ 192,000 | 0.15 KM |
| 17 Elm Drive | £ 231,000 | 0.15 KM |
| 16 Elm Drive | £ 287,000 | 0.15 KM |