Barn adjacent to Hill Crest, Station Road, Trusham, Newton Abbot
By Woods Estate Agents & Auctioneers
£ 200,000
Reviews
2 out of 5 stars
Woods Estate Agents & Auctioneers says ..
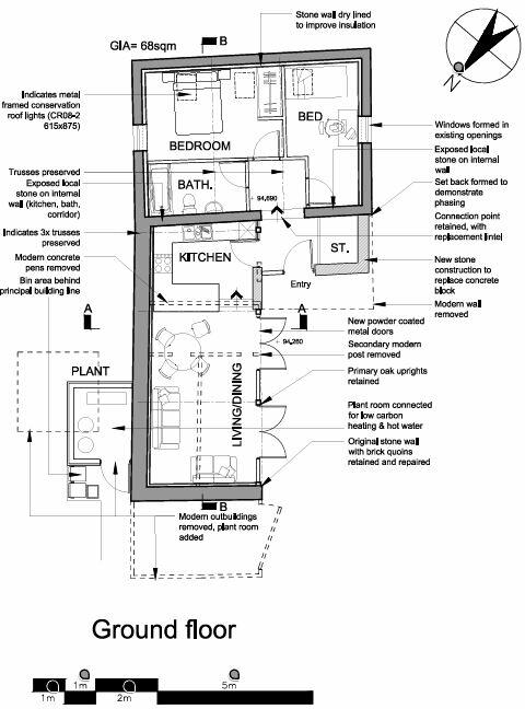
For Sale by Private Treaty Property & Land at Hill Crest, Station Road, Trusham, offered as a whole or in individual lots. Lot 2— Detached barns (with PP to convert) set in approximately 0.26 acres of orchard and garden. Current planning permission for a vaulted ceiling 2 bedroom character pr...
Property Oracle says ..
This barn conversion opportunity is located in Trusham, Devon, within the Teign Valley. The property is listed at £200,000 and has a plot size of 0.26 acres according to the provided map. While the barn itself appears to be in need of significant renovation, the photos show that it has some land. The location is rural, with nearby schools a few kilometers away. The surrounding area has properties listed at significantly higher prices, suggesting that this property might be priced competitively if the renovation is factored in. However, without knowing the condition of the structure and the cost of renovation, it is difficult to definitively assess the value for money. More information is needed to fully assess the property’s potential.
Therefore, we give this property 5 / 10. *Disclaimer: This is our option and does constitute a recommendation or financial advice. Do your own research. *
- Price
- 6
- Condition
- 3
- Location
- 5
- Land
- 6
- Bedrooms
- 2
- Bathrooms
- 1
- Sqft (est)
- 409.03
The heatmap indicates the level of crime in the area. The color of the heatmap indicates the crime severity and recency.
Metrics Year-on-Year
- Average area value
- 568,986.00 £Increased by 89.51 %
- Est sale value
- 124,754.15 £Decreased by 13.11 %
- Average area rental value
- 1,782.00 £/moIncreased by 51.66 %
- Est letting value
- 0.00 £/moDecreased by 100.00 %
- Est rental Yield
- 3.76 %Decreased by 20.00 %
- Crime Rate
- 27.00 %Unchanged by 0.00 %
Agent Activity
Woods Estate Agents & Auctioneers marked this listing as sold.
Woods Estate Agents & Auctioneers created the listing.
Nearby Schools
| Name | Type | Ofsted | Distance |
|---|---|---|---|
| Teign Valley Children'S Centre | Children's Centre | 3.37 KM | |
| Chudleigh Church Of England Community Primary School | Voluntary Controlled School | Good | 3.53 KM |
| Hennock Community Primary School | Academy Converter | Good | 3.81 KM |
| Doddiscombsleigh Primary School | Foundation School | Good | 4.58 KM |
| Christow Primary School | Academy Converter | Good | 4.63 KM |
Images
Nearby Streets
| Name | Average Price | Average Sqft | Distance |
|---|---|---|---|
| Almshouses | £ 0 | 0 | 0.00 KM |
| Whiteborough Lane | £ 1,000,000 | 0 | 0.00 KM |
Nearby Listings
| Address | Price | Type | Score | Distance |
|---|---|---|---|---|
| Barn adjacent to Hill Crest, Station Road, Trusham, Newton Abbot | £ 200,000 | BUY | 5 / 10 | 0.00 KM |
| Trusham, Devon | £ 525,000 | BUY | 7 / 10 | 0.07 KM |
| Trusham, Teign Valley | £ 995,000 | BUY | 7 / 10 | 0.32 KM |
| Trusham, Newton Abbot, TQ13 | £ 850,000 | BUY | 7 / 10 | 1.52 KM |
| Trusham, Chudleigh, TQ13 0LZ | £ 700,000 | BUY | 7 / 10 | 1.55 KM |
Nearby Properties
| Address | Price | Distance |
|---|---|---|
| Higher Broomfield Trusham | £ 487,000 | 0.07 KM |
| Lower Broomfield | £ 575,000 | 0.07 KM |
| Cobwebs | £ 370,000 | 0.08 KM |
| 4 Hillside Cottages | £ 405,000 | 0.14 KM |
| 1 Hillside Cottages | £ 315,000 | 0.17 KM |