Argie Gardens, Leeds, West Yorkshire
By Auction House
£ 120,000
Reviews
2 out of 5 stars
Auction House says ..
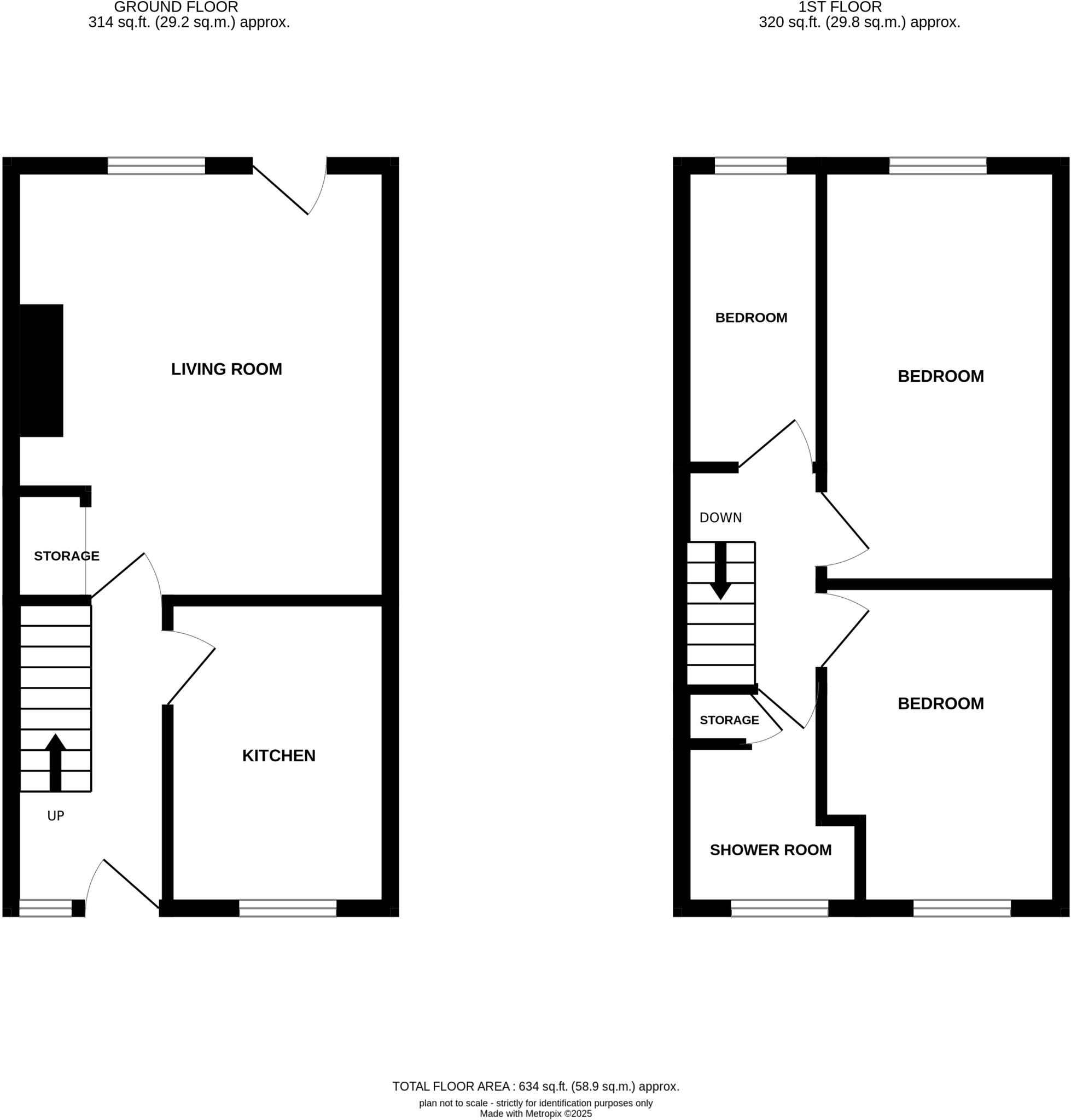
This three bedroom through terrace is sure to appeal to any investor looking for their next project or buy to let. As you can see from the photographs, it would now benefit from some refurbishment but is sure to make an excellent first home or rental property once the required works have been com...
Property Oracle says ..
This is a three-bedroom terraced property located in Kirkstall, Leeds. The property requires extensive renovation throughout, as evidenced by the poor condition of the interior and exterior. The property benefits from a garden, although it is currently overgrown. The location is reasonably good, with access to local amenities and transportation links. The list price of £120,000 is significantly below the average for the area, reflecting the property’s condition and the need for substantial investment to bring it up to modern standards. This property presents a significant opportunity for renovation and value enhancement.
Therefore, we give this property 5 / 10. *Disclaimer: This is our option and does constitute a recommendation or financial advice. Do your own research. *
- Price
- 8
- Condition
- 2
- Location
- 6
- Land
- 5
- Bedrooms
- 3
- Bathrooms
- 1
- Sqft (est)
- 790.98
The heatmap indicates the level of crime in the area. The color of the heatmap indicates the crime severity and recency.
Metrics Year-on-Year
- Average area value
- 275,979.00 £Increased by 12.55 %
- Est sale value
- 251,531.64 £Increased by 14.80 %
- Average area rental value
- 1,133.00 £/moIncreased by 12.51 %
- Est letting value
- 790.98 £/moUnchanged by 0.00 %
- Est rental Yield
- 4.93 %Unchanged by 0.00 %
- Crime Rate
- 8.00 %Unchanged by 0.00 %
Agent Activity
Auction House created the listing.
Nearby Schools
| Name | Type | Ofsted | Distance |
|---|---|---|---|
| Kirkstall Valley Primary School | Community School | Requires improvement | 0.28 KM |
| Burley St Matthias Church Of England Voluntary Controlled Primary School | Voluntary Controlled School | Good | 0.43 KM |
| Burley Park Children'S Centre | Children's Centre | 0.72 KM | |
| Armley Park Primary School | Academy Sponsor Led | 1.10 KM | |
| Beecroft Primary School | Community School | Outstanding | 1.21 KM |
Images
Nearby Streets
| Name | Average Price | Average Sqft | Distance |
|---|---|---|---|
| Redcote Lane | £ 0 | 0 | 0.00 KM |
| Burley Wood Court | £ 130,000 | 0 | 0.00 KM |
| Nunington Street | £ 135,000 | 0 | 0.00 KM |
| Back Rochester Terrace | £ 0 | 0 | 0.00 KM |
| Alexandra Park | £ 225,745 | 0 | 0.00 KM |
Nearby Transport
| Name | NLC | TLC | Distance |
|---|---|---|---|
| Burley Park | 8500 | BUY | 0.82 KM |
| Headingley | 8498 | HDY | 1.39 KM |
| Leeds | 8487 | LDS | 4.35 KM |
| Kirkstall Forge | 6544 | KLF | 4.45 KM |
| Cottingley | 8505 | COT | 4.67 KM |
Nearby Listings
| Address | Price | Type | Score | Distance |
|---|---|---|---|---|
| Argie Gardens, Leeds, West Yorkshire | £ 120,000 | BUY | 5 / 10 | 0.00 KM |
| Argie Terrace, Leeds, West Yorkshire | £ 230,000 | BUY | 6 / 10 | 0.06 KM |
| Argie Terrace, Leeds, West Yorkshire | £ 260,000 | BUY | 5 / 10 | 0.06 KM |
| Bankfield Terrace, Burley | £ 210,000 | BUY | 7 / 10 | 0.09 KM |
| Bankfield Gardens, Burley, Leeds | £ 165,000 | BUY | 6 / 10 | 0.10 KM |
Nearby Properties
| Address | Price | Distance |
|---|---|---|
| 7 Argie Gardens | £ 155,000 | 0.01 KM |
| 11 Argie Gardens | £ 110,000 | 0.01 KM |
| 5 Argie Gardens | £ 41,000 | 0.01 KM |
| 1a Argie Gardens | £ 150,000 | 0.01 KM |
| 9 Argie Gardens | £ 125,000 | 0.01 KM |