Haseley Close, Matchborough East, Redditch, B98 0BW
By Homes by Victoria
£ 220,000
Reviews
3 out of 5 stars
Homes by Victoria says ..
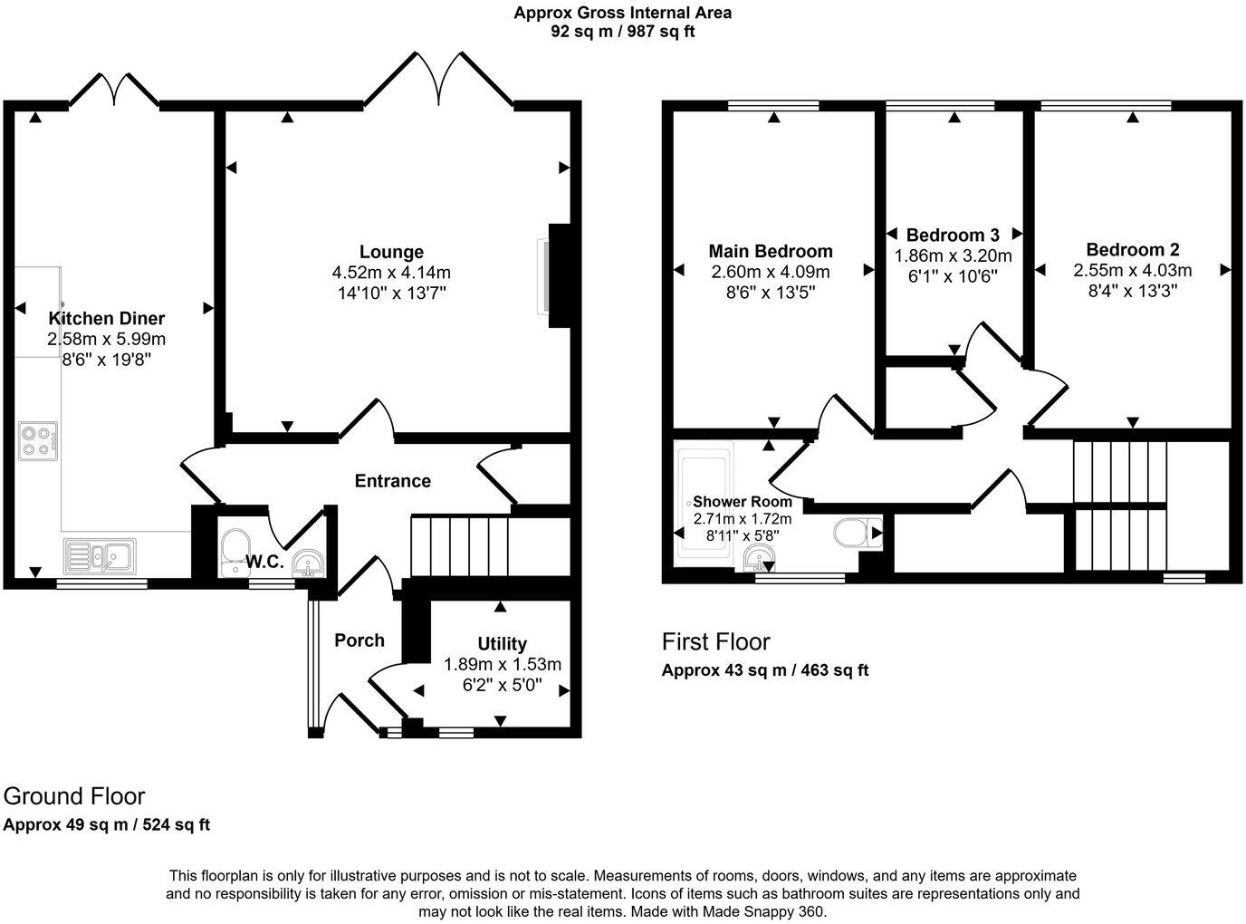
**A beautifully presented and thoughtfully upgraded three-bedroom mid-terrace home, perfectly positioned in the popular area of Matchborough East, Redditch** Warm, welcoming, and exceptionally well maintained, this charming property is ideal for first-time buyers or those...
Property Oracle says ..
This is a three-bedroom terraced house in Matchborough East, Redditch. The property benefits from a modern interior, including a recently updated kitchen and bathrooms. It has a garden with a patio, decking, and artificial grass, along with a shed for storage. The property is located within walking distance of Matchborough First School Academy and a short distance from Arrow Vale Academy (Ofsted: Outstanding). Redditch train station is 5.88 KM away. The list price is slightly above the average for the area, but the condition of the property justifies the price.
Therefore, we give this property 7 / 10. *Disclaimer: This is our option and does constitute a recommendation or financial advice. Do your own research. *
- Price
- 7
- Condition
- 8
- Location
- 7
- Land
- 6
- Bedrooms
- 3
- Bathrooms
- 2
The heatmap indicates the level of crime in the area. The color of the heatmap indicates the crime severity and recency.
Metrics Year-on-Year
- Average area value
- 176,863.00 £Decreased by 32.29 %
- Average area rental value
- 1,300.00 £/moIncreased by 57.00 %
- Est rental Yield
- 8.82 %Increased by 132.11 %
- Crime Rate
- 19.00 %Unchanged by 0.00 %
Agent Activity
Homes by Victoria created the listing.
Nearby Schools
| Name | Type | Ofsted | Distance |
|---|---|---|---|
| Matchborough First School Academy | Academy Converter | Requires improvement | 0.22 KM |
| Maple Trees At Matchborough | Children's Centre Linked Site | 0.22 KM | |
| Kingfisher School | Academy Special Sponsor Led | Good | 0.54 KM |
| Arrow Vale Academy | Academy Sponsor Led | Outstanding | 0.68 KM |
| Ipsley Ce Rsa Academy | Academy Sponsor Led | Good | 1.03 KM |
Images
Nearby Streets
| Name | Average Price | Average Sqft | Distance |
|---|---|---|---|
| Hatfield Close | £ 0 | 0 | 0.00 KM |
| St Georges Court | £ 0 | 0 | 0.00 KM |
| Lowlands Lane | £ 0 | 0 | 0.00 KM |
| Warwick Highway | £ 185,000 | 0 | 0.00 KM |
| Glebe Close | £ 330,000 | 0 | 0.00 KM |
Nearby Transport
| Name | NLC | TLC | Distance |
|---|---|---|---|
| Redditch | 1208 | RDC | 5.88 KM |
| Wood End | 4536 | WDE | 7.97 KM |
| Danzey | 4519 | DZY | 8.88 KM |
| Earlswood (West Midlands) | 4520 | EWD | 9.06 KM |
| The Lakes (Warks) | 4538 | TLK | 9.26 KM |
Nearby Listings
| Address | Price | Type | Score | Distance |
|---|---|---|---|---|
| Haseley Close, Matchborough East, Redditch, B98 0BW | £ 220,000 | BUY | 7 / 10 | 0.00 KM |
| Haseley Close, Redditch, B98 | £ 200,000 | BUY | 6 / 10 | 0.00 KM |
| Haseley Close, Redditch, Worcestershire, B98 | £ 100,000 | BUY | 4 / 10 | 0.08 KM |
| Jackfield Close, Redditch, B98 0BF | £ 425,000 | BUY | 7 / 10 | 0.10 KM |
| Jackfield Close, Redditch, Worcestershire, B98 | £ 375,000 | BUY | 7 / 10 | 0.11 KM |
Nearby Properties
| Address | Price | Distance |
|---|---|---|
| 46 Haseley Close | £ 172,000 | 0.00 KM |
| 50 Haseley Close | £ 125,000 | 0.00 KM |
| 58 Haseley Close | £ 125,000 | 0.00 KM |
| 56 Haseley Close | £ 152,000 | 0.00 KM |
| 48 Haseley Close | £ 153,000 | 0.00 KM |