Elm Tree Court, Leicester
BA

Elm Tree Court, Leicester

By Barkers

£ 545,000

Reviews

3 out of 5 stars

Barkers says ..

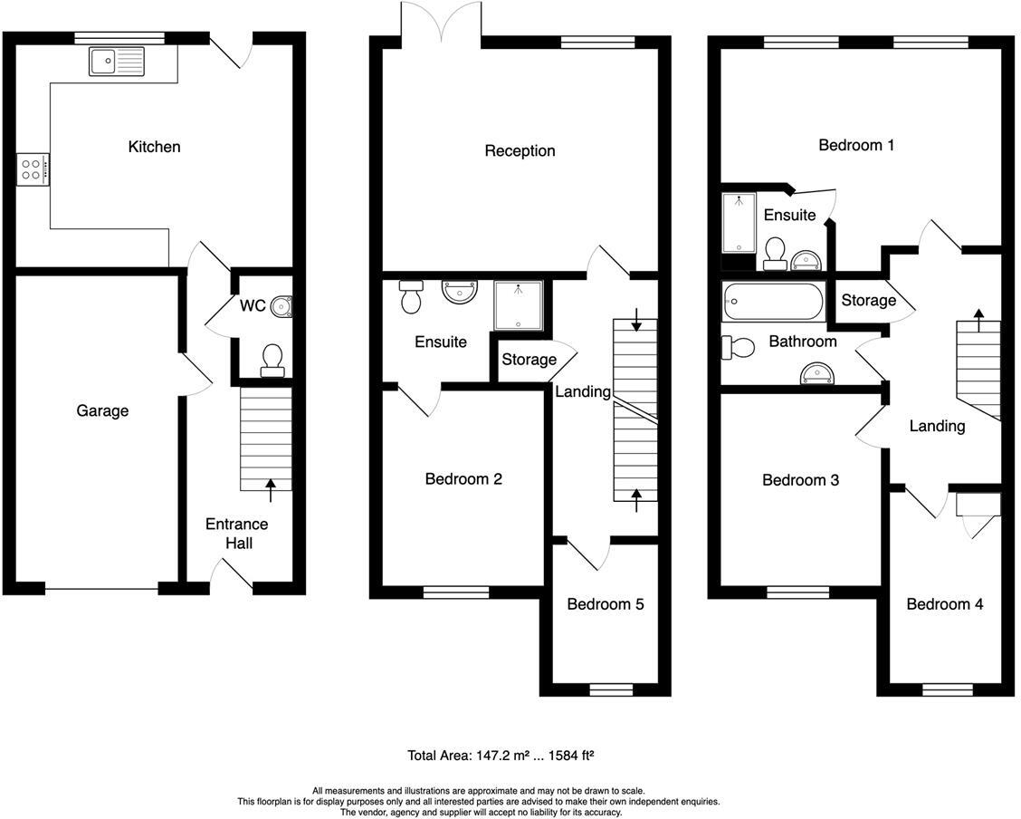
A FIVE BEDROOM modern TOWNHOUSE arranged over three floors set in this desirable GATED DEVELOPMENT. The property briefly comprises of entrance hallway, downstairs cloakroom, INTEGRAL GARAGE and DINING/KITCHEN on the ground floor, to the first floor there is the lounge and two bedrooms o...

Property Oracle says ..

This is a four-bedroom terraced house in Knighton, Leicester. The property benefits from a modern interior, a garden, and off-street parking. The location is convenient for families, with schools and transportation links nearby. The asking price appears to be in line with the local market. Overall, this property presents a good opportunity for prospective buyers.

Therefore, we give this property 7 / 10. *Disclaimer: This is our option and does constitute a recommendation or financial advice. Do your own research. *

Price
7
Condition
8
Location
7
Land
6
Bedrooms
4
Bathrooms
3
Sqft (est)
1,584.45

The heatmap indicates the level of crime in the area. The color of the heatmap indicates the crime severity and recency.

Metrics Year-on-Year

Average area value
404,688.00 £
Increased by 2.85 %
from 393,475.00 £
Est sale value
584,662.05 £
Increased by 17.52 %
from 497,517.30 £
Average area rental value
788.00 £/mo
Decreased by 23.79 %
from 1,034.00 £/mo
Est letting value
0.00 £/mo
from 0.00 £/mo
Est rental Yield
2.34 %
Decreased by 25.71 %
from 3.15 %
Crime Rate
13.00 %
Unchanged by 0.00 %
from 13.00 %

Agent Activity

  • Barkers created the listing.

Nearby Schools

NameTypeOfstedDistance
St Thomas More Catholic Voluntary AcademyAcademy Converter0.52 KM
Leicester Partnership SchoolPupil Referral UnitGood0.58 KM
Leicester Islamic AcademyOther Independent SchoolGood0.83 KM
Leicester Preparatory SchoolOther Independent School0.96 KM
Overdale Junior SchoolAcademy Converter0.97 KM

Images

OUTSIDE OTHER ASPECT LOUNGE DINING KITCHEN ENTRANCE HALLWAY Image 15.jpg DOWNSTAIRS CLOAKROOM Image 05.jpg BEDROOM TWO ENSUITE SHOWER ROOM BEDROOM FIVE SECOND FLOOR LANDING BEDROOM ONE EN SUITE SHOWER ROOM BEDROOM THREE BEDROOM FOUR BATHROOM GENERAL REMARKS FREE VALUATION Image 21.jpg

Nearby Streets

NameAverage PriceAverage SqftDistance
Stoughton Avenue £ 000.00 KM
The Orchard £ 000.00 KM
Knighton Grange Road £ 129,95000.00 KM
Avenue Gardens £ 000.00 KM
Aber Walk £ 475,00000.00 KM

Nearby Transport

NameNLCTLCDistance
Leicester1947LEI3.16 KM
South Wigston1949SWS4.34 KM
Syston1900SYS9.74 KM

Nearby Listings

AddressPriceTypeScoreDistance
Elm Tree Court, Leicester £ 545,000BUY7 / 100.00 KM
Elm Tree Court, Stoneygate £ 585,000BUY7 / 100.00 KM
Elm Tree Court, Stoneygate £ 550,000BUY7 / 100.00 KM
Elm Tree Court, Stoneygate, Leicester, LE2 £ 525,000BUY7 / 100.00 KM
Elms Road, Leicester, LE2 £ 165,000BUY7 / 100.04 KM

Nearby Properties

AddressPriceDistance
8 Elm Tree Court £ 303,4750.00 KM
7 Elm Tree Court £ 233,0000.00 KM
5 Elm Tree Court £ 295,0000.02 KM
9 Elm Tree Gardens £ 350,0000.07 KM
2 Elm Tree Gardens £ 305,0000.07 KM