Knight & Knoxley says ..
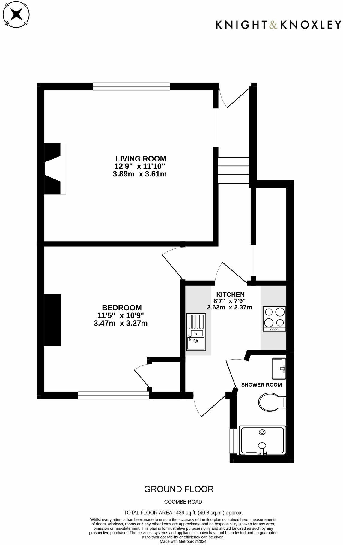
KNIGHT & KNOXLEY are delighted to bring this beautifully presented, one-bedroom garden flat to the market. The garden has a south-westerly aspect, perfect for sunny days and long summer evenings.
Property Oracle says ..
This one-bedroom garden flat on Coombe Road, Brighton, presents a potentially attractive option for first-time buyers or investors. The property’s photos reveal a modern, well-maintained interior with a stylish kitchen and bathroom. The inclusion of a garden is a significant advantage, offering outdoor space. The location is convenient, with a nearby primary school, the University of Brighton, and Moulsecoomb train station. However, it’s crucial to consider that Coombe Road may not be considered one of Brighton’s most desirable residential areas, impacting overall desirability. The absence of plot size data in the listing and a dearth of comparable properties with sqft information hinders a precise evaluation of the price per square foot and overall value. While the price appears reasonable considering Brighton’s market, a thorough local market research on comparable properties would be needed to definitively assess its value. Further investigation into the property’s energy efficiency rating, potential maintenance costs, and the local council tax band are essential before making a purchasing decision.
Therefore, we give this property 6 / 10. *Disclaimer: This is our option and does constitute a recommendation or financial advice. Do your own research. *
- Price
- 6
- Condition
- 7
- Location
- 7
- Land
- 4
- Bedrooms
- 1
- Bathrooms
- 1
- Sqft (est)
- 439.17
The heatmap indicates the level of crime in the area. The color of the heatmap indicates the crime severity and recency.
Metrics Year-on-Year
- Average area value
- 595,400.00 £Increased by 55.56 %
- Est sale value
- 332,012.52 £Increased by 77.88 %
- Average area rental value
- 1,973.00 £/moIncreased by 0.41 %
- Est letting value
- 878.34 £/moUnchanged by 0.00 %
- Est rental Yield
- 3.98 %Decreased by 35.39 %
- Crime Rate
- 3.00 %Unchanged by 0.00 %
Agent Activity
Knight & Knoxley marked this listing as sold.
Knight & Knoxley created the listing.
Nearby Schools
| Name | Type | Ofsted | Distance |
|---|---|---|---|
| Coombe Road Primary School | Community School | Good | 0.19 KM |
| University Of Brighton | Higher Education Institutions | Good | 0.55 KM |
| City View Children'S Centre | Children's Centre Linked Site | 0.88 KM | |
| St Martin'S Cofe Primary School | Voluntary Aided School | Good | 0.94 KM |
| Elm Grove Primary School | Community School | Good | 0.98 KM |
Images
Nearby Streets
| Name | Average Price | Average Sqft | Distance |
|---|---|---|---|
| Robin Davis Close | £ 0 | 0 | 0.00 KM |
| Saint Helen's Road | £ 0 | 0 | 0.00 KM |
| Brighton Mews | £ 0 | 0 | 0.00 KM |
| Peace Close | £ 0 | 0 | 0.00 KM |
| Lambourne Close | £ 0 | 0 | 0.00 KM |
Nearby Transport
| Name | NLC | TLC | Distance |
|---|---|---|---|
| Moulsecoomb | 5312 | MCB | 0.95 KM |
| London Road (Brighton) | 5281 | LRB | 2.26 KM |
| Brighton | 5268 | BTN | 2.98 KM |
| Falmer | 5337 | FMR | 4.12 KM |
| Preston Park | 5285 | PRP | 4.39 KM |
Nearby Listings
| Address | Price | Type | Score | Distance |
|---|---|---|---|---|
| Coombe Road, Brighton | £ 240,000 | BUY | 6 / 10 | 0.00 KM |
| Coombe Road, Brighton | £ 370,000 | BUY | 6 / 10 | 0.03 KM |
| Coombe Road, Brighton, East Sussex | £ 500,000 | BUY | 6 / 10 | 0.04 KM |
| Coombe Road, Brighton, BN2 | £ 475,000 | BUY | 6 / 10 | 0.05 KM |
| Coombe Road, Brighton | £ 385,000 | BUY | 6 / 10 | 0.06 KM |
Nearby Properties
| Address | Price | Distance |
|---|---|---|
| 122 Coombe Road | £ 285,000 | 0.01 KM |
| 108 Coombe Road | £ 152,000 | 0.01 KM |
| 158 Coombe Road | £ 230,000 | 0.01 KM |
| 166 Coombe Road | £ 64,500 | 0.01 KM |
| 112 Coombe Road | £ 350,000 | 0.01 KM |