North Parade, Ilkley, West Yorkshire, LS29
By Dale Eddison
£ 325,000
Reviews
3 out of 5 stars
Dale Eddison says ..
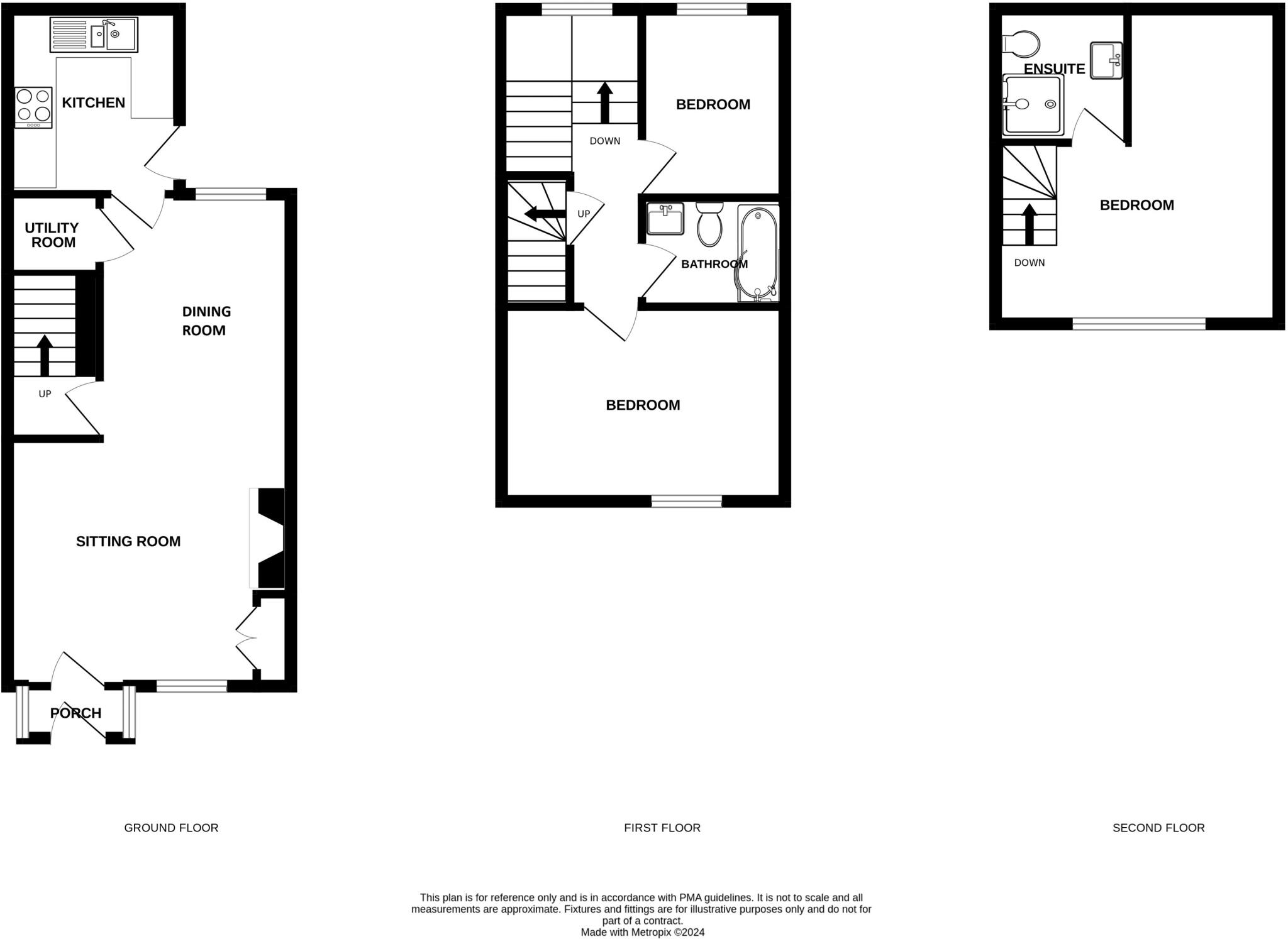
* STONE BUILT TERRACED PROPERTY * THREE BEDROOMS * TWO BATHROOMS * EXCELLENT LOCATION *
Property Oracle says ..
This three-bedroom, two-bathroom terraced house in Ilkley, West Yorkshire, presents a compelling proposition. Situated on North Parade, the property enjoys a prime location within easy reach of the town centre’s amenities and Ilkley train station. The interior photos reveal a tastefully decorated home with a modernised kitchen and what looks like a recently refurbished bathroom. While the provided images showcase a comfortable living space, a thorough inspection is recommended before purchase. The small rear garden offers some outdoor space, although its dimensions are unknown. The list price of £325,000 sits slightly above the North Parade average, requiring further investigation to confirm its suitability for the market conditions. Potential buyers should consider the property’s precise square footage to fully evaluate its price relative to the average price per square foot for similar properties in the area.
Therefore, we give this property 6 / 10. *Disclaimer: This is our option and does constitute a recommendation or financial advice. Do your own research. *
- Price
- 7
- Condition
- 7
- Location
- 9
- Land
- 3
- Bedrooms
- 3
- Bathrooms
- 2
- Sqft (est)
- 700.00
The heatmap indicates the level of crime in the area. The color of the heatmap indicates the crime severity and recency.
Metrics Year-on-Year
- Average area value
- 368,177.00 £Decreased by 27.34 %
- Est sale value
- 441,000.00 £Increased by 34.33 %
- Average area rental value
- 1,357.00 £/moIncreased by 21.27 %
- Est letting value
- 1,400.00 £/moIncreased by 100.00 %
- Est rental Yield
- 4.42 %Increased by 66.79 %
- Crime Rate
- 22.00 %Unchanged by 0.00 %
Agent Activity
Dale Eddison created the listing.
Nearby Schools
| Name | Type | Ofsted | Distance |
|---|---|---|---|
| Little Lane Children'S Centre | Children's Centre Linked Site | 0.12 KM | |
| Menston And Burley Children'S Centre | Children's Centre Linked Site | 0.12 KM | |
| Ashlands Primary School | Community School | Outstanding | 0.30 KM |
| Ilkley Grammar School | Academy Converter | Outstanding | 0.62 KM |
| The Sacred Heart Catholic Primary School | Academy Converter | 0.63 KM |
Images
Nearby Streets
| Name | Average Price | Average Sqft | Distance |
|---|---|---|---|
| North Parade | £ 294,917 | 0 | 0.00 KM |
| West Parade | £ 280,000 | 0 | 0.00 KM |
| Gordon Street | £ 276,667 | 0 | 0.00 KM |
| Mornington Road | £ 305,000 | 0 | 0.00 KM |
| Leamington Road | £ 126,650 | 0 | 0.00 KM |
Nearby Transport
| Name | NLC | TLC | Distance |
|---|---|---|---|
| Ilkley | 8568 | ILK | 0.71 KM |
| Ben Rhydding | 8564 | BEY | 2.06 KM |
| Burley-In-Wharfedale | 8565 | BUW | 7.24 KM |
| Crossflatts | 8554 | CFL | 8.27 KM |
| Bingley | 8553 | BIY | 9.04 KM |
Nearby Listings
| Address | Price | Type | Score | Distance |
|---|---|---|---|---|
| North Parade, Ilkley | £ 284,950 | BUY | 7 / 10 | 0.01 KM |
| North Parade, Ilkley, LS29 | £ 270,000 | BUY | Unknown | 0.04 KM |
| East Parade, Ilkley, West Yorkshire, LS29 | £ 335,000 | BUY | 7 / 10 | 0.08 KM |
| Thwaites Avenue, Ilkley | £ 415,000 | BUY | Unknown | 0.10 KM |
| Gordon Street, Ilkley | £ 365,000 | BUY | 7 / 10 | 0.11 KM |
Nearby Properties
| Address | Price | Distance |
|---|---|---|
| 39 North Parade | £ 160,500 | 0.02 KM |
| 33 North Parade | £ 171,000 | 0.02 KM |
| 49 North Parade | £ 342,500 | 0.02 KM |
| 45 North Parade | £ 165,000 | 0.02 KM |
| 31 North Parade | £ 210,000 | 0.02 KM |