Pearsons says ..
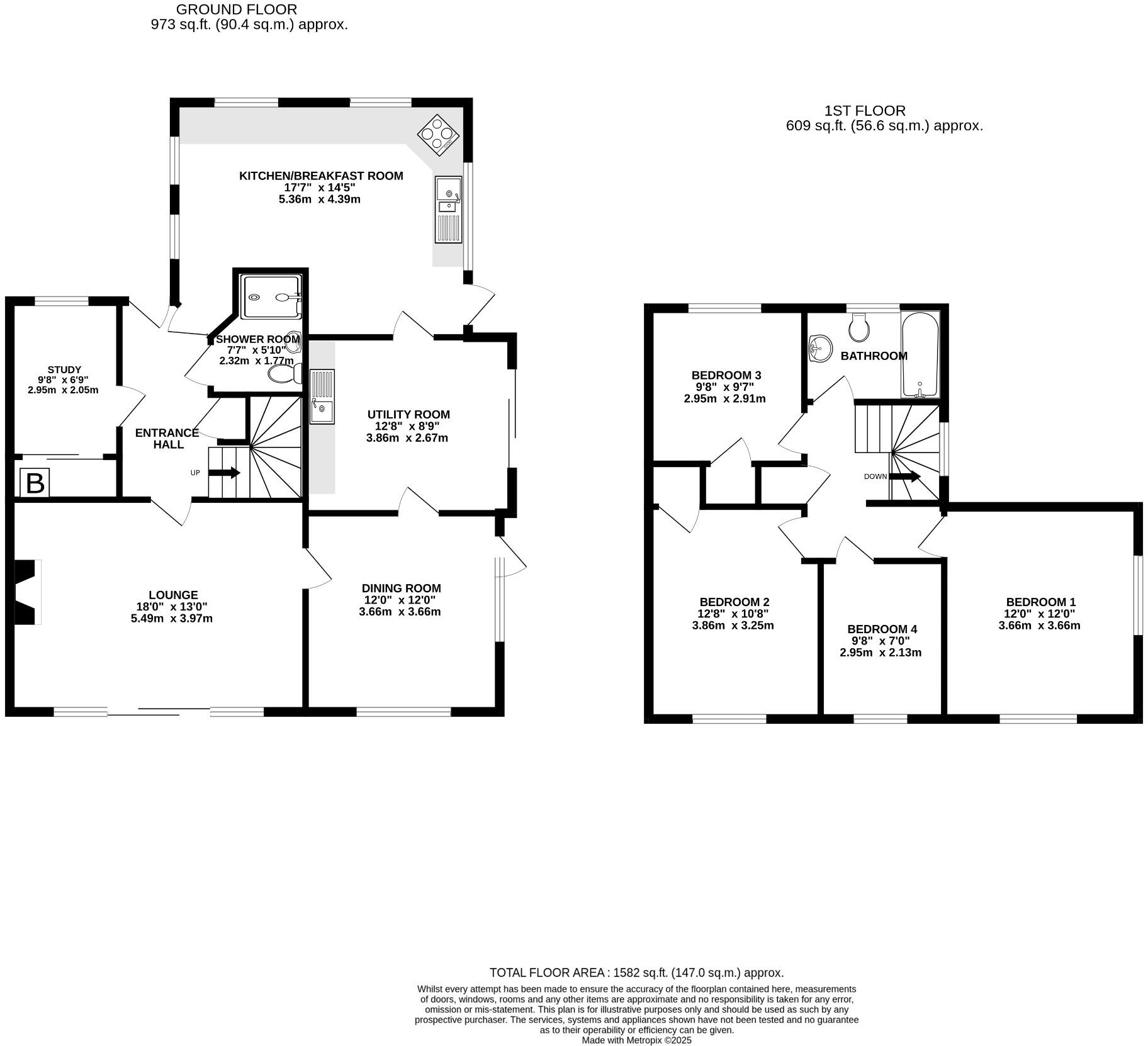
NO FORWARD CHAIN. An extended four bedroom detached family home tucked away at the end of a cul de sac siding onto Stubbington Study Centre and backing onto the grounds of Seafield Park providing direct access to wonderful coastal walks. The property, which has been thoughtfully extended, does ha...
Property Oracle says ..
This property is a 4-bedroom, 2-bathroom detached house located in Stubbington, Fareham. It is listed at £650,000 and has 1,270 sqft of living space and a 1,582 sqft plot. The property appears to be in good condition, with a well-maintained garden and a detached garage. The location is desirable, with nearby outstanding schools and relatively easy access to Fareham train station. However, the asking price is significantly higher than the average price for the area, and the average price per sqft is also higher. The high price may be justified by the larger plot size, the detached garage, and the desirable location. More information on comparable properties would be needed for a more definitive assessment of the price.
Therefore, we give this property 7 / 10. *Disclaimer: This is our option and does constitute a recommendation or financial advice. Do your own research. *
- Price
- 6
- Condition
- 8
- Location
- 9
- Land
- 7
- Bedrooms
- 4
- Bathrooms
- 2
- Sqft (est)
- 1,270.00
- Lot (est)
- 1,582.00
The heatmap indicates the level of crime in the area. The color of the heatmap indicates the crime severity and recency.
Metrics Year-on-Year
- Average area value
- 462,488.00 £Increased by 5.60 %
- Est sale value
- 561,340.00 £Decreased by 8.11 %
- Average area rental value
- 2,158.00 £/moIncreased by 43.10 %
- Est letting value
- 2,540.00 £/moIncreased by 100.00 %
- Est rental Yield
- 5.60 %Increased by 35.59 %
- Crime Rate
- 10.00 %Unchanged by 0.00 %
Agent Activity
Pearsons created the listing.
Nearby Schools
| Name | Type | Ofsted | Distance |
|---|---|---|---|
| Crofton Hammond Junior School | Community School | Outstanding | 0.54 KM |
| Crofton Hammond Infant School | Community School | Outstanding | 0.54 KM |
| Crofton Anne Dale Junior School | Community School | Good | 0.95 KM |
| Crofton Anne Dale Infant School | Community School | Outstanding | 0.95 KM |
| Baycroft School | Community Special School | Good | 1.46 KM |
Images
Nearby Streets
| Name | Average Price | Average Sqft | Distance |
|---|---|---|---|
| Linkway | £ 0 | 0 | 0.00 KM |
| Capella Close | £ 0 | 0 | 0.00 KM |
| Wedgewood Close | £ 0 | 0 | 0.00 KM |
| Sea Lane | £ 0 | 0 | 0.00 KM |
| Seaton Close | £ 0 | 0 | 0.00 KM |
Nearby Transport
| Name | NLC | TLC | Distance |
|---|---|---|---|
| Fareham | 5900 | FRM | 4.99 KM |
| Swanwick | 5920 | SNW | 8.58 KM |
Nearby Listings
| Address | Price | Type | Score | Distance |
|---|---|---|---|---|
| SPRINGFIELD WAY, STUBBINGTON | £ 650,000 | BUY | 7 / 10 | 0.00 KM |
| Springfield Way, Stubbington | £ 465,000 | BUY | 7 / 10 | 0.05 KM |
| Link Way, Stubbington,Fareham | £ 450,000 | BUY | Unknown | 0.06 KM |
| Moody Road, Stubbington, Hampshire, PO14 | £ 440,000 | BUY | 6 / 10 | 0.17 KM |
| Moody Road, Stubbington, PO14 | £ 440,000 | BUY | 6 / 10 | 0.18 KM |
Nearby Properties
| Address | Price | Distance |
|---|---|---|
| 19 Springfield Way | £ 275,000 | 0.01 KM |
| 3 Springfield Way | £ 243,750 | 0.01 KM |
| 21 Springfield Way | £ 81,000 | 0.01 KM |
| 8 Springfield Way | £ 275,995 | 0.01 KM |
| 7 Springfield Way | £ 395,000 | 0.01 KM |