Temple Mill Island, Marlow, SL7
By Griffin Property Co.
£ 1,295,000
Reviews
3 out of 5 stars
Griffin Property Co. says ..
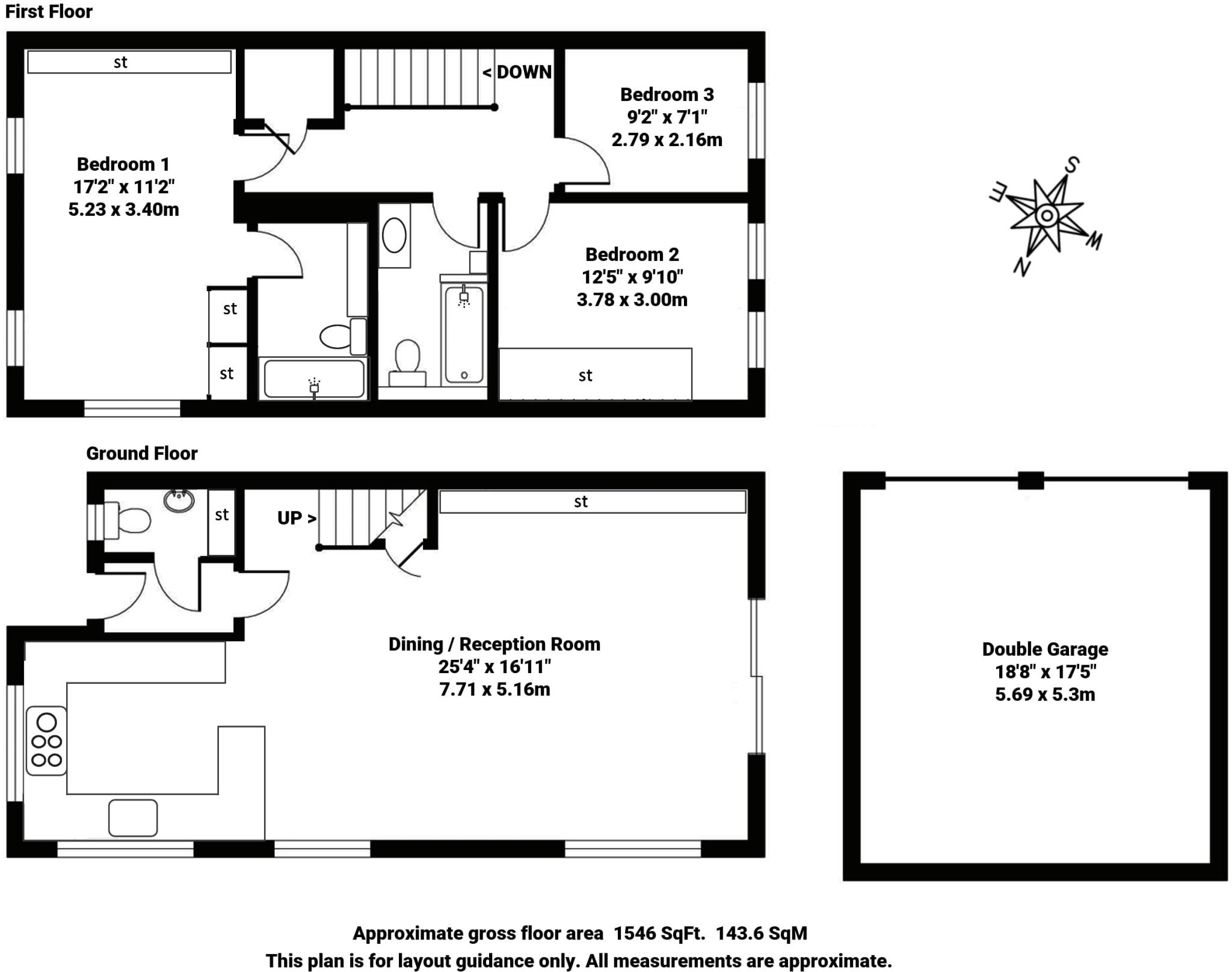
Prime Riverside Residence on Temple Mill Island. Exclusive River Thames frontage of 93 ft, with enchanting riverside gardens enveloping the property on three sides, and breathtaking river views from every room. Undoubtedly the best-positioned house on the island. The spacious main living are
Property Oracle says ..
This semi-detached property on Temple Mill Island offers a blend of modern living and scenic waterfront views. The property features three bedrooms and three bathrooms, making it suitable for families or those seeking extra space. The interior is well-presented, with a modern kitchen and bathrooms. The property’s location on Temple Mill Island provides a unique setting, with direct access to the River Thames and proximity to Marlow’s amenities. While the plot size is not specified, the garden area and river frontage enhance the property’s appeal. The inclusion of an office space is a valuable asset for those working from home. Overall, this property offers a desirable lifestyle in a sought-after location.
Therefore, we give this property 7 / 10. *Disclaimer: This is our option and does constitute a recommendation or financial advice. Do your own research. *
- Price
- 6
- Condition
- 8
- Location
- 9
- Land
- 7
- Bedrooms
- 3
- Bathrooms
- 3
- Sqft (est)
- 1,124.61
The heatmap indicates the level of crime in the area. The color of the heatmap indicates the crime severity and recency.
Metrics Year-on-Year
- Average area value
- 1,979,279.00 £Increased by 77.64 %
- Est sale value
- 1,486,734.42 £Increased by 830.99 %
- Average area rental value
- 2,383.00 £/moIncreased by 10.12 %
- Est letting value
- 1,124.61 £/mo
- Est rental Yield
- 1.44 %Decreased by 38.20 %
- Crime Rate
- 49.00 %Unchanged by 0.00 %
Agent Activity
Griffin Property Co. created the listing.
Nearby Schools
| Name | Type | Ofsted | Distance |
|---|---|---|---|
| Bisham Church Of England Academy | Academy Converter | 1.63 KM | |
| Sir William Borlase'S Grammar School | Academy Converter | Outstanding | 2.10 KM |
| Spinfield School | Community School | Good | 2.22 KM |
| St Peter'S Catholic Primary School | Academy Converter | 2.63 KM | |
| Berkshire College Of Agriculture | Further Education | Good | 2.85 KM |
Images
Nearby Streets
| Name | Average Price | Average Sqft | Distance |
|---|---|---|---|
| Temple Footbridge | £ 0 | 0 | 0.00 KM |
| Church Lane | £ 0 | 0 | 0.00 KM |
| Under The Wood | £ 0 | 0 | 0.00 KM |
| A404 | £ 710,000 | 0 | 0.00 KM |
| Westwood Road | £ 0 | 0 | 0.00 KM |
Nearby Transport
| Name | NLC | TLC | Distance |
|---|---|---|---|
| Marlow | 3021 | MLW | 3.23 KM |
| Furze Platt | 3144 | FZP | 7.08 KM |
| Cookham | 3019 | COO | 7.45 KM |
| Maidenhead | 3147 | MAI | 8.30 KM |
| Bourne End | 3018 | BNE | 9.13 KM |
Nearby Listings
| Address | Price | Type | Score | Distance |
|---|---|---|---|---|
| Temple Mill Island, Marlow, SL7 | £ 1,295,000 | BUY | 7 / 10 | 0.00 KM |
| Temple Mill Island, Marlow | £ 1,300,000 | BUY | 8 / 10 | 0.04 KM |
| Temple Mill Island. | £ 725,000 | BUY | 6 / 10 | 0.11 KM |
| Temple Lane, Temple, Marlow, Berkshire, SL7 | £ 135,000 | BUY | 6 / 10 | 0.12 KM |
| Temple Lane, Marlow SL7 | £ 2,200,000 | BUY | 8 / 10 | 0.12 KM |
Nearby Properties
| Address | Price | Distance |
|---|---|---|
| 44 Temple Mill Island | £ 975,000 | 0.08 KM |
| 30 Temple Mill Island | £ 725,000 | 0.08 KM |
| 43 Temple Mill Island | £ 565,000 | 0.08 KM |
| 42 Temple Mill Island | £ 810,000 | 0.08 KM |
| 38 Temple Mill Island | £ 825,000 | 0.08 KM |