Vicinity Homes says ..
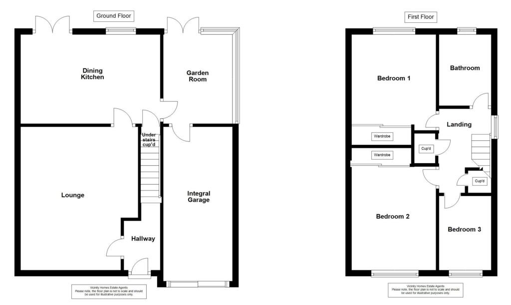
Vicinity Homes are delighted to offer to the market this immaculately presented and extended, three bedroom semi detached house situated within a cul-de-sac in a popular residential area to the West of Carlisle City Centre. The property is close to a range of local amenities, regular bus route, p...
Property Oracle says ..
This is a well-presented semi-detached property in Carlisle, offering three bedrooms and a modern interior. The property benefits from a good-sized garden, a modern kitchen and bathroom, and an integral garage. The location is convenient, with nearby schools and transportation links. Overall, this property appears to be a desirable family home in a popular residential area.
Therefore, we give this property 7 / 10. *Disclaimer: This is our option and does constitute a recommendation or financial advice. Do your own research. *
- Price
- 8
- Condition
- 8
- Location
- 7
- Land
- 7
- Bedrooms
- 3
- Bathrooms
- 1
The heatmap indicates the level of crime in the area. The color of the heatmap indicates the crime severity and recency.
Metrics Year-on-Year
- Average area value
- 282,389.00 £Decreased by 5.89 %
- Average area rental value
- 1,083.00 £/moDecreased by 11.16 %
- Est rental Yield
- 4.60 %Decreased by 5.74 %
- Crime Rate
- 12.00 %Unchanged by 0.00 %
Agent Activity
Vicinity Homes created the listing.
Nearby Schools
| Name | Type | Ofsted | Distance |
|---|---|---|---|
| Yewdale School | Academy Sponsor Led | Good | 0.51 KM |
| Richard Rose Morton Academy | Academy Sponsor Led | Good | 0.99 KM |
| Belle Vue Primary School | Community School | Good | 1.15 KM |
| Carlisle West - Newtown Surestart Children'S Centre | Children's Centre | 1.61 KM | |
| Carlisle West - Morton Surestart Children'S Centre | Children's Centre | 1.90 KM |
Images
Nearby Streets
| Name | Average Price | Average Sqft | Distance |
|---|---|---|---|
| St. Edmunds Park | £ 0 | 0 | 0.00 KM |
| Blackthorn Way | £ 0 | 0 | 0.00 KM |
| Saint Edmunds Park | £ 160,000 | 0 | 0.00 KM |
| Elder Drive | £ 0 | 0 | 0.00 KM |
| Bramble Way | £ 0 | 0 | 0.00 KM |
Nearby Transport
| Name | NLC | TLC | Distance |
|---|---|---|---|
| Dalston (Cumbria) | 2077 | DLS | 4.36 KM |
| Carlisle | 2118 | CAR | 5.30 KM |
Nearby Listings
| Address | Price | Type | Score | Distance |
|---|---|---|---|---|
| St. Edmunds Park, Carlisle | £ 200,000 | BUY | 7 / 10 | 0.00 KM |
| Woodlands, Orton Road, Carlisle, CA2 | £ 230,000 | BUY | 6 / 10 | 0.11 KM |
| Hebden Avenue, Carlisle, Cumbria, CA2 | £ 190,000 | BUY | 7 / 10 | 0.14 KM |
| St Edmunds Park, Carlisle, CA2 | £ 160,000 | BUY | 6 / 10 | 0.14 KM |
| Hebden Avenue, Upperby, Carlisle, CA2 | £ 150,000 | BUY | 6 / 10 | 0.15 KM |
Nearby Properties
| Address | Price | Distance |
|---|---|---|
| 5 Burnsall Close | £ 115,000 | 0.10 KM |
| 4 Burnsall Close | £ 120,000 | 0.10 KM |
| 13 Burnsall Close | £ 123,000 | 0.10 KM |
| 11 Burnsall Close | £ 124,999 | 0.10 KM |
| 1 Burnsall Close | £ 107,500 | 0.10 KM |