Colliers Lane, Charlcombe, Bath, BA1
By Savills
£ 1,450,000
Reviews
3 out of 5 stars
Savills says ..
An extensively refurbished and extended house in a generous plot on the northern slopes of Bath.
Property Oracle says ..
This contemporary property located in Colliers Lane, Charlcombe, on the outskirts of Bath, presents a unique blend of modern living and semi-rural tranquility. The photos showcase a high-end finish with an open-plan design, state-of-the-art kitchen, and luxurious bathrooms. Large windows offer panoramic views of the surrounding countryside and distant city views, creating a light and airy living space. The property also includes a balcony extending the indoor-outdoor living. The small but pleasant garden and relatively private setting enhance the appeal. While the precise plot size is not given, the area around the property looks spacious, even including a large outdoor table and chairs. The proximity to Bath and relatively near access to Bath Spa train station provide easy access to the city centre and beyond. The location also benefits from multiple schools within walking or short cycling distance. However, potential buyers should be aware of the slightly secluded nature of the location, which might not suit everyone. Overall, the property offers a high standard of contemporary living but it’s important to balance this with the higher price point and slightly smaller plot compared to more centrally located properties. The absence of a precise plot size makes a definitive judgment on value per square foot more difficult. More detailed information regarding the construction specifications and any warranties would help provide a more complete picture for prospective buyers.
Therefore, we give this property 6 / 10. *Disclaimer: This is our option and does constitute a recommendation or financial advice. Do your own research. *
- Price
- 7
- Condition
- 9
- Location
- 7
- Land
- 4
- Bedrooms
- 4
- Bathrooms
- 3
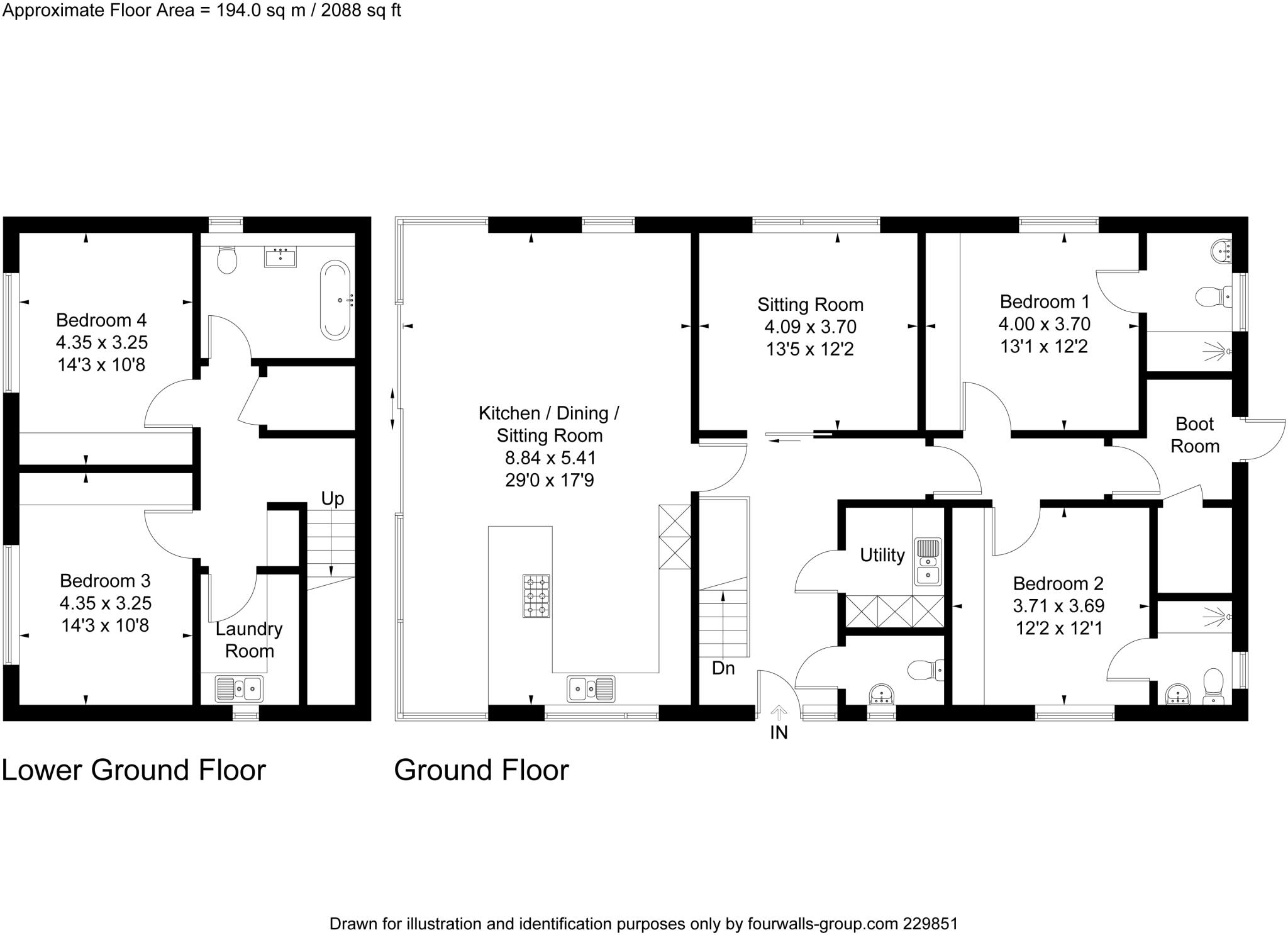
- Sqft (est)
- 2,088.00
The heatmap indicates the level of crime in the area. The color of the heatmap indicates the crime severity and recency.
Metrics Year-on-Year
- Average area value
- 541,429.00 £Decreased by 23.20 %
- Est sale value
- 1,133,784.00 £Increased by 14.08 %
- Average area rental value
- 2,040.00 £/moIncreased by 13.71 %
- Est letting value
- 4,176.00 £/moIncreased by 100.00 %
- Est rental Yield
- 4.52 %Increased by 48.20 %
- Crime Rate
- 0.00 %
Agent Activity
Savills created the listing.
Nearby Schools
| Name | Type | Ofsted | Distance |
|---|---|---|---|
| St Mark'S Cofe School | Academy Converter | 0.91 KM | |
| St Saviours Infant Church School | Academy Converter | 1.13 KM | |
| St Stephens Church School | Academy Converter | 1.14 KM | |
| Swainswick Church School | Academy Converter | 1.20 KM | |
| Royal High School Gdst | Other Independent School | 1.27 KM |
Images
Nearby Streets
| Name | Average Price | Average Sqft | Distance |
|---|---|---|---|
| Colliers Lane | £ 0 | 0 | 0.00 KM |
| George's Road | £ 0 | 0 | 0.00 KM |
| Richmond Close | £ 0 | 0 | 0.00 KM |
| Eastbourne Avenue | £ 950,000 | 0 | 0.00 KM |
| Northfields | £ 0 | 0 | 0.00 KM |
Nearby Transport
| Name | NLC | TLC | Distance |
|---|---|---|---|
| Bath Spa | 3271 | BTH | 3.00 KM |
| Oldfield Park | 3219 | OLF | 3.86 KM |
| Freshford | 3344 | FFD | 9.30 KM |
Nearby Listings
| Address | Price | Type | Score | Distance |
|---|---|---|---|---|
| Pickwick Road, Fairfield Park, Bath | £ 565,000 | BUY | 8 / 10 | 0.49 KM |
| Whitewells Road, Bath, Somerset, BA1 | £ 325,000 | BUY | 6 / 10 | 0.52 KM |
| Wiltshire Way, Bath | £ 400,000 | BUY | Unknown | 0.52 KM |
| Ullswater Drive | £ 650,000 | BUY | 8 / 10 | 0.56 KM |
| Whitewells Road, Bath | £ 250,000 | BUY | 7 / 10 | 0.56 KM |
Nearby Properties
| Address | Price | Distance |
|---|---|---|
| 10 Pickwick Road | £ 310,000 | 0.51 KM |
| 5 Pickwick Road | £ 250,000 | 0.51 KM |
| 15 Pickwick Road | £ 387,000 | 0.51 KM |
| 1 Wiltshire Way | £ 225,000 | 0.52 KM |
| 2 Wiltshire Way | £ 350,000 | 0.52 KM |