Nash Road, Westwood Cross, Margate
By GUILDCREST ESTATES
£ 284,950
Reviews
3 out of 5 stars
GUILDCREST ESTATES says ..
A beautiful development of one & two bedroom apartments exclusively for the over 60s ideally located in Westwood Cross, carefully designed to make life easier, leaving you free to enjoy your retirement. All apartments are completely self-contained with their own front door, providing you with...
Property Oracle says ..
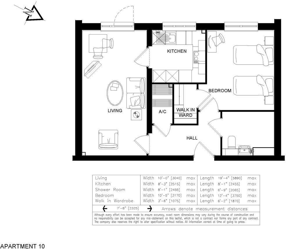
This one-bedroom apartment in Westwood Cross, Margate, is presented in excellent condition. The property boasts modern fixtures and a stylish interior design. Images show a well-equipped kitchen, a comfortable living area, a spacious bedroom with fitted wardrobes, and a modern, well-appointed bathroom. The development benefits from a communal owners’ lounge and gardens, offering additional amenities for residents. The location provides convenient access to local shops and transport links; however, the lack of significant private outdoor space is a notable drawback. While nearby properties offer a range of price points, and average prices on Nash Road are reasonably similar, the listed price may be slightly above average, requiring a potential buyer to take this into consideration and negotiate. The property is clearly marketed towards the over-60s lifestyle, targeting a specific market niche. Overall, the property offers a well-maintained, modern living space in a convenient location, but the lack of private outdoor space and its focus on a particular demographic could potentially limit its appeal.
Therefore, we give this property 6 / 10. *Disclaimer: This is our option and does constitute a recommendation or financial advice. Do your own research. *
- Price
- 7
- Condition
- 9
- Location
- 7
- Land
- 2
- Bedrooms
- 1
- Bathrooms
- 1
- Sqft (est)
- 890.82
The heatmap indicates the level of crime in the area. The color of the heatmap indicates the crime severity and recency.
Metrics Year-on-Year
- Average area value
- 420,645.00 £Increased by 5.85 %
- Est sale value
- 420,467.04 £Increased by 43.90 %
- Average area rental value
- 1,250.00 £/moDecreased by 18.03 %
- Est letting value
- 890.82 £/moUnchanged by 0.00 %
- Est rental Yield
- 3.57 %Decreased by 22.56 %
- Crime Rate
- 17.00 %Unchanged by 0.00 %
Agent Activity
GUILDCREST ESTATES created the listing.
Nearby Schools
| Name | Type | Ofsted | Distance |
|---|---|---|---|
| Enterprise Learning Alliance | Pupil Referral Unit | Good | 0.61 KM |
| Laleham Gap School | Foundation Special School | Good | 1.41 KM |
| Dame Janet Primary Academy | Academy Sponsor Led | Good | 1.58 KM |
| St George'S Church Of England Foundation School | Foundation School | Good | 1.88 KM |
| Small Haven School | Other Independent Special School | Good | 1.91 KM |
Images
Nearby Streets
| Name | Average Price | Average Sqft | Distance |
|---|---|---|---|
| Star Lane | £ 409,950 | 0 | 0.00 KM |
| Nash Road | £ 321,617 | 0 | 0.00 KM |
| Leo Road | £ 163,750 | 0 | 0.00 KM |
| Castor Road | £ 0 | 0 | 0.00 KM |
| Columbia Way | £ 233,333 | 0 | 0.00 KM |
Nearby Transport
| Name | NLC | TLC | Distance |
|---|---|---|---|
| Ramsgate | 5023 | RAM | 2.85 KM |
| Margate | 5018 | MAR | 3.42 KM |
| Dumpton Park | 5034 | DMP | 4.15 KM |
| Broadstairs | 5006 | BSR | 4.59 KM |
| Westgate-On-Sea | 5195 | WGA | 6.32 KM |
Nearby Listings
| Address | Price | Type | Score | Distance |
|---|---|---|---|---|
| Nash Road, Westwood Cross, Margate | £ 284,950 | BUY | 6 / 10 | 0.00 KM |
| Nash Road, Westwood Cross, Margate | £ 409,950 | BUY | 6 / 10 | 0.04 KM |
| Nash Road, Westwood Cross, CT9 | £ 279,950 | BUY | 6 / 10 | 0.04 KM |
| 1 Bed Apartment, Invicta Lodge, Margate | £ 222,000 | BUY | 6 / 10 | 0.04 KM |
| Westwood Cross, Margate, CT9 | £ 321,950 | BUY | 6 / 10 | 0.06 KM |
Nearby Properties
| Address | Price | Distance |
|---|---|---|
| 24 Star Lane | £ 177,000 | 0.14 KM |
| 30 Star Lane | £ 85,500 | 0.14 KM |
| 28 Star Lane | £ 168,000 | 0.14 KM |
| 34 Richborough Close | £ 255,000 | 0.18 KM |
| 33 Richborough Close | £ 240,000 | 0.18 KM |