FO
Coombe Street, Lyme Regis, Dorset, DT7
By Fortnam Smith & Banwell
£ 600,000
Reviews
3 out of 5 stars
Fortnam Smith & Banwell says ..
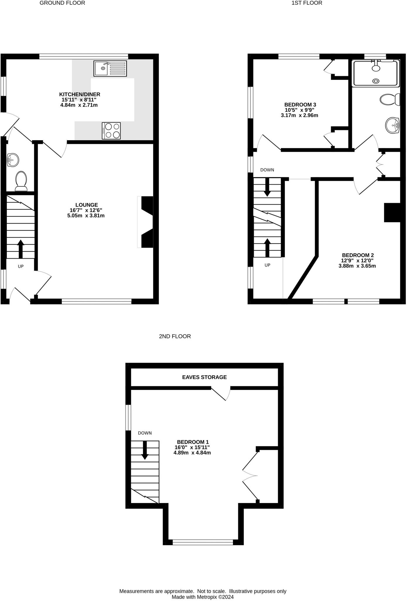
A rare opportunity to acquire a three bedroom semi detached home set over three floors located in the heart of Lyme Regis Old Town and benefits from a beautifully landscaped garden, parking and garage.
Property Oracle says ..
Therefore, we give this property 6 / 10. *Disclaimer: This is our option and does constitute a recommendation or financial advice. Do your own research. *
- Price
- 6
- Condition
- 5
- Location
- 8
- Land
- 7
- Bedrooms
- 3
- Bathrooms
- 1
- Sqft (est)
- 856.53
The heatmap indicates the level of crime in the area. The color of the heatmap indicates the crime severity and recency.
Metrics Year-on-Year
- Average area value
- 547,942.00 £Decreased by 8.74 %
- Est sale value
- 389,721.15 £Decreased by 25.04 %
- Average area rental value
- 1,256.00 £/moIncreased by 35.78 %
- Est letting value
- 856.53 £/mo
- Est rental Yield
- 2.75 %Increased by 48.65 %
- Crime Rate
- 50.00 %Unchanged by 0.00 %
from 600,447.00 £
from 519,913.71 £
from 925.00 £/mo
from 0.00 £/mo
from 1.85 %
from 50.00 %
Agent Activity
Fortnam Smith & Banwell created the listing.
Nearby Schools
| Name | Type | Ofsted | Distance |
|---|---|---|---|
| St Michael'S Church Of England Voluntary Aided Primary School, Lyme Regis | Voluntary Aided School | Requires improvement | 0.26 KM |
| Beaminster And Lyme Regis Sure Start Children'S Centre | Children's Centre | 0.26 KM | |
| The Woodroffe School | Foundation School | Outstanding | 1.62 KM |
| Mrs Ethelston'S Cofe Primary Academy | Academy Converter | Good | 2.91 KM |
| Charmouth Primary School | Community School | Requires improvement | 3.79 KM |
Images
Nearby Streets
| Name | Average Price | Average Sqft | Distance |
|---|---|---|---|
| Dolphin Close | £ 0 | 0 | 0.00 KM |
| Monmouth Street | £ 0 | 0 | 0.00 KM |
| Summerhill Road | £ 0 | 0 | 0.00 KM |
| Manor Avenue | £ 0 | 0 | 0.00 KM |
| The Close | £ 775,000 | 0 | 0.00 KM |
Nearby Transport
| Name | NLC | TLC | Distance |
|---|---|---|---|
| Axminster | 5714 | AXM | 9.71 KM |
Nearby Listings
| Address | Price | Type | Score | Distance |
|---|---|---|---|---|
| Coombe Street, Lyme Regis, Dorset, DT7 | £ 600,000 | BUY | 6 / 10 | 0.00 KM |
| Coombe Street, Lyme Regis, Dorset | £ 475,000 | BUY | 6 / 10 | 0.03 KM |
| Coombe Street, Lyme Regis, Dorset | £ 500,000 | BUY | Unknown | 0.03 KM |
| Eagle House, Lyme Regis, Dorset | £ 1,395,000 | BUY | 7 / 10 | 0.03 KM |
| Mill Green Court, Lyme Regis, Dorset, DT7 | £ 595,000 | BUY | 6 / 10 | 0.07 KM |
Nearby Properties
| Address | Price | Distance |
|---|---|---|
| 2 Mill Green Court | £ 145,000 | 0.06 KM |
| Waverley | £ 485,000 | 0.07 KM |
| 27 Sherborne Lane | £ 25,000 | 0.07 KM |
| 31 Sherborne Lane | £ 345,000 | 0.07 KM |
| Monks Way | £ 455,000 | 0.07 KM |