Byron Road, Harrow, Middlesex, HA3
By Leafy Estates
£ 525,000
Reviews
3 out of 5 stars
Leafy Estates says ..
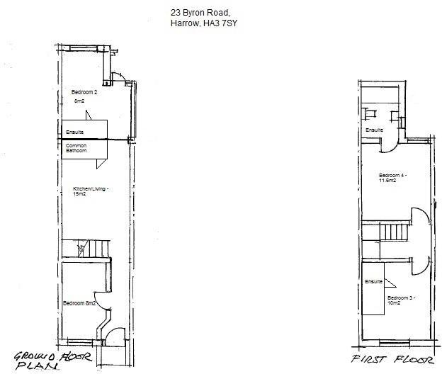
An excellent investment opportunity, this well-presented 4-bedroom terraced house is a fully licensed HMO for 6 occupants and is situated in the heart of Harrow. The property boasts four bedrooms, each with own private bathroom, ensuring high levels of comfort and privacy for tenants.
Property Oracle says ..
This property is a terraced house located in Harrow, Middlesex. It benefits from being close to several transport links, including Harrow & Wealdstone station (0.53km), providing convenient access to central London. There are also a number of schools nearby, including Belmont School, which has an outstanding Ofsted rating. The property itself is relatively small at 566 sqft and has a small garden. The interior appears to be in good condition, with a modern kitchen and bathrooms. However, the provided images do not show the entire property, and a full inspection would be necessary to assess the overall condition accurately. The list price of £525,000 is slightly above the average price for the area (£461,952), but the average price per sqft in the area is lower (£526) than what this property is listed at. Considering its proximity to transport links and schools, and its seemingly good condition, the price may be justifiable, but further investigation into the property’s condition and any potential hidden issues is recommended.
Therefore, we give this property 6 / 10. *Disclaimer: This is our option and does constitute a recommendation or financial advice. Do your own research. *
- Price
- 7
- Condition
- 8
- Location
- 9
- Land
- 3
- Bedrooms
- 4
- Bathrooms
- 4
- Sqft (est)
- 566.18
The heatmap indicates the level of crime in the area. The color of the heatmap indicates the crime severity and recency.
Metrics Year-on-Year
- Average area value
- 464,368.00 £Increased by 12.82 %
- Est sale value
- 443,318.94 £Increased by 57.23 %
- Average area rental value
- 1,766.00 £/moIncreased by 1.44 %
- Est letting value
- 1,132.36 £/moUnchanged by 0.00 %
- Est rental Yield
- 4.56 %Decreased by 10.24 %
- Crime Rate
- 4.00 %Unchanged by 0.00 %
Agent Activity
Leafy Estates created the listing.
Nearby Schools
| Name | Type | Ofsted | Distance |
|---|---|---|---|
| Gange | Children's Centre Linked Site | 0.37 KM | |
| Nisai Virtual Academy Ltd | Special Post 16 Institution | 0.71 KM | |
| Belmont School | Community School | Outstanding | 0.79 KM |
| Elmgrove | Children's Centre Linked Site | 0.81 KM | |
| Elmgrove Primary School & Nursery | Community School | Good | 0.87 KM |
Images
Nearby Streets
| Name | Average Price | Average Sqft | Distance |
|---|---|---|---|
| Palmerston Road | £ 0 | 0 | 0.00 KM |
| Forward Drive | £ 0 | 0 | 0.00 KM |
| Rosslyn Crescent | £ 0 | 0 | 0.00 KM |
| The Bridge | £ 0 | 0 | 0.00 KM |
| Burnham Close | £ 0 | 0 | 0.00 KM |
Nearby Transport
| Name | NLC | TLC | Distance |
|---|---|---|---|
| Harrow And Wealdstone | 1397 | HRW | 0.53 KM |
| Harrow-On-The-Hill | 598 | HOH | 1.74 KM |
| Kenton | 1399 | KNT | 1.89 KM |
| Headstone Lane | 1434 | HDL | 3.21 KM |
| South Kenton | 1453 | SOK | 3.47 KM |
Nearby Listings
| Address | Price | Type | Score | Distance |
|---|---|---|---|---|
| Byron Road, Wealdstone | £ 450,000 | BUY | Unknown | 0.00 KM |
| 63 Byron Road, Harrow, Middlesex, HA3 | £ 700,000 | BUY | 5 / 10 | 0.00 KM |
| Byron Road, Harrow, Middlesex, HA3 | £ 525,000 | BUY | 6 / 10 | 0.00 KM |
| Byron Road, Wealdstone, Harrow | £ 525,000 | BUY | Unknown | 0.00 KM |
| Byron Road, Wealdstone, Harrow | £ 450,000 | BUY | 6 / 10 | 0.00 KM |
Nearby Properties
| Address | Price | Distance |
|---|---|---|
| 73 Byron Road | £ 445,000 | 0.00 KM |
| 17 Byron Road | £ 250,000 | 0.00 KM |
| 5 Byron Road | £ 450,000 | 0.00 KM |
| 47 Byron Road | £ 215,000 | 0.00 KM |
| 37 Byron Road | £ 230,000 | 0.00 KM |