Homewise says ..
Guide price for a Home for Life Lifetime Lease for OVER 60s tailored to your personal circumstances and requirements. Your price may vary. OVER 60S could benefit from SAVINGS of up to 59% from the market value with a one-off payment for a Lifetime Lease on this property. £17...
Property Oracle says ..
Therefore, we give this property 7 / 10. *Disclaimer: This is our option and does constitute a recommendation or financial advice. Do your own research. *
- Price
- 9
- Condition
- 7
- Location
- 8
- Land
- 5
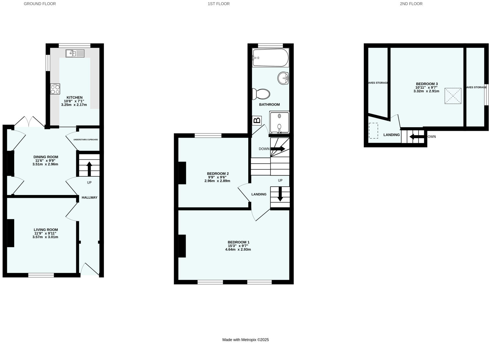
- Bedrooms
- 3
- Bathrooms
- 1
- Sqft (est)
- 645.73
The heatmap indicates the level of crime in the area. The color of the heatmap indicates the crime severity and recency.
Metrics Year-on-Year
- Average area value
- 421,780.00 £Increased by 21.83 %
- Est sale value
- 364,191.72 £Increased by 75.70 %
- Average area rental value
- 1,390.00 £/moDecreased by 6.33 %
- Est letting value
- 645.73 £/moUnchanged by 0.00 %
- Est rental Yield
- 3.95 %Decreased by 23.15 %
- Crime Rate
- 8.00 %Unchanged by 0.00 %
from 346,205.00 £
from 207,279.33 £
from 1,484.00 £/mo
from 645.73 £/mo
from 5.14 %
from 8.00 %
Agent Activity
Homewise created the listing.
Nearby Schools
| Name | Type | Ofsted | Distance |
|---|---|---|---|
| St Thomas Primary School | Academy Converter | Good | 0.06 KM |
| Montgomery Primary School | Foundation School | Good | 0.67 KM |
| West Exe Nursery School | Local Authority Nursery School | Outstanding | 0.76 KM |
| West Exe Children'S Centre | Children's Centre | 0.87 KM | |
| West Exe School | Academy Sponsor Led | 0.95 KM |
Images
Nearby Streets
| Name | Average Price | Average Sqft | Distance |
|---|---|---|---|
| St Edmunds Court | £ 0 | 0 | 0.00 KM |
| Edwin Road | £ 0 | 0 | 0.00 KM |
| Dyers Court | £ 0 | 0 | 0.00 KM |
| Clarence Road | £ 0 | 0 | 0.00 KM |
| Waterloo Road | £ 0 | 0 | 0.00 KM |
Nearby Transport
| Name | NLC | TLC | Distance |
|---|---|---|---|
| Exeter St Thomas | 3414 | EXT | 0.17 KM |
| Exeter Central | 5755 | EXC | 1.36 KM |
| Exeter St David'S | 3410 | EXD | 1.59 KM |
| St James Park (Exeter) | 5751 | SJP | 2.55 KM |
| Polsloe Bridge | 3422 | POL | 4.45 KM |
Nearby Listings
| Address | Price | Type | Score | Distance |
|---|---|---|---|---|
| Cecil Road, St.Thomas, EX2 | £ 240,000 | BUY | 7 / 10 | 0.00 KM |
| Cecil Road, Exeter | £ 280,000 | BUY | 5 / 10 | 0.00 KM |
| Cecil Road, Exeter, Devon, EX2 | £ 174,250 | BUY | 7 / 10 | 0.00 KM |
| Cecil Road, Exeter, Devon | £ 260,000 | BUY | 7 / 10 | 0.01 KM |
| Oxford Street, Exeter, Devon | £ 260,000 | BUY | 7 / 10 | 0.02 KM |
Nearby Properties
| Address | Price | Distance |
|---|---|---|
| 9 Cecil Road | £ 212,000 | 0.01 KM |
| 23 Cecil Road | £ 178,500 | 0.01 KM |
| 21 Cecil Road | £ 162,500 | 0.01 KM |
| 42 Cecil Road | £ 180,000 | 0.01 KM |
| 39 Cecil Road | £ 215,000 | 0.01 KM |