Stoke Newington High Street, Hackney, London, N16
By Keatons
£ 675,000
Reviews
3 out of 5 stars
Keatons says ..
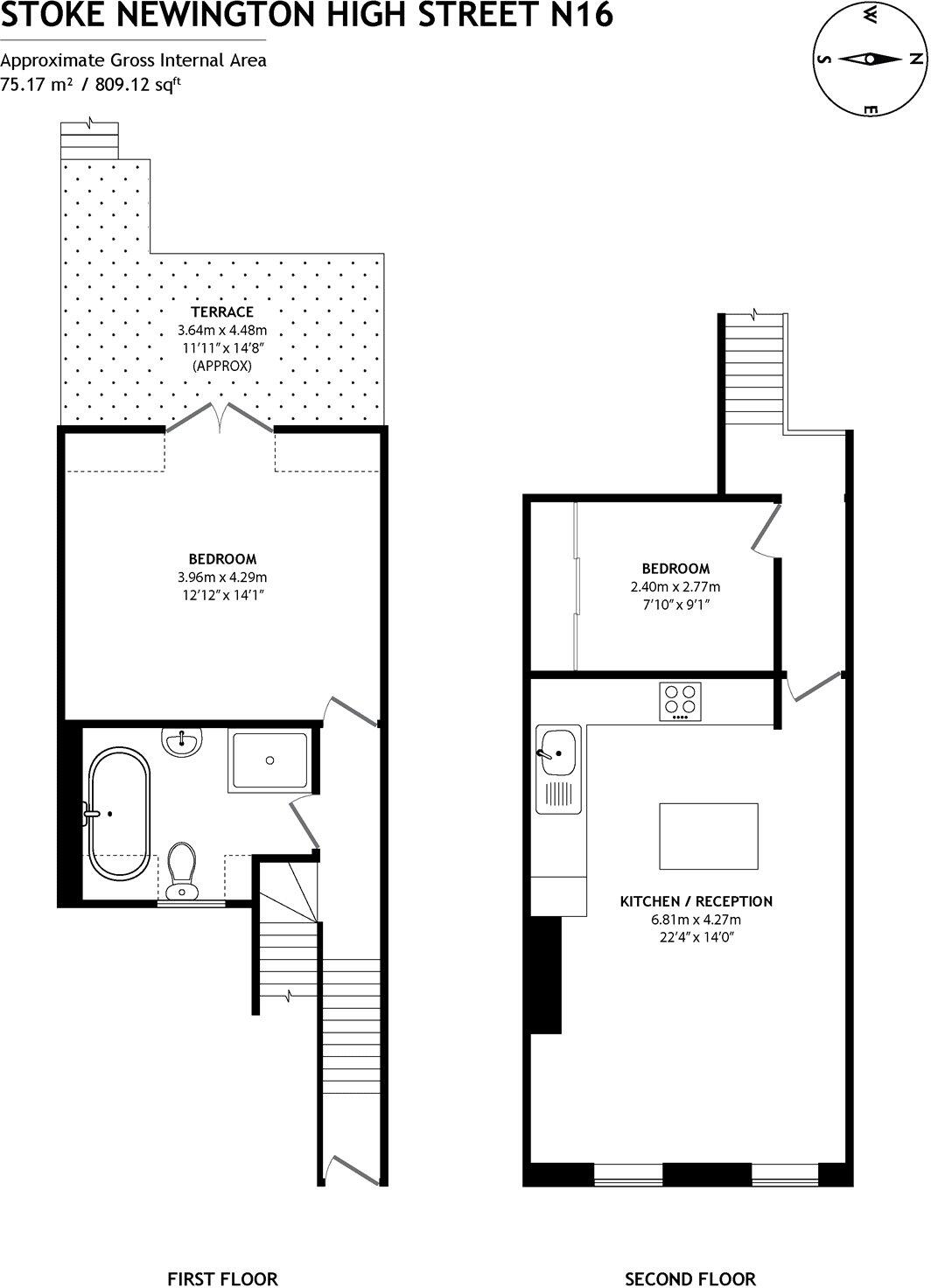
Occupying the first and second floors of an imposing Victorian building on Stoke Newington High Street, this beautifully presented two-bedroom split-level conversion seamlessly blends period character with contemporary style. Accomodation comprising of a stunning open-plan living space featuring ...
Property Oracle says ..
Therefore, we give this property 7 / 10. *Disclaimer: This is our option and does constitute a recommendation or financial advice. Do your own research. *
- Price
- 8
- Condition
- 8
- Location
- 8
- Land
- 7
- Bedrooms
- 2
- Bathrooms
- 1
The heatmap indicates the level of crime in the area. The color of the heatmap indicates the crime severity and recency.
Metrics Year-on-Year
- Average area value
- 996,818.00 £Increased by 20.60 %
- Average area rental value
- 2,571.00 £/moIncreased by 1.70 %
- Est rental Yield
- 3.10 %Decreased by 15.53 %
- Crime Rate
- 10.00 %Unchanged by 0.00 %
from 826,544.00 £
from 2,528.00 £/mo
from 3.67 %
from 10.00 %
Agent Activity
Keatons created the listing.
Nearby Schools
| Name | Type | Ofsted | Distance |
|---|---|---|---|
| William Patten Primary School | Community School | Outstanding | 0.10 KM |
| Tawhid Boys School, Tawhid Educational Trust | Other Independent School | Good | 0.45 KM |
| Linden Children'S Centre | Children's Centre | 0.62 KM | |
| Ttd Gur School | Other Independent School | Inadequate | 0.66 KM |
| Beis Malka Girls' School | Other Independent School | Good | 0.71 KM |
Images
Nearby Streets
| Name | Average Price | Average Sqft | Distance |
|---|---|---|---|
| Sanford Lane | £ 0 | 0 | 0.00 KM |
| Sandford Walk | £ 0 | 0 | 0.00 KM |
| Station Approach | £ 0 | 0 | 0.00 KM |
| Scholars' Place | £ 825,000 | 0 | 0.00 KM |
| Manor Road | £ 831,667 | 0 | 0.00 KM |
Nearby Transport
| Name | NLC | TLC | Distance |
|---|---|---|---|
| Stoke Newington | 6934 | SKW | 0.46 KM |
| Rectory Road | 6967 | REC | 0.73 KM |
| Dalston Kingsland | 1429 | DLK | 1.48 KM |
| Stamford Hill | 6968 | SMH | 1.49 KM |
| Dalston Junction | 1443 | DLJ | 1.70 KM |
Nearby Listings
| Address | Price | Type | Score | Distance |
|---|---|---|---|---|
| Stoke Newington High Street, Hackney, London, N16 | £ 675,000 | BUY | 7 / 10 | 0.00 KM |
| Stoke Newington High Street,, Stoke Newington, London, N16 | £ 1,250,000 | BUY | 6 / 10 | 0.04 KM |
| Stoke Newington High Street,, Stoke Newington, LONDON, N16 | £ 500,000 | BUY | Unknown | 0.04 KM |
| Stoke Newington High Street, N16 | £ 475,000 | BUY | Unknown | 0.05 KM |
| Dynevor Road, London N16 | £ 1,200,000 | BUY | 6 / 10 | 0.09 KM |
Nearby Properties
| Address | Price | Distance |
|---|---|---|
| 137a Stoke Newington High Street | £ 80,000 | 0.02 KM |
| 167a - 167c Stoke Newington High Street | £ 327,500 | 0.02 KM |
| 4 Sanford Lane | £ 350,000 | 0.10 KM |
| 8 Sanford Lane | £ 635,000 | 0.10 KM |
| 6 Sanford Lane | £ 325,000 | 0.10 KM |