Hobart Road, Hayes, Greater London, UB4
By Stones Property
£ 232,500
Reviews
3 out of 5 stars
Stones Property says ..
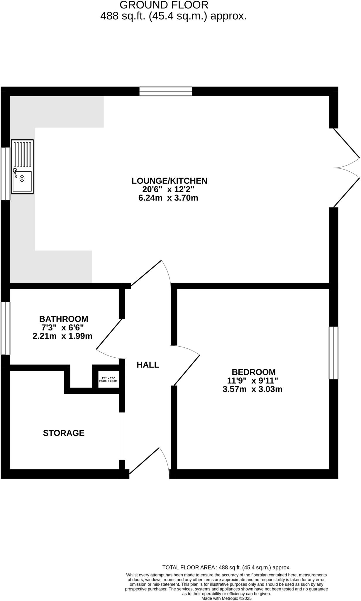
Perfectly positioned for easy access to the A40, M4, and M25, this beautifully presented one-bedroom ground floor apartment offers modern living, a long lease, and the rare benefit of its own private garden. The property features a bright and spacious lounge, a well-equipped kitchen, a...
Property Oracle says ..
This is a one-bedroom apartment in Hayes, Greater London. The property is in reasonable condition and benefits from a garden. The listing price appears to be fair for the area. Nearby schools have good Ofsted ratings. Southall is the closest train station at 2.87KM away.
Therefore, we give this property 6 / 10. *Disclaimer: This is our option and does constitute a recommendation or financial advice. Do your own research. *
- Price
- 7
- Condition
- 6
- Location
- 6
- Land
- 7
- Bedrooms
- 1
- Bathrooms
- 1
The heatmap indicates the level of crime in the area. The color of the heatmap indicates the crime severity and recency.
Metrics Year-on-Year
- Average area value
- 399,988.00 £Decreased by 10.28 %
- Average area rental value
- 2,371.00 £/moIncreased by 0.13 %
- Est rental Yield
- 7.11 %Increased by 11.62 %
- Crime Rate
- 6.00 %Unchanged by 0.00 %
Agent Activity
Stones Property created the listing.
Nearby Schools
| Name | Type | Ofsted | Distance |
|---|---|---|---|
| The Willows School | Academy Special Converter | Good | 0.44 KM |
| Brookside Primary School | Academy Sponsor Led | Good | 0.47 KM |
| Viking Primary School | Community School | Good | 0.57 KM |
| Barnhill Community High School | Academy Converter | Good | 0.87 KM |
| Academy Gardens Children'S Centre | Children's Centre | 1.02 KM |
Images
Nearby Streets
| Name | Average Price | Average Sqft | Distance |
|---|---|---|---|
| Middle Way | £ 0 | 0 | 0.00 KM |
| Eider Close | £ 525,000 | 0 | 0.00 KM |
| Bittern Close | £ 0 | 0 | 0.00 KM |
| Mandarin Way | £ 0 | 0 | 0.00 KM |
| Kennet Drive | £ 465,000 | 0 | 0.00 KM |
Nearby Transport
| Name | NLC | TLC | Distance |
|---|---|---|---|
| Southall | 3187 | STL | 2.87 KM |
| South Ruislip | 3057 | SRU | 3.29 KM |
| Hayes And Harlington | 3186 | HAY | 4.31 KM |
| Northolt Park | 1478 | NLT | 4.78 KM |
| Greenford | 3136 | GFD | 5.25 KM |
Nearby Listings
| Address | Price | Type | Score | Distance |
|---|---|---|---|---|
| Hobart Road, Hayes, Greater London, UB4 | £ 232,500 | BUY | 6 / 10 | 0.00 KM |
| Hobart Road, North Hayes | £ 235,000 | BUY | 5 / 10 | 0.01 KM |
| Hobart Road, Hayes | £ 239,950 | BUY | 5 / 10 | 0.04 KM |
| Hobart Road, Hayes | £ 500,000 | BUY | Unknown | 0.05 KM |
| Hobart Road, Hayes | £ 210,000 | BUY | 6 / 10 | 0.06 KM |
Nearby Properties
| Address | Price | Distance |
|---|---|---|
| 42 Hobart Road | £ 155,000 | 0.06 KM |
| 52 Hobart Road | £ 350,000 | 0.06 KM |
| 40 Hobart Road | £ 179,000 | 0.06 KM |
| 44 Hobart Road | £ 147,000 | 0.06 KM |
| 36 Hobart Road | £ 258,000 | 0.06 KM |