The Old Postmaster's House, East Street, Faversham
By Invicta Estate Agents
£ 160,000
Reviews
3 out of 5 stars
Invicta Estate Agents says ..
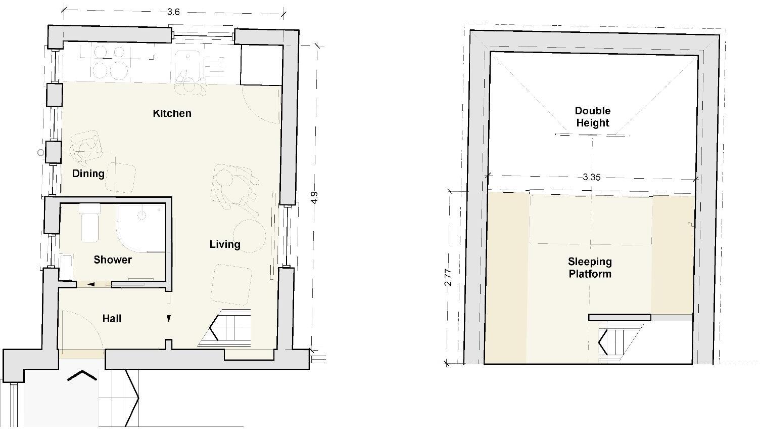
This first floor studio has been thoughtfully converted from Faversham's Victorian Postmaster's House, located in the heart of town and just a few minutes walk to the station. Finished to an excellent standard and benefitting from the use of a communal courtyard and secure bike storage.
Property Oracle says ..
The Old Postmaster’s House is a flat located on East Street in Faversham. The property benefits from its central location, offering easy access to local amenities, transportation, and schools. The flat itself appears to be in good condition, with modern fixtures and fittings. While the property doesn’t include a garden, its location and condition make it an attractive option. The asking price of £160,000 seems reasonable when compared to average property prices in the area, especially considering the recent updates and overall condition of the flat. The property is a flat so has no garden or land.
Therefore, we give this property 6 / 10. *Disclaimer: This is our option and does constitute a recommendation or financial advice. Do your own research. *
- Price
- 8
- Condition
- 8
- Location
- 7
- Land
- 1
- Bedrooms
- 1
- Bathrooms
- 0
- Sqft (est)
- 127.55
The heatmap indicates the level of crime in the area. The color of the heatmap indicates the crime severity and recency.
Metrics Year-on-Year
- Average area value
- 350,323.00 £Decreased by 1.18 %
- Est sale value
- 54,974.05 £Increased by 20.73 %
- Average area rental value
- 1,334.00 £/moDecreased by 2.49 %
- Est letting value
- 127.55 £/moUnchanged by 0.00 %
- Est rental Yield
- 4.57 %Decreased by 1.30 %
- Crime Rate
- 42.00 %Unchanged by 0.00 %
Agent Activity
Invicta Estate Agents created the listing.
Nearby Schools
| Name | Type | Ofsted | Distance |
|---|---|---|---|
| St Mary'S Children'S Centre | Children's Centre | 0.34 KM | |
| St Mary Of Charity Cofe (Aided) Primary School | Academy Sponsor Led | Outstanding | 0.44 KM |
| Queen Elizabeth'S Grammar School | Academy Converter | Outstanding | 0.48 KM |
| Davington Primary School | Community School | Good | 1.12 KM |
| Ethelbert Road Primary School | Community School | Outstanding | 1.12 KM |
Images
Nearby Streets
| Name | Average Price | Average Sqft | Distance |
|---|---|---|---|
| East Street | £ 475,000 | 0 | 0.00 KM |
| Middle Row | £ 0 | 0 | 0.00 KM |
| Shooting Meadow Path | £ 0 | 0 | 0.00 KM |
| William Street | £ 0 | 0 | 0.00 KM |
| Salmons Lane | £ 0 | 0 | 0.00 KM |
Nearby Transport
| Name | NLC | TLC | Distance |
|---|---|---|---|
| Faversham | 5167 | FAV | 0.44 KM |
| Selling | 5179 | SEG | 6.81 KM |
| Teynham | 5193 | TEY | 9.63 KM |
Nearby Listings
| Address | Price | Type | Score | Distance |
|---|---|---|---|---|
| The Old Postmaster's House, East Street, Faversham | £ 160,000 | BUY | 6 / 10 | 0.00 KM |
| Garfield Place, Faversham, ME13 | £ 180,000 | BUY | 6 / 10 | 0.04 KM |
| East Street, Faversham, ME13 | £ 240,000 | BUY | 6 / 10 | 0.05 KM |
| East Street, Faversham | £ 215,000 | BUY | 5 / 10 | 0.06 KM |
| East Street, Faversham | £ 220,000 | BUY | 7 / 10 | 0.07 KM |
Nearby Properties
| Address | Price | Distance |
|---|---|---|
| 14a East Street | £ 67,000 | 0.01 KM |
| 15 East Street | £ 138,000 | 0.01 KM |
| 8 Garfield Place | £ 139,000 | 0.03 KM |
| 2 Garfield Place | £ 131,000 | 0.03 KM |
| 4 Garfield Place | £ 180,000 | 0.03 KM |