Colleys Lane, Willaston, Nantwich, Cheshire, CW5
By Reeds Rains
£ 450,000
Reviews
3 out of 5 stars
Reeds Rains says ..
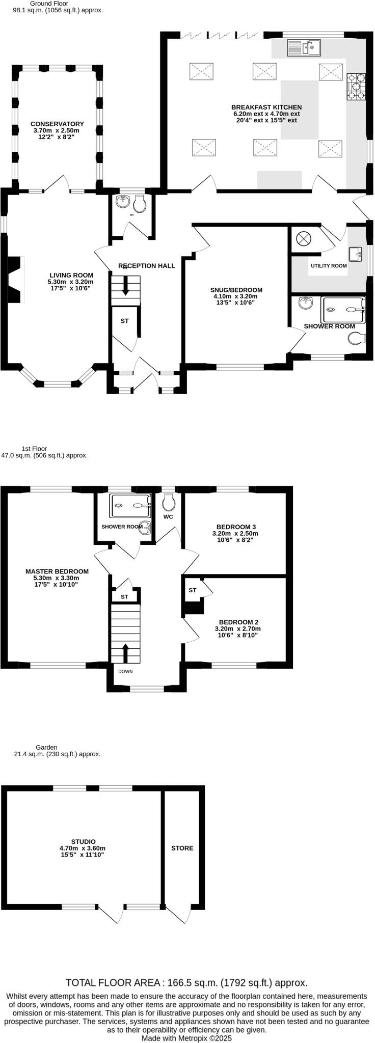
A charming period family-built home dating from the 1950s that combines character with thoughtful modernisation. At its heart lies a striking twenty-foot kitchen and family room, its vaulted ceiling and skylight windows flooding the space with light and creating an inviting setting for everyday l...
Property Oracle says ..
This is a detached property in Willaston, Nantwich, Cheshire. It has four bedrooms and two bathrooms. The property is in generally good condition, although some aspects may benefit from modernisation. The kitchen has been recently updated and looks modern. The property has a good-sized garden, with a patio area and a lawn. There is also a shed in the garden. The property is located close to local schools and shops. The property is listed for sale at £450,000.
Therefore, we give this property 7 / 10. *Disclaimer: This is our option and does constitute a recommendation or financial advice. Do your own research. *
- Price
- 6
- Condition
- 7
- Location
- 7
- Land
- 8
- Bedrooms
- 4
- Bathrooms
- 2
The heatmap indicates the level of crime in the area. The color of the heatmap indicates the crime severity and recency.
Metrics Year-on-Year
- Average area value
- 268,792.00 £Decreased by 11.42 %
- Average area rental value
- 1,600.00 £/moIncreased by 36.17 %
- Est rental Yield
- 7.14 %Increased by 53.55 %
- Crime Rate
- 10.00 %Unchanged by 0.00 %
Agent Activity
Reeds Rains created the listing.
Nearby Schools
| Name | Type | Ofsted | Distance |
|---|---|---|---|
| Willaston Primary Academy | Academy Converter | Good | 0.62 KM |
| Wistaston Church Lane Academy | Academy Converter | Good | 1.69 KM |
| Highfields Academy | Academy Converter | Good | 2.20 KM |
| Pear Tree Primary School | Academy Converter | Good | 2.38 KM |
| The Axis Academy | Free Schools Special | 2.75 KM |
Images
Nearby Streets
| Name | Average Price | Average Sqft | Distance |
|---|---|---|---|
| Crewe Road | £ 587,475 | 0 | 0.00 KM |
| Coppice Close | £ 0 | 0 | 0.00 KM |
| Arden Close | £ 631,667 | 0 | 0.00 KM |
| The Paddock | £ 575,000 | 0 | 0.00 KM |
| Balmoral Place | £ 0 | 0 | 0.00 KM |
Nearby Transport
| Name | NLC | TLC | Distance |
|---|---|---|---|
| Nantwich | 1247 | NAN | 3.40 KM |
| Crewe | 1243 | CRE | 6.55 KM |
Nearby Listings
| Address | Price | Type | Score | Distance |
|---|---|---|---|---|
| Colleys Lane, Willaston, Nantwich, Cheshire, CW5 | £ 450,000 | BUY | 7 / 10 | 0.00 KM |
| Colleys Lane, Willaston, Nantwich | £ 350,000 | BUY | Unknown | 0.04 KM |
| Colleys Lane, Willaston, Nantwich | £ 350,000 | BUY | 7 / 10 | 0.09 KM |
| Gresham, Colleys Lane, Willaston, Nantwich | £ 465,000 | BUY | 6 / 10 | 0.15 KM |
| Colleys Lane, Willaston, Nantwich, Cheshire, CW5 | £ 300,000 | BUY | 7 / 10 | 0.19 KM |
Nearby Properties
| Address | Price | Distance |
|---|---|---|
| 3 Brassey Court | £ 210,000 | 0.15 KM |
| 10 Brassey Court | £ 170,000 | 0.15 KM |
| 4 Brassey Court | £ 222,000 | 0.15 KM |
| 11 Brassey Court | £ 265,000 | 0.15 KM |
| 2 Brassey Court | £ 265,000 | 0.15 KM |