MO
Burrow Road, Folkestone, CT19
By Motis Estates
£ 175,000
Reviews
3 out of 5 stars
Motis Estates says ..
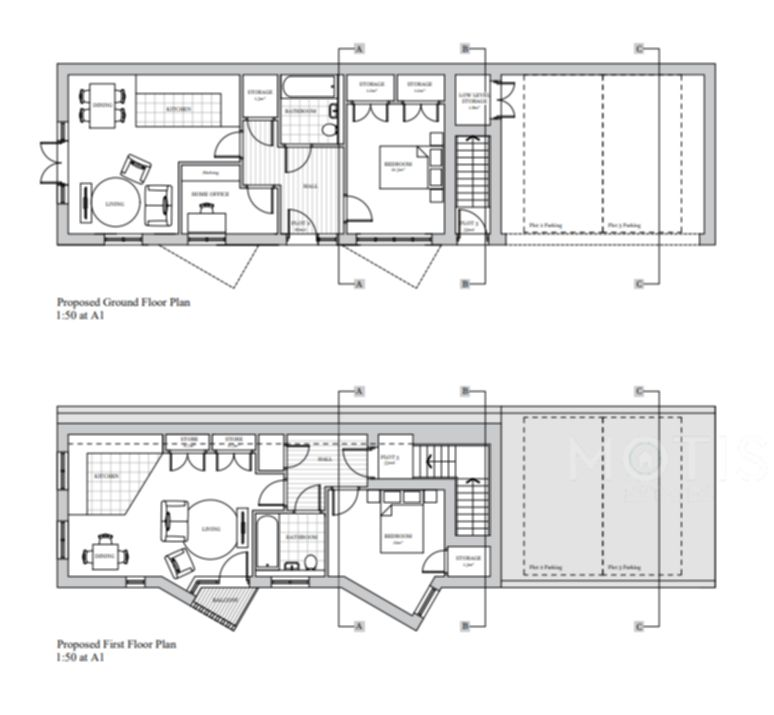
Offers in Excess of £175,000. Motis Estates are pleased to offer a Residential plot of Land in Burrow Road which has planning permission for 2 x 1 bedroom flats and a 1 x 1 bedroom house.
Property Oracle says ..
Therefore, we give this property 7 / 10. *Disclaimer: This is our option and does constitute a recommendation or financial advice. Do your own research. *
- Price
- 6
- Condition
- 0
- Location
- 8
- Land
- 7
- Bedrooms
- 3
- Bathrooms
- 0
The heatmap indicates the level of crime in the area. The color of the heatmap indicates the crime severity and recency.
Metrics Year-on-Year
- Average area value
- 496,875.00 £Increased by 49.75 %
- Average area rental value
- 750.00 £/moDecreased by 31.26 %
- Est rental Yield
- 1.81 %Decreased by 54.18 %
- Crime Rate
- 7.00 %Unchanged by 0.00 %
from 331,806.00 £
from 1,091.00 £/mo
from 3.95 %
from 7.00 %
Agent Activity
Motis Estates created the listing.
Nearby Schools
| Name | Type | Ofsted | Distance |
|---|---|---|---|
| Folkestone St. Mary'S Church Of England Primary Academy | Academy Converter | Good | 0.46 KM |
| Folkestone, St Peter'S Church Of England Primary School | Voluntary Controlled School | Good | 0.58 KM |
| The Village Children'S Centre | Children's Centre | 0.63 KM | |
| Castle Hill Community Primary School | Community School | Good | 0.70 KM |
| Martello Primary | Academy Sponsor Led | Requires improvement | 0.74 KM |
Images
Nearby Streets
| Name | Average Price | Average Sqft | Distance |
|---|---|---|---|
| Folly Road | £ 0 | 0 | 0.00 KM |
| Lawrence Court | £ 0 | 0 | 0.00 KM |
| Ash Tree Road | £ 200,000 | 0 | 0.00 KM |
| Bridge Street | £ 0 | 0 | 0.00 KM |
| Queen Street | £ 0 | 0 | 0.00 KM |
Nearby Transport
| Name | NLC | TLC | Distance |
|---|---|---|---|
| Folkestone Central | 5035 | FKC | 2.35 KM |
| Folkestone West | 5027 | FKW | 4.06 KM |
Nearby Listings
| Address | Price | Type | Score | Distance |
|---|---|---|---|---|
| Burrow Road, Folkestone, CT19 | £ 175,000 | BUY | 7 / 10 | 0.00 KM |
| Burrow Road, Folkestone, CT19 | £ 240,000 | BUY | 7 / 10 | 0.03 KM |
| Warren Road, Folkestone, Kent, CT19 | £ 350,000 | BUY | 8 / 10 | 0.08 KM |
| Burrow Road, Folkestone, CT19 | £ 270,000 | BUY | 7 / 10 | 0.10 KM |
| Burrow Road, Folkestone, Kent | £ 240,000 | BUY | 6 / 10 | 0.10 KM |
Nearby Properties
| Address | Price | Distance |
|---|---|---|
| 59 Burrow Road | £ 235,000 | 0.04 KM |
| 51 Burrow Road | £ 190,000 | 0.04 KM |
| 61 Burrow Road | £ 177,500 | 0.04 KM |
| 49 Burrow Road | £ 167,500 | 0.04 KM |
| 36 Burrow Road | £ 180,000 | 0.04 KM |