Symonds & Greenham says ..
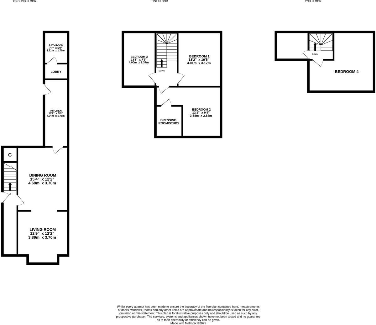
FOUR BED TERRACED - POPULAR LOCATION - CLOSE TO AMENITIES - SPACIOUS THROUGHOUT - SCOPE FOR REFURBISHMENT TO MODERN STANDARDS Situated on Hull Road in Hessle, a popular and convenient location close to shops, schools and transport links, this four bedroom terraced home presents a fa...
Property Oracle says ..
This end-of-terrace property on Hull Road, Hessle, presents a significant opportunity for renovation. While the location is advantageous due to its proximity to schools and transport links, the property’s interior condition requires extensive work. The garden offers potential, but needs landscaping. The asking price of £150,000 reflects the need for renovation and could represent good value for the right buyer willing to invest in improvements. The property has 4 bedrooms and 1 bathroom.
Therefore, we give this property 5 / 10. *Disclaimer: This is our option and does constitute a recommendation or financial advice. Do your own research. *
- Price
- 7
- Condition
- 3
- Location
- 7
- Land
- 6
- Bedrooms
- 4
- Bathrooms
- 1
- Sqft (est)
- 296.12
The heatmap indicates the level of crime in the area. The color of the heatmap indicates the crime severity and recency.
Metrics Year-on-Year
- Average area value
- 248,204.00 £Increased by 8.18 %
- Est sale value
- 86,170.92 £Increased by 35.98 %
- Average area rental value
- 961.00 £/moIncreased by 12.27 %
- Est letting value
- 296.12 £/mo
- Est rental Yield
- 4.65 %Increased by 3.79 %
- Crime Rate
- 12.00 %Unchanged by 0.00 %
Agent Activity
Symonds & Greenham created the listing.
Nearby Schools
| Name | Type | Ofsted | Distance |
|---|---|---|---|
| Sure Start Children'S Centre Hessle | Children's Centre | 0.40 KM | |
| All Saints Church Of England Infant Academy | Academy Converter | 0.66 KM | |
| All Saints Church Of England Junior Academy | Academy Converter | 0.66 KM | |
| Christopher Pickering Primary School | Academy Converter | Good | 1.45 KM |
| Windmill Children'S Centre | Children's Centre Linked Site | 1.45 KM |
Images
Nearby Streets
| Name | Average Price | Average Sqft | Distance |
|---|---|---|---|
| Mollison Road West | £ 210,000 | 0 | 0.00 KM |
| Kingston Avenue | £ 0 | 0 | 0.00 KM |
| Woolwich Drive | £ 0 | 0 | 0.00 KM |
| Doon Garth | £ 120,000 | 0 | 0.00 KM |
| Orchard Drive | £ 0 | 0 | 0.00 KM |
Nearby Transport
| Name | NLC | TLC | Distance |
|---|---|---|---|
| Hessle | 8067 | HES | 2.08 KM |
| Barton-On-Humber | 6207 | BAU | 4.45 KM |
| Barrow Haven | 6212 | BAV | 4.56 KM |
| Cottingham | 8056 | CGM | 6.70 KM |
| New Holland | 6209 | NHL | 7.50 KM |
Nearby Listings
| Address | Price | Type | Score | Distance |
|---|---|---|---|---|
| Hull Road, Hessle | £ 150,000 | BUY | 5 / 10 | 0.00 KM |
| Hull Road, Hessle | £ 130,000 | BUY | 5 / 10 | 0.01 KM |
| Cardinal Walk, Hessle | £ 240,000 | BUY | Unknown | 0.12 KM |
| Green Lane, Hessle | £ 180,000 | BUY | Unknown | 0.13 KM |
| Bishop Cockin Close, Hessle, East Riding of Yorkshire, HU13 | £ 165,000 | BUY | 6 / 10 | 0.14 KM |
Nearby Properties
| Address | Price | Distance |
|---|---|---|
| 5 Bishop Cockin Close | £ 136,500 | 0.14 KM |
| 18 Chapel Close | £ 122,500 | 0.14 KM |
| 15 Chapel Close | £ 129,000 | 0.14 KM |
| 9 Chapel Close | £ 125,000 | 0.14 KM |
| 3 Chapel Close | £ 143,000 | 0.14 KM |