FL
Ffordd Naddyn, Glan Conwy
By Fletcher & Poole
£ 260,000
Reviews
3 out of 5 stars
Fletcher & Poole says ..
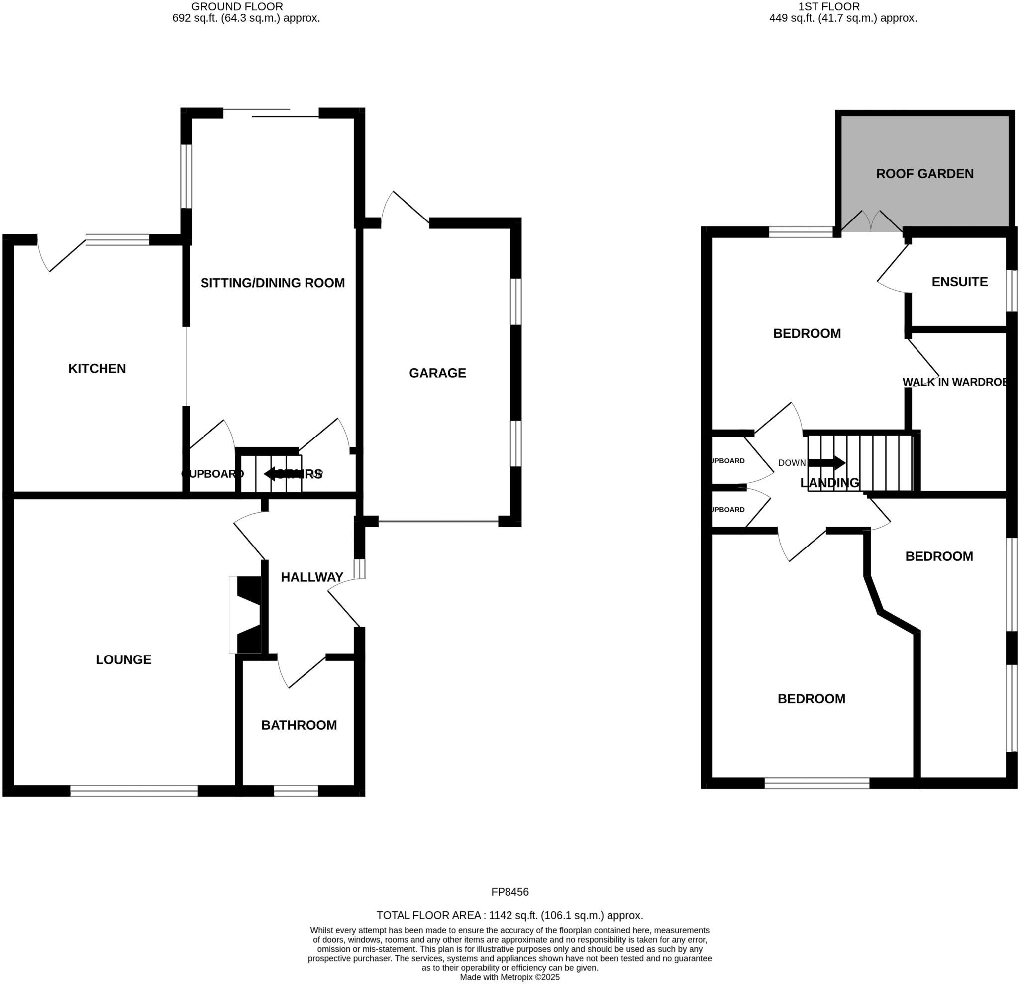
This three bedroom detached home enjoys light and spacious accommodation and benefits from an extension to the rear. The property is located on a popular residential development within walking distance to the primary school and shops. The accommodation comprises: Entrance hall, lounge with log bu...
Property Oracle says ..
Therefore, we give this property 7 / 10. *Disclaimer: This is our option and does constitute a recommendation or financial advice. Do your own research. *
- Price
- 9
- Condition
- 8
- Location
- 7
- Land
- 7
- Bedrooms
- 3
- Bathrooms
- 2
- Sqft (est)
- 1,142.00
The heatmap indicates the level of crime in the area. The color of the heatmap indicates the crime severity and recency.
Metrics Year-on-Year
- Average area value
- 480,310.00 £Increased by 36.32 %
- Est sale value
- 200,992.00 £Decreased by 48.54 %
- Average area rental value
- 895.00 £/moIncreased by 8.48 %
- Est letting value
- 0.00 £/mo
- Est rental Yield
- 2.24 %Decreased by 20.28 %
- Crime Rate
- 32.00 %Unchanged by 0.00 %
from 352,350.00 £
from 390,564.00 £
from 825.00 £/mo
from 0.00 £/mo
from 2.81 %
from 32.00 %
Agent Activity
Fletcher & Poole created the listing.
Nearby Schools
| Name | Type | Ofsted | Distance |
|---|---|---|---|
| Ysgol Glan Conwy | Welsh Establishment | 0.24 KM | |
| Ysgol Deganwy | Welsh Establishment | 4.08 KM | |
| Ysgol Porth Y Felin | Welsh Establishment | 4.32 KM | |
| Mochdre Infants C.P. School | Welsh Establishment | 4.54 KM | |
| Ysgol Cystennin | Welsh Establishment | 4.85 KM |
Images
Nearby Streets
| Name | Average Price | Average Sqft | Distance |
|---|---|---|---|
| Glan Yr Aber | £ 0 | 0 | 0.00 KM |
| Graig | £ 0 | 0 | 0.00 KM |
| Council Houses | £ 450,000 | 0 | 0.00 KM |
| Fford 6G Road | £ 0 | 0 | 0.00 KM |
Nearby Transport
| Name | NLC | TLC | Distance |
|---|---|---|---|
| Glan Conwy | 2454 | GCW | 0.28 KM |
| Llandudno Junction | 2485 | LLJ | 2.50 KM |
| Conwy | 2486 | CNW | 4.13 KM |
| Tal-Y-Cafn | 2463 | TLC | 4.79 KM |
| Deganwy | 2480 | DGY | 5.24 KM |
Nearby Listings
| Address | Price | Type | Score | Distance |
|---|---|---|---|---|
| Ffordd Naddyn, Glan Conwy | £ 260,000 | BUY | 7 / 10 | 0.00 KM |
| Ffordd Naddyn, Glan Conwy | £ 360,000 | BUY | 7 / 10 | 0.00 KM |
| Ffordd Naddyn, Glan Conwy, LL28 | £ 350,000 | BUY | Unknown | 0.00 KM |
| Ffordd Naddyn, Glan Conwy, Colwyn Bay, LL28 5NH | £ 250,000 | BUY | 7 / 10 | 0.00 KM |
| Ffordd Naddyn, Colwyn Bay, LL28 5NH | £ 280,000 | BUY | 7 / 10 | 0.01 KM |
Nearby Properties
| Address | Price | Distance |
|---|---|---|
| 18 Ffordd Naddyn | £ 160,000 | 0.01 KM |
| 42 Ffordd Naddyn | £ 150,000 | 0.01 KM |
| 60 Ffordd Naddyn | £ 136,000 | 0.01 KM |
| 29 Ffordd Naddyn | £ 49,750 | 0.01 KM |
| 11 Ffordd Naddyn | £ 163,000 | 0.01 KM |