Vicinity Homes says ..
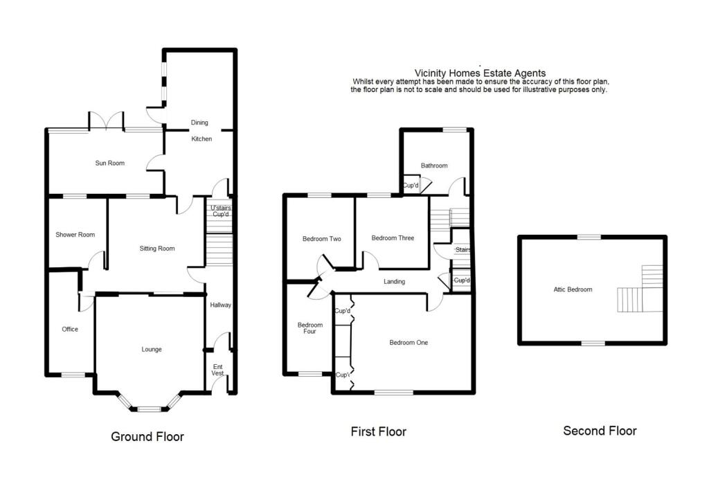
Vicinity Homes are delighted to offer to the market this deceptively spacious, bay fronted, five bedroom mid terrace house situated within a popular residential area to the South of Carlisle City Centre. The property is close to a range of local amenities, regular bus route, popular Primary & Sec...
Property Oracle says ..
This property is a 5 bedroom, 2 bathroom terraced house located in Carlisle, Cumbria. The property benefits from a good sized garden, and appears to be well maintained and presented. There are several good schools nearby including The Bishop Harvey Goodwin School and Gillford Centre, both rated as ‘Good’ by Ofsted. Carlisle train station is also within a reasonable distance. While the square footage is not provided, the list price of £190,000 seems reasonable compared to similar properties in the area, considering the number of bedrooms and the garden.
Therefore, we give this property 7 / 10. *Disclaimer: This is our option and does constitute a recommendation or financial advice. Do your own research. *
- Price
- 7
- Condition
- 8
- Location
- 7
- Land
- 7
- Bedrooms
- 5
- Bathrooms
- 2
The heatmap indicates the level of crime in the area. The color of the heatmap indicates the crime severity and recency.
Metrics Year-on-Year
- Average area value
- 282,389.00 £Decreased by 5.89 %
- Average area rental value
- 1,083.00 £/moDecreased by 11.16 %
- Est rental Yield
- 4.60 %Decreased by 5.74 %
- Crime Rate
- 7.00 %Unchanged by 0.00 %
Agent Activity
Vicinity Homes created the listing.
Nearby Schools
| Name | Type | Ofsted | Distance |
|---|---|---|---|
| The Bishop Harvey Goodwin School (Church Of England Voluntary Aided) | Voluntary Aided School | Good | 0.22 KM |
| St Margaret Mary Catholic Primary School, Carlisle | Academy Converter | 0.46 KM | |
| Gillford Centre | Pupil Referral Unit | Good | 0.55 KM |
| Upperby Primary School | Community School | Requires improvement | 0.76 KM |
| Brook Street Primary School | Community School | Good | 1.23 KM |
Images
Nearby Streets
| Name | Average Price | Average Sqft | Distance |
|---|---|---|---|
| Grierson Road | £ 0 | 0 | 0.00 KM |
| Bourne Lea Close | £ 0 | 0 | 0.00 KM |
| Nursery Road | £ 0 | 0 | 0.00 KM |
| Harraby Street | £ 132,500 | 0 | 0.00 KM |
| Brook Street | £ 0 | 0 | 0.00 KM |
Nearby Transport
| Name | NLC | TLC | Distance |
|---|---|---|---|
| Carlisle | 2118 | CAR | 1.41 KM |
| Dalston (Cumbria) | 2077 | DLS | 7.72 KM |
Nearby Listings
| Address | Price | Type | Score | Distance |
|---|---|---|---|---|
| Boundary Road, Carlisle | £ 190,000 | BUY | 7 / 10 | 0.00 KM |
| Scalegate Road, Upperby, Carlisle, CA2 | £ 132,500 | BUY | 6 / 10 | 0.11 KM |
| Millbank Court, Carlisle | £ 130,000 | BUY | Unknown | 0.11 KM |
| Millholme Avenue, Carlisle | £ 110,000 | BUY | 6 / 10 | 0.14 KM |
| Millholme Avenue, Carlisle, CA2 | £ 78,000 | BUY | 5 / 10 | 0.15 KM |
Nearby Properties
| Address | Price | Distance |
|---|---|---|
| 106 Boundary Road | £ 120,000 | 0.02 KM |
| 100 Boundary Road | £ 120,000 | 0.02 KM |
| 104 Boundary Road | £ 125,000 | 0.02 KM |
| 90 Boundary Road | £ 150,250 | 0.02 KM |
| 114 Boundary Road | £ 128,000 | 0.02 KM |