MI
Fir Tree Close, Ramsgate, CT11
By Miles & Barr
£ 269,995
Reviews
3 out of 5 stars
Miles & Barr says ..
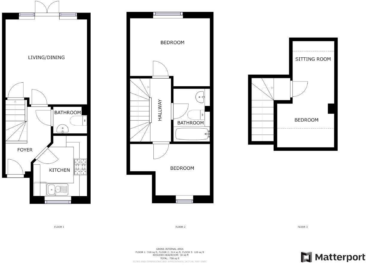
NO FORWARD CHAIN - IDEAL FIRST TIME BUY OR INVESTMENT PTPERTY Located in a central position just moments away from St Lawrence high street and Ramsgate railway station, this charming three-bedroom mid-terraced property offers a convenient lifestyle with the added benefit of no forward ...
Property Oracle says ..
Therefore, we give this property 7 / 10. *Disclaimer: This is our option and does constitute a recommendation or financial advice. Do your own research. *
- Price
- 8
- Condition
- 6
- Location
- 7
- Land
- 7
- Bedrooms
- 3
- Bathrooms
- 1
- Sqft (est)
- 828.00
- Lot (est)
- 758.00
The heatmap indicates the level of crime in the area. The color of the heatmap indicates the crime severity and recency.
Metrics Year-on-Year
- Average area value
- 279,983.00 £Decreased by 14.38 %
- Est sale value
- 262,476.00 £Increased by 13.62 %
- Average area rental value
- 1,013.00 £/moDecreased by 7.91 %
- Est letting value
- 828.00 £/mo
- Est rental Yield
- 4.34 %Increased by 7.43 %
- Crime Rate
- 14.00 %Unchanged by 0.00 %
from 327,013.00 £
from 231,012.00 £
from 1,100.00 £/mo
from 0.00 £/mo
from 4.04 %
from 14.00 %
Agent Activity
Miles & Barr created the listing.
Nearby Schools
| Name | Type | Ofsted | Distance |
|---|---|---|---|
| Ellington Infant School | Community School | Good | 0.36 KM |
| St Laurence In Thanet Church Of England Junior Academy | Academy Sponsor Led | Good | 0.54 KM |
| Christ Church Church Of England Junior School, Ramsgate | Academy Sponsor Led | Good | 0.65 KM |
| Priory Infant School | Community School | Good | 1.16 KM |
| Ramsgate Arts Primary School | Free Schools | Good | 1.18 KM |
Images
Nearby Streets
| Name | Average Price | Average Sqft | Distance |
|---|---|---|---|
| Mays Road | £ 0 | 0 | 0.00 KM |
| Old School Row | £ 380,000 | 0 | 0.00 KM |
| Ellington Road | £ 265,000 | 0 | 0.00 KM |
| Ellington Place | £ 0 | 0 | 0.00 KM |
| Park View | £ 375,000 | 0 | 0.00 KM |
Nearby Transport
| Name | NLC | TLC | Distance |
|---|---|---|---|
| Ramsgate | 5023 | RAM | 0.84 KM |
| Dumpton Park | 5034 | DMP | 2.91 KM |
| Broadstairs | 5006 | BSR | 4.54 KM |
| Margate | 5018 | MAR | 6.53 KM |
| Westgate-On-Sea | 5195 | WGA | 8.73 KM |
Nearby Listings
| Address | Price | Type | Score | Distance |
|---|---|---|---|---|
| Fir Tree Close, Ramsgate, CT11 | £ 269,995 | BUY | 7 / 10 | 0.00 KM |
| Fir Tree Close, Ramsgate, CT11 0BU | £ 260,000 | BUY | 6 / 10 | 0.00 KM |
| Weigall Place, Ramsgate, CT11 0BF | £ 250,000 | BUY | 6 / 10 | 0.02 KM |
| Weigall Place, Ramsgate | £ 270,000 | BUY | 7 / 10 | 0.03 KM |
| Southwood Road, Ramsgate, CT11 0AZ | £ 220,000 | BUY | 5 / 10 | 0.06 KM |
Nearby Properties
| Address | Price | Distance |
|---|---|---|
| 8 Weigall Place | £ 218,800 | 0.04 KM |
| 1 Weigall Place | £ 66,000 | 0.04 KM |
| 2 Weigall Place | £ 155,000 | 0.04 KM |
| 7 Weigall Place | £ 265,000 | 0.04 KM |
| 4 Weigall Place | £ 163,395 | 0.04 KM |