Manor Road, Stechford, Birmingham, West Midlands, B33
By Murray Rogers
£ 240,000
Reviews
2 out of 5 stars
Murray Rogers says ..
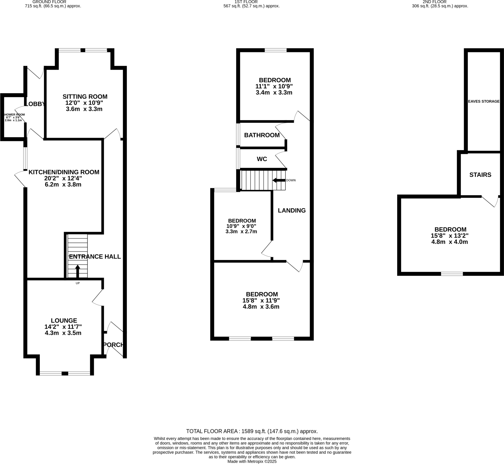
Ideal for a large A generous size FOUR bedroom semi detached in need of some modernisation. The property is well laid out with TWO reception rooms, good sized dining kitchen, ground floor wet room on the ground floor. The first floor consists of three bedrooms, WC and a family bathroo...
Property Oracle says ..
Therefore, we give this property 5 / 10. *Disclaimer: This is our option and does constitute a recommendation or financial advice. Do your own research. *
- Price
- 5
- Condition
- 2
- Location
- 7
- Land
- 6
- Bedrooms
- 4
- Bathrooms
- 2
The heatmap indicates the level of crime in the area. The color of the heatmap indicates the crime severity and recency.
Metrics Year-on-Year
- Average area value
- 210,398.00 £Decreased by 9.64 %
- Average area rental value
- 1,204.00 £/moIncreased by 43.33 %
- Est rental Yield
- 6.87 %Increased by 58.66 %
- Crime Rate
- 6.00 %Unchanged by 0.00 %
from 232,840.00 £
from 840.00 £/mo
from 4.33 %
from 6.00 %
Agent Activity
Murray Rogers created the listing.
Nearby Schools
| Name | Type | Ofsted | Distance |
|---|---|---|---|
| The Oval School | Academy Converter | Good | 0.78 KM |
| Audley Primary School | Academy Converter | Requires improvement | 0.97 KM |
| Colebourne Primary School | Community School | Good | 1.19 KM |
| Corpus Christi Catholic Primary School | Voluntary Aided School | Good | 1.20 KM |
| Beaufort School | Community Special School | Outstanding | 1.25 KM |
Images
Nearby Streets
| Name | Average Price | Average Sqft | Distance |
|---|---|---|---|
| Flaxley Close | £ 110,000 | 0 | 0.00 KM |
| Avocet Close | £ 122,500 | 0 | 0.00 KM |
| Rosemary Road | £ 147,500 | 0 | 0.00 KM |
| Cuckoo Close | £ 0 | 0 | 0.00 KM |
| Shaw Drive | £ 210,000 | 0 | 0.00 KM |
Nearby Transport
| Name | NLC | TLC | Distance |
|---|---|---|---|
| Stechford | 1043 | SCF | 0.99 KM |
| Lea Hall | 1133 | LEH | 1.82 KM |
| Acocks Green | 4529 | ACG | 4.25 KM |
| Olton | 4533 | OLT | 5.03 KM |
| Tyseley | 4518 | TYS | 5.24 KM |
Nearby Listings
| Address | Price | Type | Score | Distance |
|---|---|---|---|---|
| Manor Road, Stechford, Birmingham, West Midlands, B33 | £ 240,000 | BUY | 5 / 10 | 0.00 KM |
| Manor Road, Stechford, Birmingham, West Midlands, B33 | £ 240,000 | BUY | 4 / 10 | 0.00 KM |
| Manor Road, Stechford, Birmingham, West Midlands, B33 | £ 280,000 | BUY | Unknown | 0.07 KM |
| Manor Road, Stechford, Birmingham, B33 | £ 270,000 | BUY | 7 / 10 | 0.10 KM |
| Manor Road, Stechford, Birmingham | £ 280,000 | BUY | 7 / 10 | 0.11 KM |
Nearby Properties
| Address | Price | Distance |
|---|---|---|
| 32 Bagshaw Road | £ 112,500 | 0.07 KM |
| 9 Bagshaw Road | £ 116,000 | 0.07 KM |
| 11 Bagshaw Road | £ 148,000 | 0.07 KM |
| 34 Bagshaw Road | £ 68,000 | 0.07 KM |
| 143 Manor Road | £ 190,000 | 0.11 KM |