Seven Kings Road, Seven Kings, IG3
By Wentworth Estates
£ 600,000
Reviews
3 out of 5 stars
Wentworth Estates says ..
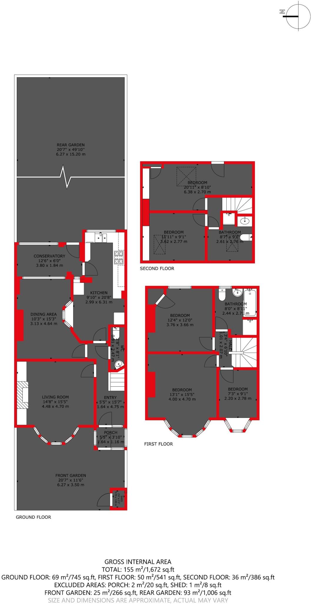
Set behind a well-established stretch of Seven Kings Road, this impressive five/six bedroom family home unfolds across three well-proportioned floors, offering generous living space, excellent flexibility and a layout perfectly suited to modern family life. From the moment you enter, the prope...
Property Oracle says ..
This is a five-bedroom house located on Seven Kings Road, Goodmayes, Redbridge. The property offers a substantial living space of 1,668.41 sqft and includes three bathrooms. While the location benefits from proximity to schools and transportation links, the property itself is in need of some modernisation. The garden provides a decent outdoor space. The asking price of £600,000 seems reasonable given the size and location, but potential buyers should factor in the cost of renovations.
Therefore, we give this property 6 / 10. *Disclaimer: This is our option and does constitute a recommendation or financial advice. Do your own research. *
- Price
- 7
- Condition
- 5
- Location
- 7
- Land
- 7
- Bedrooms
- 5
- Bathrooms
- 3
- Sqft (est)
- 1,668.41
The heatmap indicates the level of crime in the area. The color of the heatmap indicates the crime severity and recency.
Metrics Year-on-Year
- Average area value
- 461,536.00 £Increased by 7.27 %
- Est sale value
- 1,097,813.78 £Increased by 43.04 %
- Average area rental value
- 1,399.00 £/moDecreased by 22.32 %
- Est letting value
- 1,668.41 £/moUnchanged by 0.00 %
- Est rental Yield
- 3.64 %Decreased by 27.49 %
- Crime Rate
- 8.00 %Unchanged by 0.00 %
Agent Activity
Wentworth Estates created the listing.
Nearby Schools
| Name | Type | Ofsted | Distance |
|---|---|---|---|
| South Park Primary School | Community School | Good | 0.49 KM |
| The Palmer Catholic Academy | Academy Converter | Good | 0.56 KM |
| Oak House School | Other Independent Special School | Good | 0.73 KM |
| Ark Isaac Newton Academy | Academy Sponsor Led | Outstanding | 0.79 KM |
| Downshall Primary School | Community School | Good | 1.00 KM |
Images
Nearby Streets
| Name | Average Price | Average Sqft | Distance |
|---|---|---|---|
| Reigate Road | £ 0 | 0 | 0.00 KM |
| Aldborough Road South | £ 300,000 | 0 | 0.00 KM |
| Granton Road | £ 0 | 0 | 0.00 KM |
| Holly Lane | £ 0 | 0 | 0.00 KM |
| Melford Road | £ 0 | 0 | 0.00 KM |
Nearby Transport
| Name | NLC | TLC | Distance |
|---|---|---|---|
| Seven Kings | 6893 | SVK | 0.31 KM |
| Goodmayes | 6878 | GMY | 1.35 KM |
| Barking | 7492 | BKG | 3.22 KM |
| Ilford | 6881 | IFD | 3.27 KM |
| Chadwell Heath | 6874 | CTH | 3.37 KM |
Nearby Listings
| Address | Price | Type | Score | Distance |
|---|---|---|---|---|
| Seven Kings Road, Seven Kings, IG3 | £ 600,000 | BUY | 6 / 10 | 0.00 KM |
| Seven Kings Road, Seven Kings | £ 370,000 | BUY | 6 / 10 | 0.01 KM |
| Seven Kings Road, Ilford | £ 600,000 | BUY | 7 / 10 | 0.04 KM |
| Haslemere Road, Seven Kings | £ 245,000 | BUY | 4 / 10 | 0.07 KM |
| Haslemere Road, Ilford | £ 525,000 | BUY | 6 / 10 | 0.11 KM |
Nearby Properties
| Address | Price | Distance |
|---|---|---|
| 37 Seven Kings Road | £ 443,000 | 0.01 KM |
| 49 Seven Kings Road | £ 119,995 | 0.01 KM |
| 38 Seven Kings Road | £ 63,000 | 0.01 KM |
| 31a Seven Kings Road | £ 50,000 | 0.01 KM |
| 13 Seven Kings Road | £ 585,000 | 0.01 KM |