Colemans Hatch, Hartfield, East Sussex
FI

Colemans Hatch, Hartfield, East Sussex

By Fine & Country

£ 2,350,000

Reviews

3 out of 5 stars

Fine & Country says ..

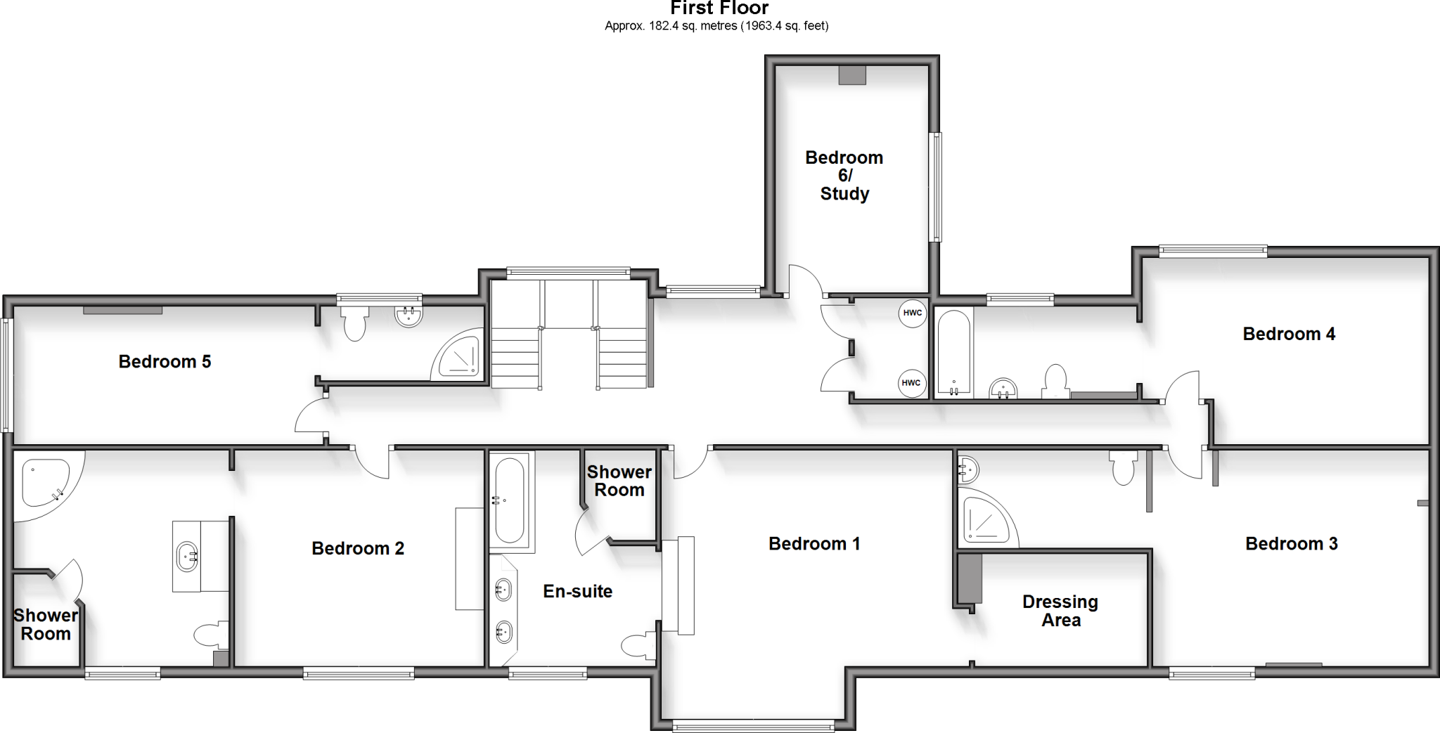
A charming and elegant home with 1920's origins delightful gardens with tennis court and gateway with access to wonderful Ashdown Forest. Quiet tucked away location at the end of the lane with gated access to ample parking and triple garage.

Property Oracle says ..

This property is a charming and elegant home with 1920’s origins, delightful gardens with a tennis court and gated access to ample parking and a triple garage. The location is quiet and tucked away at the end of a lane, offering privacy and seclusion. The property appears to be in good condition, well-maintained, and tastefully decorated. The list price is significantly higher than the average price for the area, but this is likely due to the unique features of the property, such as the large garden and tennis court, which are not reflected in the average price per square foot. The relatively small size of the property (675 sqft) compared to the average (1640 sqft) may also contribute to the higher price per square foot.

Therefore, we give this property 7 / 10. *Disclaimer: This is our option and does constitute a recommendation or financial advice. Do your own research. *

Price
4
Condition
8
Location
7
Land
9
Bedrooms
6
Bathrooms
5
Sqft (est)
675.00

The heatmap indicates the level of crime in the area. The color of the heatmap indicates the crime severity and recency.

Metrics Year-on-Year

Average area value
1,207,092.00 £
Decreased by 4.26 %
from 1,260,761.00 £
Est sale value
446,175.00 £
Increased by 27.12 %
from 351,000.00 £
Average area rental value
2,683.00 £/mo
Decreased by 58.69 %
from 6,495.00 £/mo
Est letting value
675.00 £/mo
Decreased by 50.00 %
from 1,350.00 £/mo
Est rental Yield
2.67 %
Decreased by 56.80 %
from 6.18 %
Crime Rate
9.00 %
Unchanged by 0.00 %
from 9.00 %

Agent Activity

  • Fine & Country created the listing.

Nearby Schools

NameTypeOfstedDistance
St Mary The Virgin Church Of England Primary SchoolVoluntary Aided SchoolGood2.32 KM
St Michael'S Primary SchoolCommunity SchoolGood5.26 KM
Forest Row Church Of England Primary SchoolVoluntary Controlled SchoolGood6.13 KM
St John'S Church Of England Primary SchoolVoluntary Aided SchoolGood6.59 KM
Ashurst Wood Primary SchoolCommunity SchoolGood7.12 KM

Images

Bedroom 6/ Study Bathroom Internal Lifestyle Photograph Bedroom 2 En-Suite Bedroom 3 External Lifestyle Photograph External Front Garden Views To Rear Living Room Drawing Room Drawing Room External Kitchen Kitchen Dining Room Dining Room Living Room Living Room Drawing Room Drawing Room Entrance Hall Entrance Hall Internal Lifestyle Photograph Bedroom 4 Bedroom 5 En-Suite External Lifestyle Photograph Rear Garden Rear Garden

Nearby Streets

NameAverage PriceAverage SqftDistance
Landhurst £ 1,250,00000.00 KM
Oaklea Court £ 200,00000.00 KM
Stairs Barn £ 683,33300.00 KM

Nearby Transport

NameNLCTLCDistance
Cowden (Kent)5409CWN7.21 KM
Ashurst (Kent)5398AHS7.67 KM
Hever5417HEV9.83 KM

Nearby Listings

AddressPriceTypeScoreDistance
Gallipot Hill, Upper Hartfield, TN7 £ 1,200,000BUY8 / 100.05 KM
Gallipot Hill, Upper Hartfield, Hartfield, East Sussex £ 725,000BUY6 / 100.16 KM
Ryedale, Gallipot Hill, Hartfield, TN7 £ 1,025,000BUY8 / 100.18 KM
Cat Street, Upper Hartfield, Hartfield, East Sussex, TN7 £ 400,000BUY7 / 100.20 KM
Parrock Lane, Upper Hartfield, TN7 £ 625,000BUY7 / 100.42 KM

Nearby Properties

AddressPriceDistance
9 Gallipot Hill £ 620,0000.12 KM
Lansdowne £ 585,0000.24 KM
The Nook £ 250,0000.24 KM
Two Down £ 458,0000.24 KM
Hill House £ 160,0000.38 KM