Lidstone Close, Woking, Surrey, GU21
Seymours Estate Agents logo

Lidstone Close, Woking, Surrey, GU21

By Seymours Estate Agents

£ 400,000

Reviews

3 out of 5 stars

Seymours Estate Agents says ..

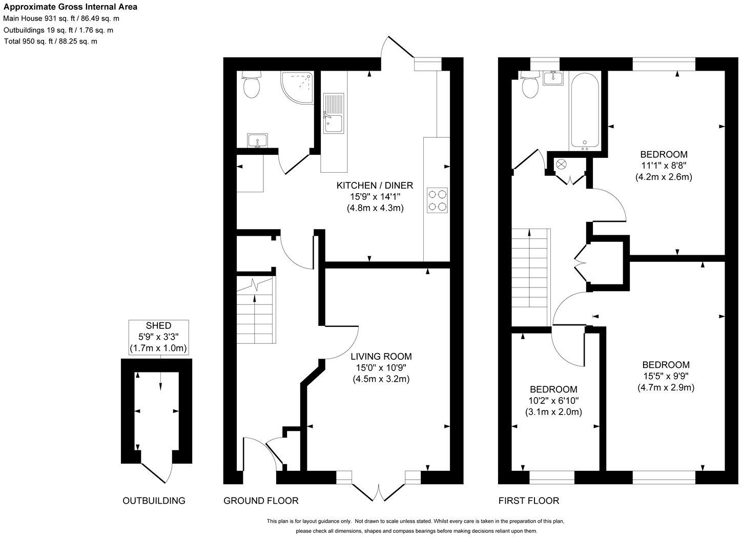
Well-presented terraced family home conveniently positioned in a popular cul-de-sac that offers excellent access to Goldsworth Park Lake and shops as well as a walking distance to Woking Town Centre and Mainline Station. This light and bright accommodation offers three good size bedrooms, rear as...

Property Oracle says ..

This three-bedroom terraced house in Woking is listed at £400,000. The property benefits from a good-sized rear garden, which is a valuable asset in a built-up area. While the property shows signs of wear and tear and may require some modernisation to suit individual tastes, it is generally well-maintained and in a habitable condition. The location in Goldsworth Park offers proximity to local schools and transportation links, making it convenient for families and commuters. The average house price in the area is £407,969, and the average price per square foot is £466. Considering the property’s size (949.92 sqft) and the average price per sqft, the listed price appears to be in line with the local market. However, a detailed survey would be recommended to assess any potential maintenance or repair needs that could affect the overall value.

Therefore, we give this property 6 / 10. *Disclaimer: This is our option and does constitute a recommendation or financial advice. Do your own research. *

Price
7
Condition
6
Location
7
Land
7
Bedrooms
3
Bathrooms
2
Sqft (est)
949.92

The heatmap indicates the level of crime in the area. The color of the heatmap indicates the crime severity and recency.

Metrics Year-on-Year

Average area value
350,000.00 £
Decreased by 4.27 %
from 365,615.00 £
Est sale value
665,893.92 £
Increased by 53.39 %
from 434,113.44 £
Average area rental value
2,283.00 £/mo
Increased by 41.19 %
from 1,617.00 £/mo
Est letting value
3,799.68 £/mo
Increased by 100.00 %
from 1,899.84 £/mo
Est rental Yield
7.83 %
Increased by 47.46 %
from 5.31 %
Crime Rate
24.00 %
Unchanged by 0.00 %
from 24.00 %

Agent Activity

  • Seymours Estate Agents created the listing.

Nearby Schools

NameTypeOfstedDistance
Sythwood Sure Start Children'S CentreChildren's Centre0.30 KM
Sythwood Primary SchoolAcademy ConverterGood0.34 KM
Goldsworth Primary SchoolAcademy Converter1.08 KM
Horsell Cofe Aided Junior SchoolVoluntary Aided SchoolGood1.18 KM
The Horsell Village SchoolAcademy Converter1.44 KM

Images

Picture No. 03 Picture No. 15 Picture No. 10 Picture No. 19 Picture No. 04 Picture No. 07 Picture No. 06 Picture No. 08 Picture No. 09 Picture No. 11 Picture No. 05 Picture No. 13 Picture No. 12 Picture No. 14 Picture No. 16 Picture No. 20 Picture No. 21 Picture No. 23 Picture No. 22 Picture No. 24 Picture No. 25

Nearby Streets

NameAverage PriceAverage SqftDistance
Eastmead Connector £ 000.00 KM
Parley Drive £ 000.00 KM
Russell Close £ 535,00000.00 KM
Julian Close £ 000.00 KM
Prestbury Court £ 000.00 KM

Nearby Transport

NameNLCTLCDistance
Woking5685WOK3.04 KM
Worplesdon5686WPL3.47 KM
Brookwood5687BKO5.96 KM
Longcross5674LNG7.33 KM
West Byfleet5684WBY8.99 KM

Nearby Listings

AddressPriceTypeScoreDistance
Lidstone Close, Woking, Surrey, GU21 £ 400,000BUY6 / 100.00 KM
Quintrell Close, Woking, Surrey, GU21 £ 425,000BUYUnknown0.05 KM
Quintrell Close, Woking, Surrey, Surrey, GU21 £ 375,000BUY7 / 100.09 KM
Roffords, Woking, GU21 £ 450,000BUY7 / 100.10 KM
Frenchs Wells, Goldsworth Park, Woking, Surrey, GU21 £ 360,000BUYUnknown0.11 KM

Nearby Properties

AddressPriceDistance
43 Lidstone Close £ 225,0000.00 KM
33 Lidstone Close £ 345,0000.00 KM
7 Lidstone Close £ 209,9500.00 KM
16 Lidstone Close £ 160,0000.00 KM
1 Lidstone Close £ 260,0000.00 KM