Brook Vale, Chatsworth Road, Chesterfield
By Wilkins Vardy Residential
£ 130,000
Reviews
3 out of 5 stars
Wilkins Vardy Residential says ..
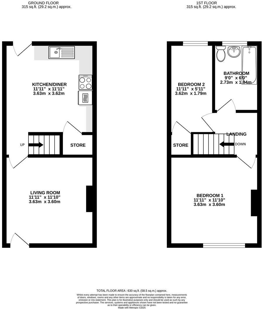
AFFORDABLE MID TERRACE HOUSE - STYLISH ACCOMMODATION - POPULAR & CONVENIENT LOCATION Tucked away in a cul-de -sac just off Chatsworth Road is this well appointed mid terrace house which presents an excellent opportunity for both first-time buyers and those seeking a cosy rental. The prop...
Property Oracle says ..
This two-bedroom terraced house in Holmebrook, Chesterfield is presented in good condition, benefitting from a recently modernised interior and relatively close proximity to local schools and amenities. The property appears well-maintained, with modern fixtures and fittings in the kitchen and bathroom. The small, paved rear garden offers some outdoor space, though it is not extensive. The list price of £130,000 appears reasonable in relation to other comparable properties on Chatsworth Road and in the surrounding area of Brampton. Whilst lacking significant plot size and not situated in a high-demand area, this property presents a viable option for first-time buyers or investors seeking a conveniently located home requiring minimal renovation. The absence of square footage data for many comparable properties limits the precision of this valuation, however the stated 630 sqft suggests a price per sqft that’s likely in line with market values for the location and condition.
Therefore, we give this property 6 / 10. *Disclaimer: This is our option and does constitute a recommendation or financial advice. Do your own research. *
- Price
- 7
- Condition
- 8
- Location
- 7
- Land
- 3
- Bedrooms
- 2
- Bathrooms
- 1
- Sqft (est)
- 630.00
The heatmap indicates the level of crime in the area. The color of the heatmap indicates the crime severity and recency.
Metrics Year-on-Year
- Average area value
- 165,000.00 £Decreased by 0.13 %
- Est sale value
- 123,480.00 £Increased by 13.29 %
- Average area rental value
- 773.00 £/moDecreased by 1.53 %
- Est letting value
- 0.00 £/mo
- Est rental Yield
- 5.62 %Decreased by 1.40 %
- Crime Rate
- 6.00 %Unchanged by 0.00 %
Agent Activity
Wilkins Vardy Residential created the listing.
Nearby Schools
| Name | Type | Ofsted | Distance |
|---|---|---|---|
| Brampton Primary School | Community School | Good | 0.41 KM |
| Parkside Community School | Community School | Good | 0.96 KM |
| Old Hall Junior School | Academy Converter | 0.97 KM | |
| Brockwell Junior School | Community School | Outstanding | 1.03 KM |
| Brockwell Nursery And Infant School | Community School | Good | 1.06 KM |
Images
Nearby Streets
| Name | Average Price | Average Sqft | Distance |
|---|---|---|---|
| Goytside Road | £ 0 | 0 | 0.00 KM |
| Pottery Mews | £ 0 | 0 | 0.00 KM |
| Toc H Yard | £ 0 | 0 | 0.00 KM |
| Walton Drive | £ 195,000 | 0 | 0.00 KM |
| Walton Drive | £ 0 | 0 | 0.00 KM |
Nearby Transport
| Name | NLC | TLC | Distance |
|---|---|---|---|
| Chesterfield | 6615 | CHD | 2.97 KM |
| Dronfield | 6616 | DRO | 7.91 KM |
Nearby Listings
| Address | Price | Type | Score | Distance |
|---|---|---|---|---|
| Brook Vale, Chatsworth Road, Chesterfield | £ 130,000 | BUY | 6 / 10 | 0.00 KM |
| Chatsworth Road, Brampton, Chesterfield | £ 100,000 | BUY | 5 / 10 | 0.09 KM |
| Factory Street, Brampton, Chesterfield, S40 2BS | £ 299,950 | BUY | Unknown | 0.15 KM |
| The Studios, School Board Lane,Brampton | £ 115,000 | BUY | Unknown | 0.16 KM |
| Elm Place, Chatsworth Road, Brampton, Chesterfield, S40 2BE | £ 150,000 | BUY | Unknown | 0.16 KM |
Nearby Properties
| Address | Price | Distance |
|---|---|---|
| 173a Chatsworth Road | £ 121,000 | 0.06 KM |
| 196 Chatsworth Road | £ 82,500 | 0.09 KM |
| 210 Chatsworth Road | £ 100,000 | 0.09 KM |
| 208 Chatsworth Road | £ 68,000 | 0.09 KM |
| 212 Chatsworth Road | £ 141,000 | 0.09 KM |