eXp UK says ..
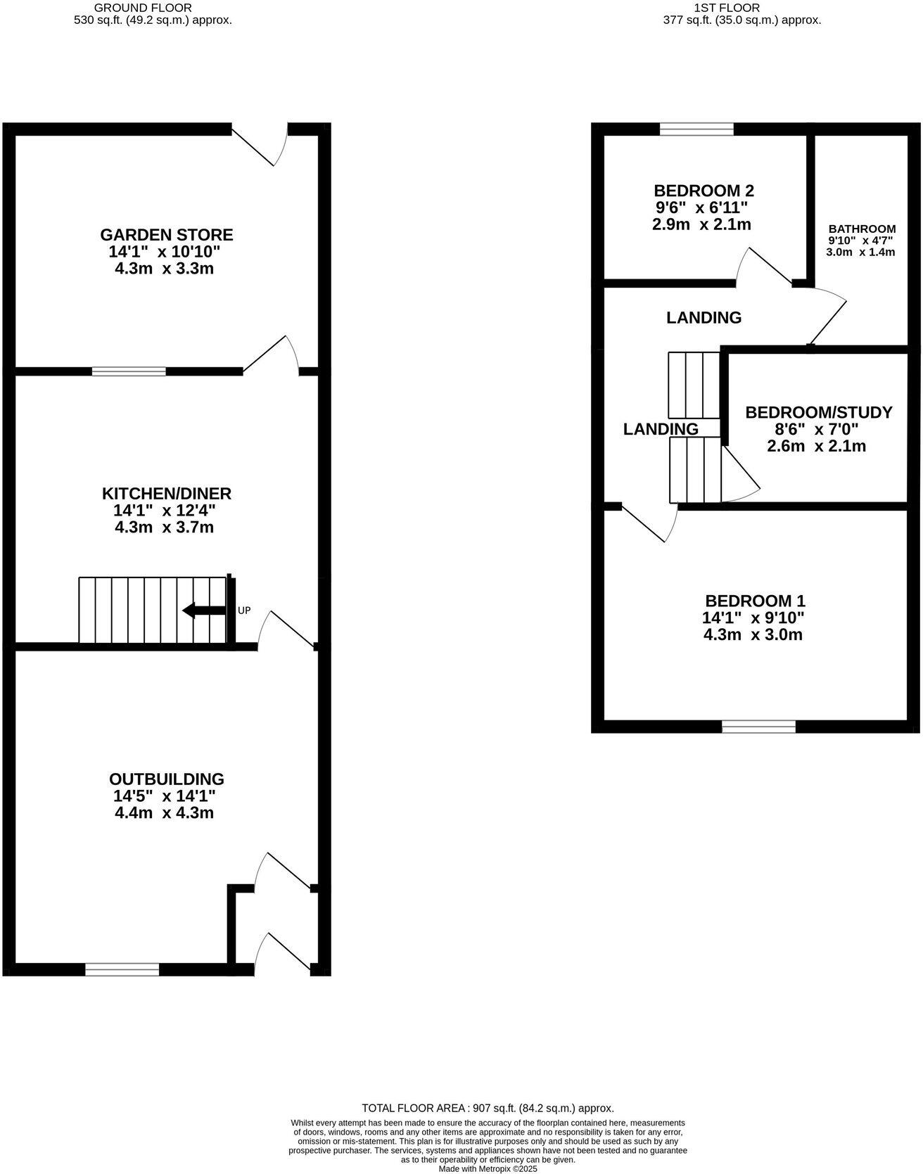
Please contact Louis Percival Real Estate or for online enquires to book a viewing quote REF - LP1272 End Terrace Home with Flexible Living space. This beautifully presented two/three-bedroom end terrace offers a perfect blend of modern living and practical funct...
Property Oracle says ..
Therefore, we give this property 6 / 10. *Disclaimer: This is our option and does constitute a recommendation or financial advice. Do your own research. *
- Price
- 8
- Condition
- 7
- Location
- 6
- Land
- 4
- Bedrooms
- 3
- Bathrooms
- 1
- Sqft (est)
- 832.00
The heatmap indicates the level of crime in the area. The color of the heatmap indicates the crime severity and recency.
Metrics Year-on-Year
- Average area value
- 132,500.00 £Increased by 21.44 %
- Est sale value
- 146,432.00 £Increased by 10.69 %
- Average area rental value
- 115.00 £/moDecreased by 78.34 %
- Est letting value
- 0.00 £/mo
- Est rental Yield
- 1.04 %Decreased by 82.19 %
- Crime Rate
- 21.00 %Unchanged by 0.00 %
from 109,104.00 £
from 132,288.00 £
from 531.00 £/mo
from 0.00 £/mo
from 5.84 %
from 21.00 %
Agent Activity
eXp UK created the listing.
Nearby Schools
| Name | Type | Ofsted | Distance |
|---|---|---|---|
| Burnley Ightenhill Primary School | Community School | Good | 0.08 KM |
| Ightenhill Children'S Centre | Children's Centre | 0.16 KM | |
| Ightenhill Nursery School | Local Authority Nursery School | Outstanding | 0.26 KM |
| Whittlefield Primary School | Community School | Good | 0.36 KM |
| Wellfield Methodist And Anglican Church School | Voluntary Aided School | Requires improvement | 0.98 KM |
Images
Nearby Streets
| Name | Average Price | Average Sqft | Distance |
|---|---|---|---|
| Carter Street | £ 85,000 | 0 | 0.00 KM |
| Newton Street | £ 150,000 | 0 | 0.00 KM |
| Beatrice Avenue | £ 94,950 | 0 | 0.00 KM |
| Acorn Mews | £ 69,975 | 0 | 0.00 KM |
| Claremont Street | £ 85,000 | 0 | 0.00 KM |
Nearby Transport
| Name | NLC | TLC | Distance |
|---|---|---|---|
| Burnley Barracks | 2743 | BUB | 1.36 KM |
| Rose Grove | 2722 | RSG | 1.61 KM |
| Burnley Manchester Road | 2549 | BYM | 2.53 KM |
| Burnley Central | 2550 | BNC | 2.78 KM |
| Brierfield | 2554 | BRF | 5.04 KM |
Nearby Listings
| Address | Price | Type | Score | Distance |
|---|---|---|---|---|
| Carter Street, Burnley, BB12 6EE | £ 110,000 | BUY | 6 / 10 | 0.00 KM |
| Carter Street, Burnley, BB12 | £ 80,000 | BUY | Unknown | 0.01 KM |
| Carter Street, Burnley, Lancashire, BB12 | £ 115,000 | BUY | 5 / 10 | 0.01 KM |
| Oak Street, Burnley, BB12 | £ 74,950 | BUY | Unknown | 0.06 KM |
| Padiham Road, Burnley, Lancashire, BB12 | £ 125,000 | BUY | 5 / 10 | 0.07 KM |
Nearby Properties
| Address | Price | Distance |
|---|---|---|
| 21 Carter Street | £ 55,000 | 0.01 KM |
| 10 Carter Street | £ 35,000 | 0.01 KM |
| 28 Carter Street | £ 46,500 | 0.01 KM |
| 25 Carter Street | £ 61,500 | 0.01 KM |
| 19 Carter Street | £ 68,000 | 0.01 KM |